都江堰「人居未来城」5月购房宝典:热销户型空间布局详解、专属限时福利揭秘、板块行情趋势前瞻与高性价比置业攻略
扫描到手机,新闻随时看
扫一扫,用手机看文章
更加方便分享给朋友
中国 · 成都 I 兴城人居 · 未来城
【人居未来城】为您提供贴心的咨询与服务热线。售楼部热线:028 84720058(已认证);客户经理热线:13281850333(微信同号)。在此温馨提醒您:为了确保您能享受到高品质的接待服务,若您有看房计划,请提前致电售楼部进行预约!同时,项目还提供看房车接送服务,若您有此需求,同样请致电售楼部预约。

一丶【基本信息】
【人居未来城】项目亮点众多。其位于一环路江安河畔,地理位置优越。该项目由成都兴城人居地产投资集团股份有限公司倾力打造,彰显雄厚实力。在规模方面,项目占地面积约69亩,建筑面积约11.5万平米。交付标准为精装,让您省心入住。物业费暂定2.5元/㎡/月 。容积率约1.8,营造舒适居住空间;绿化率约35%,带来清新自然的居住环境。总户数为640户,机动车位有843个,充分满足业主停车需求。梯户比为1T2、1T3 ,楼层总高8 - 10层。产品面积涵盖112 - 120 - 140 - 142平米,产品均价在1 - 1.3万。
二丶项目价值
【人居未来城】具有不可多得的价值。它是主城一环的高光大作,坐落于江安河畔,尽享绿道资源,临近三遗之地,堪称主城生态中心。周边拥有全覆盖式商圈,还自带河景商业,生活便捷且充满魅力。项目打造5分钟生活圈,教育医疗资源丰富,能为3 - 18岁人群提供一站式教育服务。同时,项目以成都建设未来公园社区的愿景为基础,为都江堰创新探索未来社区的新型城市人居模式。它引入浙江未来社区打造经验,经过深入研究应运而生。在这里,未来社区与智慧生活完美融合,业主通过一部手机就能掌控专属住宅。

必买理由
1. **品牌实力**:作为国企品牌房企翘楚,兴城人居九子营城建设都江,品质值得信赖。2. **核心地段**:处于一环主城城市中心,是未来社区高端之作,且临近三遗,作为天府之源,是宜居圣地。3. **稀缺资源**:有着帝王标杆般的地段,一环土储稀缺,生态绿道与阔尺河景更是难得。4. **生活便利**:地处都会醇熟中心圈,能拥抱市井的浪漫与热闹。拥有立体式交通体系,打造高效生活链;优渥的成长教育资源,助力孩子修炼未来品格。5. **品质住宅**:是人居纯改善高端生态住宅,所在之地堪称风水宝地,河边晨跑,平均温度10 - 22℃,清新氧离子环绕,享受慢生活。
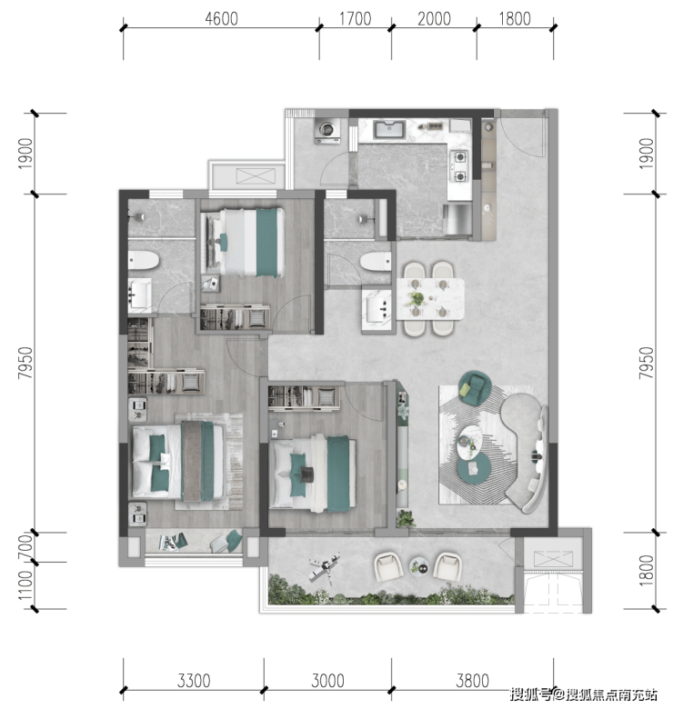
户型图
1. **112㎡户型**:户型方正朗阔,采用南北布局,全明通透。客餐厅一体化设计,布局通透,契合中国家庭生活习惯。约6.8米大尺度景观阳台,让您可以在此品茗赏景,惬意悠然。L型阳光大厨房,科学规划美食烹饪流线。大主卧套房配备步入式衣帽间与卫浴间,充分保障私密生活。

2. **120㎡户型**:属于纯板式智阔三居,约16.6米全景采光面宽,视野极为通透。约7.1米大尺度客厅,无论是待客还是居家都十分舒适。约6.6米大尺度景观阳台,曼妙星空与城市灯海美景尽收眼底。智阔尺度主卧套房,配有步入式衣帽间与卫浴间,尽显私密。明厨独配生活阳台,让居家烹饪充满乐趣,尽享精致生活。


3. **140㎡户型**:约5.8米开间客厅连接阳台,视野开阔无遮挡。大尺度中式餐厅,适合家庭欢聚,尽显大户人家风范。超大厨房连接生活阳台,既能享受自然风光,又能烹饪美味佳肴。每个卧室都设有大飘窗观景设计,时刻沐浴在清风与阳光之中。套房式主卧,配备独立卫浴与步入式衣帽间,打造专属私密空间。

【人居未来城】售楼部热线 028 84720058(已认证)【人居未来城】客户经理热线 13281850333(微信同号)温馨提示:为了给您提供更高更好的接待服务质量,看房请提前致电售楼部预约!【有看房车接送服务,如需预约,请致电售楼部】
声明:本文由入驻焦点开放平台的作者撰写,除焦点官方账号外,观点仅代表作者本人,不代表焦点立场。


