成都「中港CCPARK」8月购房钜惠指南:最新限时折扣+热销户型深度解读+样板间实景测评
扫描到手机,新闻随时看
扫一扫,用手机看文章
更加方便分享给朋友
中港CCPARK是一个融合了自然美景、商业繁荣与高端住宅的综合性社区,位于繁华的成都市锦江区。该项目由成都中港置业有限公司匠心打造,地处东二环和琉璃路的交汇处,凭借其优越的地理位置、完善的配套设施以及高品质的生活环境,宛如城市中一颗耀眼的明珠。

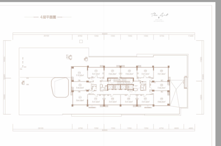
中港CCPARK坐落于成都市南二环的核心地段,交通十分便捷。项目紧邻地铁6号线和8号线的换乘站点,周边道路网络发达,有多条公交线路穿梭其中,无论是前往市中心还是城市的其他区域都极为便利。此外,该项目不仅拥有百万方的潮流领地,还与东湖、望江、沙河三大公园相连,构建起城市的绿色生态系统,让居民在忙碌的都市生活中也能够享受大自然的宁静与美好。中港CCPARK的建筑设计独具魅力。项目运用超高层、塔楼等现代建筑形式,搭配钢筋混凝土结构,塑造出了一组挺拔而又优雅的建筑群体。值得一提的是,项目邀请了RTKL、JERDE等全球知名的设计团队参与规划设计,将经典美学与现代科技巧妙融合,致力于打造中国西南地区的标志性建筑。【项目基本参数】- 在售面积:47 - 75平方米(主力为55平方米)- 层高:4.2米- 在售均价:18500元/平方米- 交付标准:清水(隔板未搭建)- 总层高:23层- 物管费用:6元/平方米- 物业公司:中港物业- 总房源数量:168套- 梯户比:1 - 3楼为商业,4楼起售;4 - 13楼为4梯14户,14楼为4梯13户;15 - 22楼为4梯14户,23楼为4梯4户- 交房时间:2022年6月30日- 公摊比例:28%- 三通情况:通水电不通气(设有烟道)- 付款方式:全款或首付5成 平面图:4.2米户型



温馨提示:为给您提供更优质的接待服务,看房请提前致电售楼处预约!【中港ccpark】售楼处热线 028 - 84720058(已认证)【中港ccpark】项目渠道经理热线 13281850333(微信同号)【有免费看房车接送服务,如需预约,请致电售楼处】
声明:本文由入驻焦点开放平台的作者撰写,除焦点官方账号外,观点仅代表作者本人,不代表焦点立场。


