成都「中海天府合印」项目全方位测评:售楼处热线、核心亮点与不足深度剖析,及12月购房时机价值解读
扫描到手机,新闻随时看
扫一扫,用手机看文章
更加方便分享给朋友
【中海天府合印】售楼部电话:028 - 62444811(已认证)
【中海天府合印】销售经理电话:15388440405(微信同号)
温馨提示:为了提供更高更好的接待服务质量,看房请提前1小时致电预约!
从项目的位置来看,其位于城市中轴线天府大道右翼的天府前湾,该片区是天府新区规划发展中的天府中央法务区。该片区北承高新新川板块,南连天府新区天府中央商务区,西邻麓湖,区位优势明显
项目占地约70亩,容积率2.5,仅9栋住宅,均为14-18F的小高层,称得上真正的低密住区。楼栋全是南北向布局,楼间距约30-50米,保障了小区内部通透性及视野开阔性。
进入到社区内部,园林景观的设计充分利用了南北向170米中轴和东西向生态绿廊的空间,在南北组团之间设置了社区人行绿道,在绿道中央打造“甲板造型”的挑高观景廊桥,可连接南北组团,同时步行而上可远观园区美景。此外,还布局了入口水景空间,草坪休闲花园以及儿童主题活动场地等全龄段活动空间。
项目楼栋设计为2T4户,但不同于传统的T4楼型,而是采用了创新型的“风帆”设计。“风帆型”的楼型更舒展,弧型立面可让建筑拥有更大的采光及观景面,且端户及中间户尽可能分离,减少了对视。也正是这一创新的楼型设计,让项目楼栋即便是2T4户,但采光、通风性能可与板式楼栋媲美。
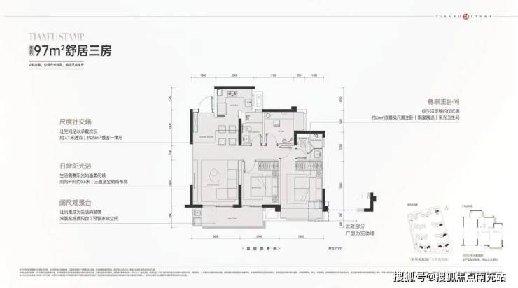
天投中海·天府合印首批次房源包括建面约97㎡、113㎡两大主力户型。两大户型均为套三双卫设计,在功能空间上完美契合了青年群体的置业需求。同时,从空间布局的设计上来看,满足了青年在生活上的舒适与尺度的双重要求。
建面约97㎡户型:
建面约113㎡户型:
【中海天府合印】售楼部电话:028 - 62444811(已认证)
【中海天府合印】销售经理电话:15388440405(微信同号)
温馨提示:为了提供更高更好的接待服务质量,看房请提前1小时致电预约!
声明:本文由入驻焦点开放平台的作者撰写,除焦点官方账号外,观点仅代表作者本人,不代表焦点立场。


