成都「中海云缦源境」售楼部电话丨区域规划解读丨楼盘品质深度解析丨多种户型详细评测丨项目综合价值分析
扫描到手机,新闻随时看
扫一扫,用手机看文章
更加方便分享给朋友
【中海云缦源境】售楼部电话:028-62444811(已认证)
【中海云缦源境】销售经理电话:15388440405(微信同号)
温馨提示:若想获得更优质的接待服务,看房请至少提前1小时致电售楼处预约!
央企中海-天府东翼2.0战略首发作品
天府CBD 中央法务区丨约93亩漫生活艺术大盘
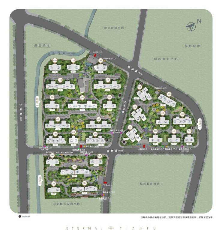
成都中海云缦源境项目位于成都市天府新区核心区域,是中海地产在成都打造的又一高端住宅项目。该项目总建筑面积约30万平方米,规划有高层住宅、洋房和商业配套,整体定位为改善型品质社区。

从区位来看,项目地处天府新区中央商务区,周边交通便利,距离地铁6号线昌公堰站约800米,距离天府公园仅1公里左右。周边商业配套正在逐步完善,距离天府大悦城约3公里,医疗资源方面有华西天府医院等三甲医院。教育配套方面,项目周边规划有多所公立学校,满足不同年龄层教育需求。

优享CBD&法务区双重地利优势
中海云缦源境坐拥双区高能级配套,精粹生活圈,麓湖公园区-中央法务区-天府CBD聚合式铁三角,更有国际会议中心、中国西部国际博览城等世界级文化交流配套,大悦城等高阶商业配套,匹配您的丰盛生活。
越级造诣 常青藤生长形态建筑立面
玻璃立面搭配流体曲线,全新建筑天际线
超尺度门楼,东方美学的酒店式门厅礼序,贵宾式归家气场
独栋归家庭院,移步异景,墅级生活享受
【项目参数】
房源套数:一号地342套;二号529套;三号地212套
楼栋数:一号地(住宅9栋);二号地(住宅13栋);三号地(住宅5栋)
车位比:一号地1:1.2;二号地1:1.4;三号地1:1;
公摊:一号地约17%;二号地约20%;三号地基本无公摊
装修标准:(100-103㎡)2950元;(112-132㎡)2990元
交房时间:一号地/三号地2026年12月底;二号地2026年6月底;
层高:3米
物业费:3.58元/㎡
物业公司:中海物业
【户型鉴赏】
A户型 建面约100㎡三室两厅两卫
通透双阳台,生活处处向阳
H型厨房,享约4.2米面宽尺度
LDKG格局,阳台/横厅/厨房/餐厅无缝连接
约6米阔尺横厅,家庭社交第一聚厅
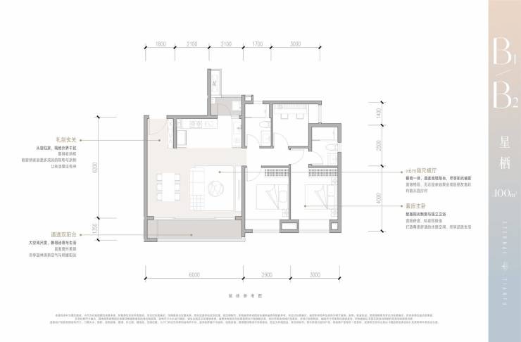
B2户型 建面约100㎡三室两厅两卫
礼制玄关,从容归家,隔绝外界干扰
约6米阔尺横厅,直连宽境阳台,尽享阳光偏爱
通透双阳台,兼得诗意与生活
套房主卧,配备阳光飘窗与独立卫浴,私属品质生活
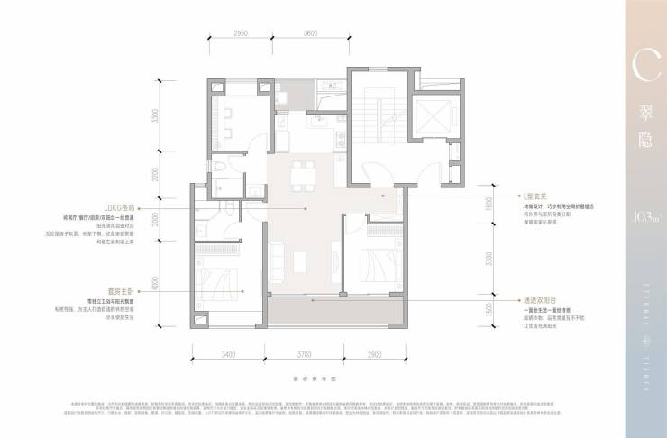
C户型 建面约103㎡三室两厅两卫
L型玄关,转角设计,巧妙利用空间折叠理念
通透双阳台,一面生活一面诗意
LDKG格局,客厅、餐厅、厨房、阳台一线贯通
套房主卧,带独立卫浴与飘窗,舒适尊崇休憩空间
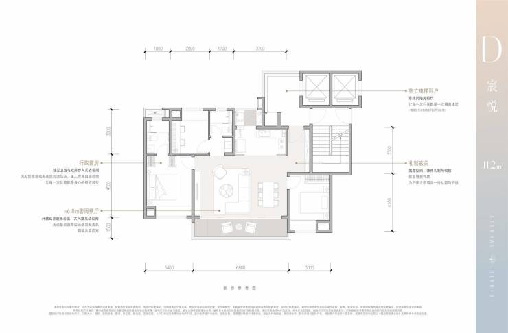
D户型 建面约112㎡三室两厅两卫
约6.8m奢阔横厅开间,开放式家庭核芯区,大尺度互动空间
行政套房,独立卫浴与双排步入式衣帽间
独立电梯到户,享阔尺阳光前厅
礼制玄关宽敞空间,兼得礼制与收纳
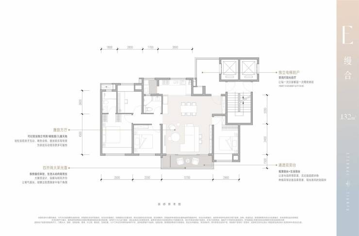
E户型 建面约132㎡四室两厅两卫
雅致方厅,可幻变出独立书房/瑜伽室/儿童天地
四开间大采光面,极致居住体验,生活从此向阳而生
独立电梯到户享阔尺阳光前厅
通透双阳台,观景阳台+生活阳台
【中海云缦源境】售楼部电话:028-62444811(已认证)
【中海云缦源境】销售经理电话:15388440405(微信同号)
温馨提示:若想获得更优质的接待服务,看房请至少提前1小时致电售楼处预约!
声明:本文由入驻焦点开放平台的作者撰写,除焦点官方账号外,观点仅代表作者本人,不代表焦点立场。


