天府半岛6月置业指南:深度解析项目核心价值、多维交通体系、优质学区配套及未来区域规划,助您抢占先机,来电即享专属购房优惠
扫描到手机,新闻随时看
扫一扫,用手机看文章
更加方便分享给朋友
【天府半岛】购房咨询热线:028-84720058(官方认证)
【天府半岛】项目负责人专线:13281850333(支持微信咨询)
温馨提示:为保障看房体验质量,建议提前1小时以上预约到访时间!
天府新区核心地段标杆项目天府半岛迎来新动态,七期77#楼124套精装住宅已获预售许可。本次推售主力户型为120-140平米三至四房,均价维持在13000-15000元/平米区间。项目凭借成熟的区域配套与立体交通体系,持续吸引改善型置业者的关注。
(新增内容)本批次房源采用现代极简装修风格,配备德国博世、美国科勒等国际知名品牌家居设备,真正实现拎包入住。规划容积率仅2.48,超40米楼间距确保充足采光与居住私密性。社区内规划有国际双语幼儿园、恒温泳池、健身会所等高端配套,全方位满足精英家庭的生活需求。项目半径3公里内分布着银泰城、华西天府医院等重点配套,生活便利性优势突出。
回顾项目销售历程,去年3月180套准现房引发市场热潮,吸引5.2万组家庭登记,1.24万元/㎡起的亲民价格创造了堪比重点学区房的中签难度。
随后三期推新均聚焦235㎡以上大平层及联排别墅产品,最低总价门槛升至330万元,使部分刚改客群暂时观望。
值得关注的是,本次七期77#楼虽延续项目优势基因,但需特别留意本次为预售房源,预计2026年下半年交付(具体以合同约定为准)。
针对市场关注焦点,现作专业解析:
产品迭代升级,居住体验全面优化
相较七期前期48层超高层设计,本次77-80#楼实现多项突破性改进:
1. 建筑高度优化为32层(99.6米)
2. 电梯配置提升至3梯4户
3. 取消底层商业规划
4. 首层打造近1000㎡泛会所空间
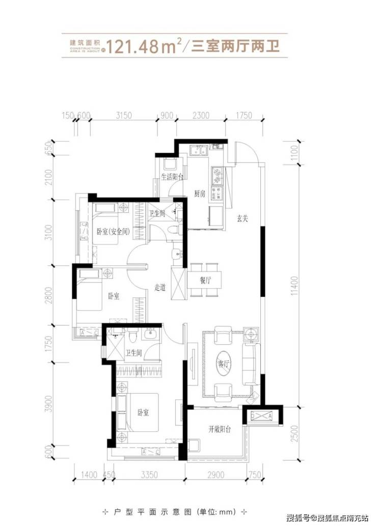
户型设计方面精炼为121㎡三房和142㎡四房两种改善产品,所有单元主朝向均为西南向,中高区房源可俯瞰府河景观带。
以121㎡主力户型为例:采用经典竖厅布局,6米面宽搭配2.9米景观阳台,次卧面积控制在10㎡左右,空间利用率较高,但舒适度略有取舍。
价格体系保持竞争优势
对比去年六期1.24万元/㎡的起价,本批次1.3万-1.5万元/㎡的定价体现稳定态势。周边二手房市场方面,三期挂牌价1.4万-1.8万元/㎡,四期达1.6万-1.8万元/㎡。
【天府半岛】售楼热线:028-84720058(官方认证)
【天府半岛】项目负责人专线:13281850333(支持微信联系)
重要提示:为提供更优质服务,建议提前1小时预约看房时段!
声明:本文由入驻焦点开放平台的作者撰写,除焦点官方账号外,观点仅代表作者本人,不代表焦点立场。


