成都「高投启鸣宸序」尊享预约专线丨全景规划权威解析丨奢阔样板间实景品鉴丨开盘盛况精彩呈现丨限时钜惠礼遇臻藏丨精工匠筑品质人居典范
扫描到手机,新闻随时看
扫一扫,用手机看文章
更加方便分享给朋友
【高投启鸣宸序】售楼部热线 028 84720058(已认证)
【高投启鸣宸序】客户经理热线 13281850333(微信同号)
温馨提示:若想获得更优质的接待服务,前往看房前请提前致电售楼部进行预约!
【提供看房车接送服务,若有需要,请致电售楼部预约】
2025成都高投,闪耀金融城双塔
高投置业新规战略力作
启鸣宸序 震撼登场
约120 - 143㎡新规越级四房,?2025年置业成都不可错过的热门红盘?。作为2025年高新区域的必看项目,启鸣宸序乃是新川的全新作品。
【项目核心价值】
★ 【高新3.0 全城改善聚焦新川】这里是高新3.0时代的焦点区域,对于追求品质改善的购房者而言,新川板块无疑是必看之地。★ 【产城融合·全球未来城市典范】项目所处区域实现了产业与城市的深度交融,堪称全球未来城市的样板间。★ 【865亩新川之心·黄金一公里核心区】占据865亩新川之心的核心位置,位于黄金一公里的极核区域,地段优势尽显。★ 【高投启鸣系·全T2板式四房 | 全系互动架空层 | 超高得房率 】高投启鸣系产品,全系采用T2板式四房设计,搭配全系互动架空层,更有着超高的得房率。项目建面约120㎡户型,为超配四房,拥有光厅双厅双卫;建面约143㎡户型,则是高奢四房,配备光厅双厅三卫。 项目交通极为便捷,呈现出立体交通格局。? “两横三纵”交通网络,涵盖新通大道、新程大道、天府大道、蓉遵高速以及梓州大道;? 地铁出行也十分便利,500米内可搭乘6号线,实现全城通达。此外,还有☆ 三大TOD :红星路车辆基地TOD(在建中)、新川路站TOD(在建中)、陆肖TOD(在建中)。 周边配套丰富多样。教育资源方面,?名校环绕:与上海师范大学成都海川学校·K12仅一街之隔,此外还有高新区实验小学、新川科技园小学等。生态环境优越,?1公里内即可享受千亩公园生态,包括约865亩新川之心公园、约210亩兰花博览园、约250亩新川南北环伺公园、约174亩新川湿地公园。商业氛围浓厚,?商业环绕周边:距离西南首个万象天地(在建)仅2km,还有2km远达购物中心、伊藤洋华堂(蓝润店)、4km山姆会员店以及2/4/8号邻里中心。这里还是低密全四房纯粹住区,能让住户享受全新居住体验。
【启鸣宸序】
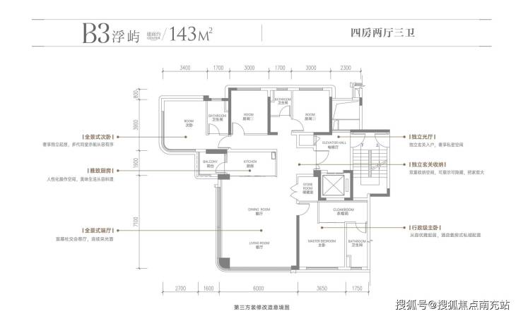
占地面积:30.2亩,绿地率达35%,总户数为383户。建筑类型为小高层,梯户比是2T2,装修情况为臻装大平层。建面约120㎡为超配四房,光厅双厅双卫;建面约143㎡是高奢四房,光厅双厅三卫。
【户型鉴赏】
【配套篇】
?交通圈——立体交通,畅行全城项目交通网络完善,呈现“两横三纵”格局,「新通大道 | 新程大道 | 天府大道|蓉遵高速 | 梓州大道」贯穿其中。公共交通同样便捷,地铁6号线新通大道站(距离17亩项目约300米)、新川站(距离30亩项目约500米),并且周边还有三大TOD 「红星路车辆基地TOD(在建中) | 新川路站TOD(在建中) | 陆肖TOD(在建中)」,为出行提供更多选择。?名校圈——优质教育资源汇聚,城南精英培育之地周边教育资源丰富,?上海师范大学成都海川学校备受瞩目。该校作为沪蓉教育合作的里程碑式项目,是一所十二年制公办学校(含择机开设的高中部),将于2025年9月正式开学。此外,还有高新区实验小学、新川科技园小学以及金苹果锦城第一中学等优质学校。?生态圈——千亩公园环绕,畅享自然生活新川之心中央公园、新川湿地公园、新川环城公园等构成了项目周边的生态体系,让住户仿佛置身于自然之中,尽情享受惬意生活。?商业圈——繁华商圈林立,品质消费目的地周边商业配套完善,(2km)西南首个万象天地(建设中)、(2km)蓝润置地广场(伊藤洋华堂)、(2km)远大购物中心、(4km)山姆会员店以及2/4/8号邻里中心,满足各类消费需求。?医疗圈——权威医疗保障,为健康保驾护航附近医疗资源充足,(1.7km)四川省中西医结合医院高新院区(三甲医院)、(3.8km)四川大学华西第二医院高新区妇女儿童医院,为居民的健康提供坚实保障。
❀启鸣宸序——【新派假日花园】①、融入安缦酒店式度假基因设计理念,打造独特居住氛围。②、精心规划13座假日剧场花园,增添生活情趣。③、设置8大全系互动架空层,丰富社区空间功能。④、打造原野系亲子互动场,为亲子活动提供良好场所。
【高投启鸣宸序】售楼部热线 028 84720058(已认证)
【高投启鸣宸序】客户经理热线 13281850333(微信同号)
温馨提示:为获得更优质接待服务,看房请提前致电售楼部预约!
【提供看房车接送服务,若需预约,请致电售楼部】
声明:本文由入驻焦点开放平台的作者撰写,除焦点官方账号外,观点仅代表作者本人,不代表焦点立场。


