御景东方尊线热线:臻藏户型品鉴与置业攻略,限时钜惠政策及项目动态全解析,成都奢华人居典范之作
扫描到手机,新闻随时看
扫一扫,用手机看文章
更加方便分享给朋友
【御景东方】项目咨询专线 028-84720058(官方认证)
【御景东方】置业顾问专线 13281850333(支持微信联系)
重要提示:为确保您获得优质的接待服务,请提前致电预约看房时间!
【项目提供免费看房专车服务,预约请拨打售楼热线】
御景东方商务中心——都会办公新标杆
雄踞成华核心区 地铁上盖商务资产
坐落于成都主城黄金地段,项目与地铁网络无缝衔接,坐享便捷交通优势。5A级写字楼配备智能管理系统,打造现代化商务办公空间。挑高9米奢华大堂、高速商务电梯、VRV空调系统等高端配置,满足企业多元化办公需求。现推出稀缺商务空间,诚邀实力企业入驻。
项目基础信息
项目地址:成华区华实路37号
开发商:重庆恒耀集团
物业类型:写字楼
公摊:18%
项目总占地:约30亩
项目总建面:约10万㎡
在售产品:B栋
总楼层:21层
单层层高:3.3米
电梯:3T1/3T2
物业费:6元/㎡/月
水费:4.5元/吨
电费:0.79-1.15/度
气费:3.78/方
整层面积段:约728—790㎡
半层面积段:约355—408㎡
交房时间:2025年12月31日
产品惠后均价:4500元/㎡
项目卖点
主城目前唯一一个有中庭花园的项目
低单价,投资门槛低,投资回报高!
项目便捷交通 出行便捷通达全城
三纵 华翰路/华实路/华盛路
两横 航天路/成宏路
地铁 17号线威灵站(建设中)约500m
公交 G99路/快速公交K16线/122路/G169路/14路/67路/87路
✅全能办公空间 理想商务体验
A座约99.3米,龙潭新经济园区中最接近百米的高层建筑
LESS IS MORE,厚重石材搭配轻经盈幕墙,将是龙潭新经济园区最亮丽的一道风景线
按5A级标准打造,为创业型企业提供深度定制化整体入驻服务
活力青年初创企业梦想起航点,为初创公司轻量化入驻解决方案,轻松启航,伴你飞翔
专业物业服务团队,秉承“更卓越,更高效”的服务态度,为企业和员工创造舒适办公体验

✅丰富多样的业态
1⃣ **办公空间**
- 提供传统办公区、共享办公空间、独立办公室等多种选择,满足不同规模企业的需求。
- 配备现代化办公设施,如高速网络、智能会议系统等,提升工作效率。
2⃣ **会议与活动场地**
- 提供多功能会议室、报告厅等,适合企业举办会议、培训等活动。
3⃣ **生活服务**
- 写字楼内设有餐饮、咖啡厅、便利店等,方便企业员工日常工作生活需求。
4⃣ **酒店餐饮**
- 不同于传统写字楼,本案水电气三通,满足生活和餐饮条件,未来将引入高端餐厅、品牌酒店、健身房、美容院等,提升生活品质。
✅懂办公更懂生活
打破传统写字楼压抑氛围,打造活力生活配套,留住企业,更能留住人。项目自带约4千平商业配套。
规划业态:特色餐饮(异域餐饮、主题餐饮、商务宴请)、网红餐饮、咖啡下午茶、文艺书店,茶楼、健身房、公共活动空间。
通过专业的招商运营团队进行合理规划,统一运营。
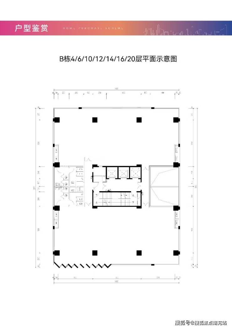
项目楼层平面示意图
【御景东方】售楼部热线 028 84720058(已认证)
【御景东方】客户经理热线 13281850333(微信同号)
温馨提示:为了给您提供更高更好的接待服务质量,看房请提前致电售楼部预约!
【有看房车接送服务,如需预约,请致电售楼部】
声明:本文由入驻焦点开放平台的作者撰写,除焦点官方账号外,观点仅代表作者本人,不代表焦点立场。


