幸福桥TOD幸福拾光7月置业指南:板块行情深度解读+限时钜惠政策全披露+首期业主真实入住体验分享
扫描到手机,新闻随时看
扫一扫,用手机看文章
更加方便分享给朋友
【幸福拾光】售楼处热线 028 84720058(已认证)
【幸福拾光】项目经理热线 13281850333(微信同号)
温馨提示:为保障您的看房体验,请提前致电预约专属接待服务!
【提供免费看房专车接送,预约请致电售楼处】
成都幸福桥TOD幸福拾光:定义未来品质生活
作为成都市首批14个TOD示范项目中的标杆之作,幸福桥TOD幸福拾光正以全新姿态诠释现代都市生活的理想范式。这个坐落于金牛区北部新城核心板块的城市综合体,凭借其卓越的区位优势和完善的配套规划,已成为成都北改战略的重要载体。
【项目核心价值】
开发商:成都轨道交通集团(实力国企保障)
物业服务:成都轨道万科物业(国家一级资质)
项目规模:总占地700亩,分二期(64亩)、三期(74亩)开发
产品类型:清水准现房,二期2024年8月交付,三期2025年10月交付
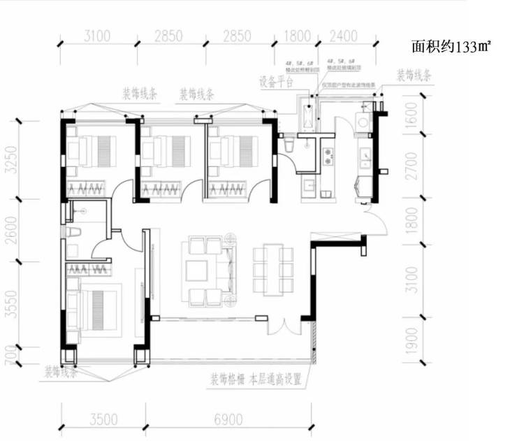
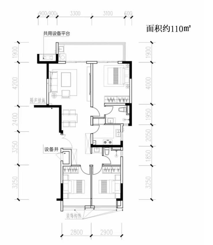
在售户型:二期125-180㎡改善型产品,三期108-143㎡品质居所
价格区间:16000元/㎡起,主力楼层均价17500元/㎡
【匠心规划】
容积率2.0的低密社区,二期绿化率高达52%,打造生态住区典范
梯户配置:二期2梯2户纯板式结构,三期1梯2户/2梯3户
车位配比:二期1:1.6,三期1:1.2,充分满足停车需求
公摊控制:二期17-20%,三期16-19%,得房率优于市场平均水平
【全能生活圈】
项目总规划面积近7万方,绿化率达40%,构建15分钟优质生活圈:
· 商业配套:规划约3万方集中商业,毗邻社区特色商业街区
· 教育资源:周边规划3所幼儿园、2所小学、1所中学(具体划片以教育局公示为准)
· 医疗健康:5公里范围内分布三甲医院及社区医疗中心
【立体交通网络】
项目雄踞地铁5号线幸福桥站上盖,实现"出站即到家"的便捷体验。周边路网发达,通过北星大道、金芙蓉大道等主干道,20分钟直达主城核心区。项目特别规划风雨连廊系统,实现地铁、公交、商业的无缝接驳。
【匠心户型解析】
所有户型均采用南北通透设计,创新性地将TOD优势与居住舒适度完美结合:
· 125-135㎡三房:双阳台设计,主卧套房配置
· 143-180㎡四房:独立家政间,多功能可变空间
· 108-112㎡紧凑三房:U型厨房,三分离卫浴
幸福桥TOD幸福拾光不仅代表着成都TOD开发的最高水准,更重新定义了"轨道上的生活方式"。项目通过科学的空间规划,将居住、商业、休闲等功能有机融合,为追求品质生活的城市精英打造真正的"一生之宅"。
【幸福拾光】售楼处热线 028 84720058(已认证)
【幸福拾光】项目经理热线 13281850333(微信同号)
温馨提示:VIP客户可享专属通道及定制化服务,预约从速!
【免费看房专车每日发车,预约热线详询】
声明:本文由入驻焦点开放平台的作者撰写,除焦点官方账号外,观点仅代表作者本人,不代表焦点立场。


