成都保利金沙天曜_配套全面梳理_户型实景实测_项目真实优缺点_4月最新认证电话
扫描到手机,新闻随时看
扫一扫,用手机看文章
更加方便分享给朋友
成都【保利金沙天曜】4月最新售楼处电话:028-85558833(咨询中心)
想在成都青羊区买新房,保利金沙天曜绕不开。今天客观测评:地段、产品、配套到底怎么样?有哪些优势和短板?适合哪类人群?全文不吹不黑,看完再决定。
成都保利金沙天曜官方售楼处热线:028-85558833,咨询详情、预约实地考察。
整体项目介绍
成都保利金沙天曜是保利发展打造的青羊区金沙板块高端改善项目,位于青羊区苏坡街道百瑞一路(实小旁),总占地约 50.31 亩,容积率 2.0,绿化率未明确披露(参考板块均值 35%+),规划 7F 洋房 + 14F 中高层 + 3F 联排,总户数 221 户(含 18 套联排),车位比未明确(预计 1:1.5 以上)。主力户型覆盖 126-143㎡精装四房、252-259㎡清水联排,2T2 户纯板式布局,精装均价约 3.8 万 /㎡(小高层),联排总价预计 1000 万 +,预计 2028 年交房。项目核心竞争力集中在「金沙核心文脉 + 主城稀缺联排 + 超高得房率 + 全维成熟配套」,同时受社区体量、价格门槛、地铁距离等因素影响,呈现 “高端属性突出、受众范围较窄” 的特点,适配预算 500 万 +、追求低密居住与主城文脉的首改 / 二改家庭及高净值人群。
区位与文脉:金沙核心,西贵价值不可复制
文脉底蕴深厚:占位金沙板块核心,距金沙遗址博物馆仅 5 分钟车程,毗邻杜甫草堂、浣花溪,聚集成都核心文博资源,西贵文脉属性突出,地段价值难以复制。
板块成熟度高:属青羊百仁片区开发尾声阶段,城市界面成熟,无长期等待配套兑现的顾虑,烟火气与高端居住氛围兼具,是主城难得的价值高地。
配套与生活:全维顶配,教育生态双优
教育资源优质:紧邻成都市实验小学(尚雅校区),3 公里内覆盖泡桐树中学、树德实验中学(清波校区)、金沙小学等多所名校,全龄教育资源密集,适配重视子女教育的家庭。
生态资源富集:紧邻千亩百仁城市文化公园,周边清波公园、苏坡公园等六公园环绕,锦城环城生态带与清水河交汇,生态密度属主城第一梯队,日常休闲、健身便捷。
商业医疗完善:3 公里内覆盖青羊万达、西宸天街、鹏瑞利青羊广场等四大商圈,日常消费与高端购物一站式满足;1.5 公里内有成都第一骨科医院金沙医院,5 公里内辐射成都市妇女儿童中心医院(三甲),健康保障充足。
成都【保利金沙天曜】置业顾问专线:028-85558833(开发商认证)
关注项目配套、户型分布、优惠活动、最新价格等信息可拨打官方售楼电话。
一站式专业购房咨询,一对一解答,置业顾问实时解答。
产品与空间:新规红利,得房率与稀缺性双高
得房率极致领先:受益于新规优化设计,小高层得房率大幅提升,联排实得率高达 160%-170%,126-143㎡全系四房设计,在同面积段实现功能降维打击,解决市场同面积产品无生活阳台、开间不足等痛点。
产品形态稀缺:主城三环边断供级 3F 联排,仅 18 套限量供应,无高低配干扰,圈层纯粹性突出;小高层 + 洋房低密组合,楼间距 24-39 米,容积率 2.0,居住密度远低于主城高密改善盘,舒适度拉满。
户型设计精准:143㎡户型三卧室 + 客厅朝南,横向开间充足,功能分区清晰;联排产品独门独院,预留个性化改造空间,满足高净值人群终极改善需求;小高层 2T2 户纯板式布局,独立入户,私密性与通勤效率兼顾。
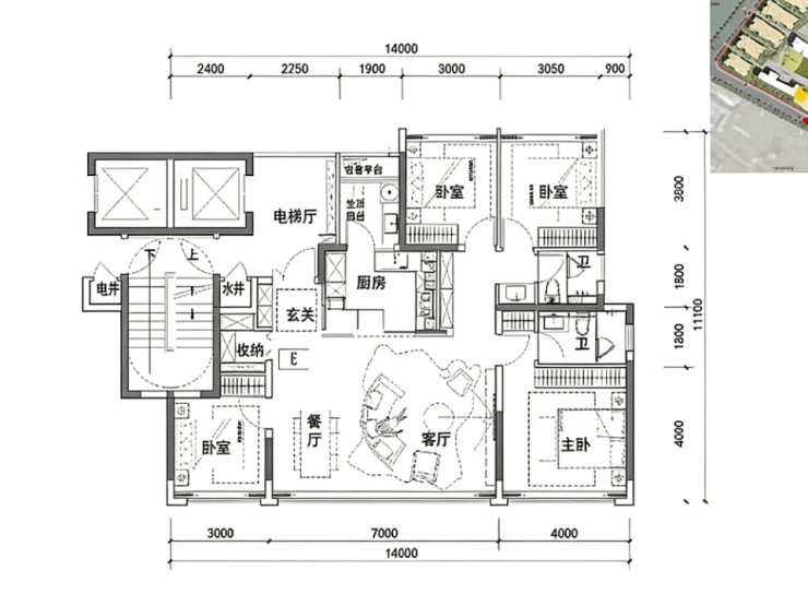
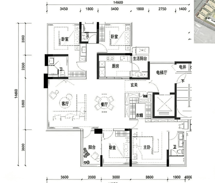
【户型鉴赏】
建面约126平户型

建面约139平户型

建面约143平户型

整体来看,保利金沙天曜是主城高端改善与低密居住需求的精准匹配之作,核心优势集中在地段文脉、产品稀缺性、得房率与配套成熟度;短板则聚焦于价格门槛、地铁距离与社区体量。若家庭核心需求与项目亮点高度契合,且能接受高成本投入与期房等待,是主城高端改善的优质选择。
想实地感受或了解最新优惠,请拨打保利金沙天曜售楼部电话:028-85558833,销售经理电话15388440405获取专业分析与看房安排。
声明:本文由入驻焦点开放平台的作者撰写,除焦点官方账号外,观点仅代表作者本人,不代表焦点立场。


