成都「新希望天屹」臻藏热线:360°环幕奢华人居开放鉴赏,VIP专车恭迎尊崇品鉴,8月购房补贴加码钜惠,限量特价臻席恭候争藏。---**改
扫描到手机,新闻随时看
扫一扫,用手机看文章
更加方便分享给朋友
【新希望天屹】售楼处热线:028 - 62444811(已认证)
【新希望天屹】项目渠道经理热线:15388440405(微信同号)
温馨提示:为确保能为您提供更优质、更高效的接待服务,若您有看房计划,请提前致电售楼处进行预约!
【提供免费看房车接送服务,若您有需求,请致电售楼处预约】
【经开发展|新希望•天屹】楼盘详情解析
【经开发展|新希望•天屹】占据东安湖中央居住区核心位置,打造2.0低密纯居洋房社区,推出建面约116 - 143㎡新派隐逸奢宅,是众多购房者关注的焦点。
楼盘信息详情
✔1#:面积为143㎡,共计30套,预计售价2万/㎡。✔2#:面积116㎡,有40套房源,预计价格同样为2万/㎡。

【项目基础信息全方位了解】
该项目由千亿国企经开发展与先锋民企新希望地产强强联手打造。项目总占地44亩,容积率仅2.0,规划为10栋纯洋房物业形态。产品涵盖建面约116㎡与143㎡两种面积段,总层高为10 - 16F的洋房,梯户比为1T2/2T2,绿化率约35%(不含东干水渠),交付标准为精装交付,项目地址位于龙泉驿区东安街道跨湖路。
【项目十大核心亮点深度剖析】
亮点一:经开发展与新希望地产再度携手,这是双方合作的第四个作品,交付质量与品质有绝对保障。亮点二:地处东安湖中央居住区核心首熟区,15分钟即可畅享便捷生活圈。亮点三:作为区域内唯一在售的2.0低密纯住宅、纯洋房小区,稀缺性不言而喻。亮点四:拥有区域唯一下沉式真会所,且以宝格丽为主题,尽显高端品质。亮点五:东干水渠滨河绿道贯穿小区,搭配双超大中庭园林景观,形成内外双园的独特景观格局。亮点六:区域内唯一独立光厅带梯控入户设计,配置可与新希望D10相媲美。亮点七:拥有区域稀缺的116㎡ 1T2户三室两厅两卫户型,满足多种居住需求。亮点八:区域最大面宽的143㎡户型,带入户光厅,得房率超高,是改善居住的理想之选。亮点九:区域最高装标,配备日立中央空调、落地式一体马桶、12套洗碗机等高端配置。亮点十:新希望豪宅物业服务一脉相承,为业主生活保驾护航。

【周边配套全面解读】
【商业】周边商业氛围浓厚,约500米可达龙湖东安天街,约600米处是新城吾悦广场,约2.5公里外有万达广场,让您尽享湖芯醇熟生活圈。【交通】依靠蜀都大道、驿都大道、桃都大道等四横三纵道路网,可轻松通达全城。距离地铁2号线书房站约800米,远期还有11、22、25号线的规划。【教育】周边教育资源丰富,比邻向阳桥幼儿园、小学、中学,经开区实验中学(教科院领办),成都市实验小学(和雅校区、乐雅校区)等全龄优质教育资源,板块内还有四川师范大学成龙校区、四川财经职业学院等高等学府。【医疗】在半径4公里范围内,汇集了四川大学华西医院龙泉医院(距项目约1.6km)、成都中医药大学附属医院龙泉医院(距项目约3.5km)、龙泉驿妇幼保健院(距项目约2km)、四川省第三人民医院(距项目约3.9km)等三甲医院,为您的健康保驾护航。【公园】与东安湖公园、驿马河公园、龙泉山城市森林公园近在咫尺,构建优质生活圈。

户型鉴赏:
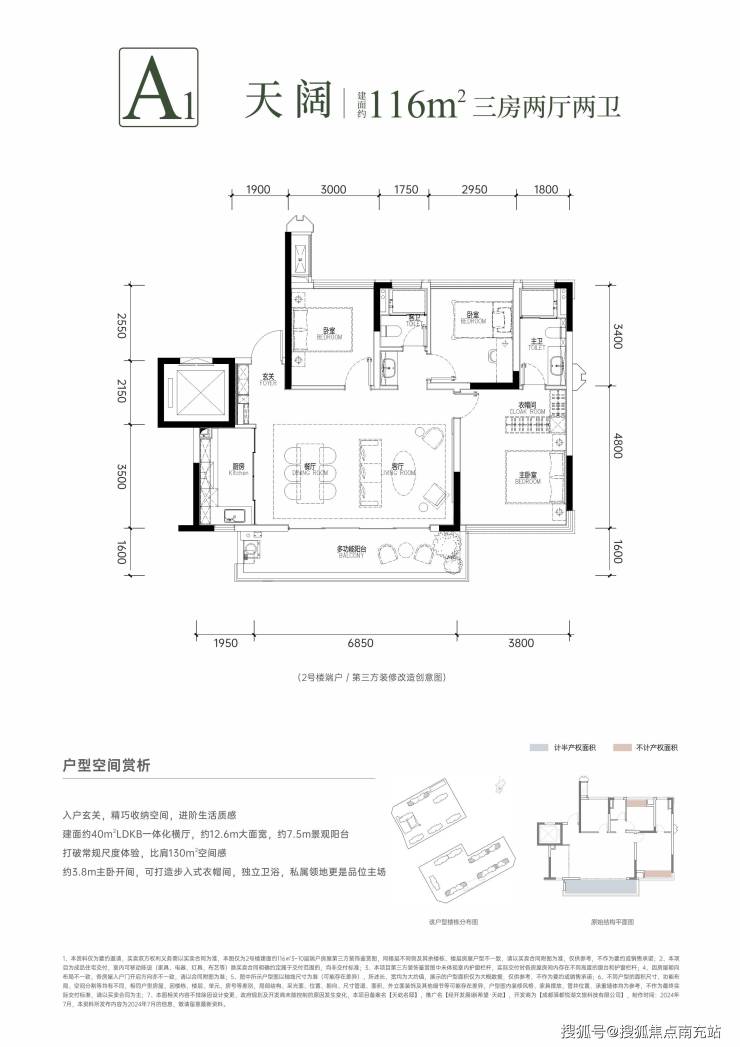
【极质116㎡】户型为横厅三房两厅双卫。此户型是目前片区唯一在售120㎡以下的洋房产品,空间使用率超高,是婚房的绝佳选择。全盘仅198套,首开仅30套,十分稀缺。
【越级143㎡】户型为四房两厅双卫。该户型是区域最大面宽143㎡的产品,光厅入户还带有梯控,可与一线豪宅相媲美。部分房源还能邻一线河景,无疑是区域改善首选。
新希望天屹是否值得购买?
新希望天屹凭借其优越的地理位置、完善的周边配套、精心设计的户型以及高品质的物业服务,在成都楼市中脱颖而出,宛如一颗璀璨的明珠。无论是考虑自住还是投资,它都无疑是一个值得深入考量的理想选择。不过,购房者在做决策之前,还需结合个人需求和实际情况进行全面综合的考虑。但无论怎样,新希望天屹都值得您深入了解与重点关注,是一个不可多得的优质楼盘。
【新希望天屹】售楼处热线 028 - 62444811(已认证)
【新希望天屹】项目渠道经理热线 15388440405(微信同号)
温馨提示:为给您带来更高品质的接待服务体验,看房请提前致电售楼处预约!
【有免费看房车接送服务,如需预约,请致电售楼处】
声明:本文由入驻焦点开放平台的作者撰写,除焦点官方账号外,观点仅代表作者本人,不代表焦点立场。


