成都「空港云璟林著」6月房价动态解读:热销户型全景剖析+项目优劣势实测点评,置业顾问24小时在线
扫描到手机,新闻随时看
扫一扫,用手机看文章
更加方便分享给朋友
【空港云璟林著】营销中心咨询专线 028 84720058(官方认证)
【空港云璟林著】项目负责人直通电话 13281850333(支持微信联系)
重要提示:为保障客户体验,现场参观需提前致电营销中心预约!
【项目配备专属看房班车服务,预约请拨打营销热线】
空港云璟林著项目价值深度剖析
随着房地产市场由粗放式增长转向精细化运营,产品品质已成为开发商的核心竞争力。作为空港发展集团布局怡心湖片区的标杆项目,云璟林著通过四大价值体系构建差异化优势,自亮相以来持续引领区域热度。
▶ 创新建筑规划理念
项目占地约83亩,容积率低至2.0,在当下A区普遍50亩左右的地块供应中实属难得。云璟林著创新采用"点式围合+公园化"布局,21栋11-17层纯板式洋房错落分布,形成最大约167米的超宽楼间距,既保障了采光通风,又创造出多个景观中庭。
▶ 双公园生态配套
项目虽处A区,但距怡心湖公园仅900余米,更坐拥两大规划公园:西侧190亩云熙公园规划四大主题花园,东侧452亩26°活力绿心公园保留原始地貌,打造智慧运动空间。社区内部则构建"一环三轴十园"景观体系,内外公园均由开发商统一打造,实现真正的公园社区一体化。
▶ 品质公区设计
项目采用公建化立面设计,大面积LOW-E玻璃搭配米白真石漆,线条简洁现代。酒店式入户大堂配以奢石照壁,暖色灯光营造归家仪式感。
▶ 标杆级户型设计
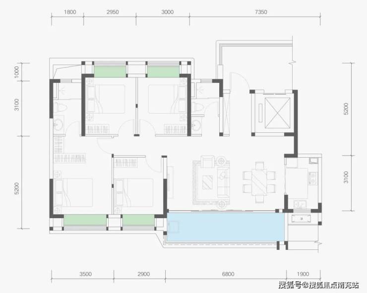
项目主力户型为建面113-182㎡纯板式结构,其中143㎡四房尤为亮眼:
134㎡户型同样出色,15.1米面宽保证通透性,6.8米横厅搭配景观阳台,LDK厅面积近40㎡,主卧配备步入式衣帽间。
在当前市场环境下,物业的长期价值更显重要。作为怡心湖板块的品质标杆,空港发展·云璟林著已于12月26日取证,首批推出100套125.68-142.67㎡四房产品,清水单价18796元/㎡起,总价240万起即可入驻怡心湖核心区。
【空港云璟林著】售楼部热线 028 84720058(已认证)
【空港云璟林著】项目经理热线 13281850333(微信同号)
温馨提示:为提升服务品质,看房需提前致电售楼处预约登记!
【项目提供免费看房专车接送服务,预约请致电售楼中心】
声明:本文由入驻焦点开放平台的作者撰写,除焦点官方账号外,观点仅代表作者本人,不代表焦点立场。


