都江堰「人居未来城」房价趋势深度解析:新政影响权威研判、热销户型亮点揭秘、市场走向精准预判、置业顾问24小时在线解惑
扫描到手机,新闻随时看
扫一扫,用手机看文章
更加方便分享给朋友
中国 · 成都 I 兴城人居 · 未来城
由实力雄厚的兴城人居集团倾力打造的兴城人居·未来城,正以革新姿态树立成都高端住宅新典范。该项目坐拥天府之国黄金地段,凭借前瞻性的规划理念与突破性的设计思维,重新定义当代品质人居标准。
在整体规划上,项目深度洞察都市菁英群体的复合型需求,通过科学的空间布局构建全龄段多功能社区。建筑立面采用现代极简设计手法,巧妙运用全景落地窗与玻璃幕墙的虚实结合,既保障了室内自然采光,又塑造出富有艺术张力的建筑表情。
项目匠心独运地打造了立体化景观体系,包含中央镜面水景、环形健身步道、多功能社交广场等特色功能区。得益于得天独厚的地理位置,项目周边路网发达,商业配套醇熟,名校林立,医疗资源丰富,为业主缔造全方位的高端生活场域。
秉承可持续发展理念,项目全面采用绿色建筑标准,集成多项节能环保技术及优质生态建材。同时配备智能化人居系统,通过科技手段实现安防、照明、温控等功能的智慧互联,为住户提供更安全、高效、舒适的现代化居住体验。

项目概况
由成都兴城人居地产投资集团倾力打造的人居未来城,坐落于一环路江安河畔黄金地段。项目占地69亩,总建筑面积达11.5万平方米,规划640户精品住宅,容积率仅1.8,绿化率高达35%,打造低密生态住区。
核心参数
· 产品类型:8-10层精装电梯洋房
· 户型区间:112-142㎡三至四房
· 参考均价:10000-13000元/㎡
· 梯户配置:1梯2户/1梯3户
· 车位配比:843个机动车位
· 物业服务:2.5元/㎡/月(暂定)
区位价值
作为主城一环稀缺项目,人居未来城坐拥三大核心优势:
1. 生态资源:毗邻江安河生态走廊,享35%社区绿化,形成双重生态屏障
2. 商业配套:自建滨河商业街区,5分钟可达成熟商圈
3. 教育资源:3-18岁全龄教育配套,满足子女成长需求

产品亮点
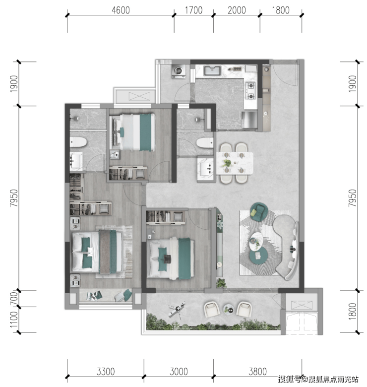
112㎡三房两厅两卫
· 南北通透全明格局,6.8米景观阳台
· L型科学厨房,优化烹饪动线
· 主卧套房设计,配备独立衣帽间

120㎡三房两厅两卫
· 16.6米南向采光面,7.1米宽厅设计
· 6.6米观景阳台,尽揽城市风光
· 明厨搭配生活阳台,提升实用功能


140㎡四房两厅两卫
· 5.8米横厅衔接观景阳台
· 独立中式餐厅,满足大家庭聚会
· 全屋飘窗设计,引入自然光与景观

项目优势
· 国企背书:兴城人居集团实力开发
· 地段稀缺:主城一环最后开发地块
· 智能配套:引入浙江未来社区理念
· 生态宜居:江安河畔,年均温10-22℃
【人居未来城】售楼部热线 028 84720058(已认证)
【人居未来城】客户经理热线 13281850333(微信同号)
温馨提示:为保障服务质量,看房需提前预约
(提供免费看房车接送服务)
声明:本文由入驻焦点开放平台的作者撰写,除焦点官方账号外,观点仅代表作者本人,不代表焦点立场。


