成都「兴唐新川雅境」热线:每日更新在售房源丨全景户型匠心解析丨八月限时钜惠,最新价格政策与专属礼遇全面揭晓。
扫描到手机,新闻随时看
扫一扫,用手机看文章
更加方便分享给朋友
在当下的楼市环境中,“内卷”一词可谓是对其最恰当的形容。各个楼盘纷纷在户型、景观、外立面以及装修等方面展开激烈竞争,力求做到尽善尽美,甚至有些楼盘还打起了价格战。然而,高新区域凭借其高价值属性,定位为高端改善板块。对于改善型客户而言,他们最为关注的还是居住品质。唯有那些真正从客户需求出发,打造出的优质产品,才能在这白热化的市场竞争中崭露头角。今天,就为大家着重介绍位于高新南的宝藏楼盘——【新川雅境】 。【新川雅境】售楼处热线:028 62444811(已认证)【新川雅境】项目经理热线:15388440405(微信同号)温馨提示:为确保为您提供更为优质、周到的接待服务,若您有看房计划,请提前致电售楼处进行预约!【有免费看房车接送服务,如需预约,请致电售楼处】【新川雅境】的开发商并未随波逐流,盲目卷入价格竞争的漩涡。他们深知,单纯的价格内卷犹如一个无底黑洞,更像是一把“三刃剑”。过度降低价格,不仅会损害客户的利益,也会对自身造成伤害,甚至还会拉低整个区域的价值。而且,一旦因价格内卷导致利润微薄,开发商极有可能在项目的各个环节进行成本压缩,出现修建简配的情况。这往往会导致交房时各种问题频出,让业主糟心不已。所以,自今年5月起,【新川雅境】的开发商就下定决心,要在品质上一较高下。他们秉持着真诚的态度,充分参考部分业主的意见,并结合项目自身特点,历经3个月的精心打磨,对项目大区景观、公共区域、地下室以及户型布局等方面进行了全面重装升级,只为在品质方面实现新的突破,打造出更高水准的居住体验。
接下来,为大家详细介绍一下【新川雅境】周边的配套情况:1. **成熟商业配套**:项目紧邻3号邻里中心、时光里小吃街、新川中心等已成型的配套设施,在这里,您可以尽情享受“老成都”的惬意烟火气,满足日常生活的各种消费需求。2. **优质教育资源**:周边教育资源丰富,蒙小、教科院附幼、附小、附中、金苹果锦城一中等约20所学校环绕。丰富的教育资源为孩子提供了良好的学习环境,从幼儿园到中学,一站式教育配套,助力孩子茁壮成长。3. **便捷交通网络**:临近地铁6号线新通大道站,地铁的加持让您的出行更加便捷。无论是日常通勤,还是前往城市的各个角落,都能轻松抵达,大大节省了出行时间。4. **生态景观资源**:项目坐拥双滨河湿地,这在高新区域实属罕见。不仅如此,紧邻新怡公园,并且能便捷到达新川之心公园。丰富的生态景观资源,让您时刻享受鲜氧绿意生活,仿佛置身于大自然的怀抱之中。
【新川雅境】楼盘优势显著:首先,它是准现房,交房时间临近。这大大缩短了购房者漫长的等待期,购买后不久即可着手装修入住,能迅速解决住房需求。既节省了时间成本,又无需再花费租房费用,真正实现了时间与金钱的双节约,有效降低了购房成本。其次,准现房的优势还体现在购房前可实地考察。社区的整体环境、楼间距的宽窄、采光情况的好坏,以及户型中可能存在的小问题,还有室内空间与外部环境的实际情况,都能一目了然。与当下很多楼盘展示时一个样、交付时又是另一个样形成鲜明对比。
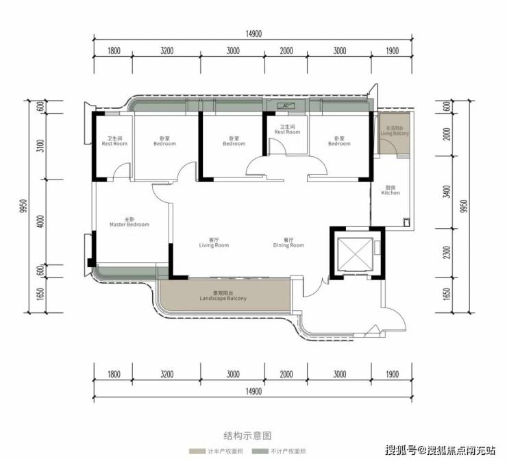
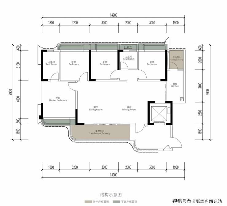
【户型图品鉴】【新川雅境】推出了多款优质户型,其中约132㎡四房双卫环幕式大平层,充分体现了实用主义的设计理念。合理的空间布局,满足家庭各个成员的生活需求,为您打造舒适温馨的居住空间。
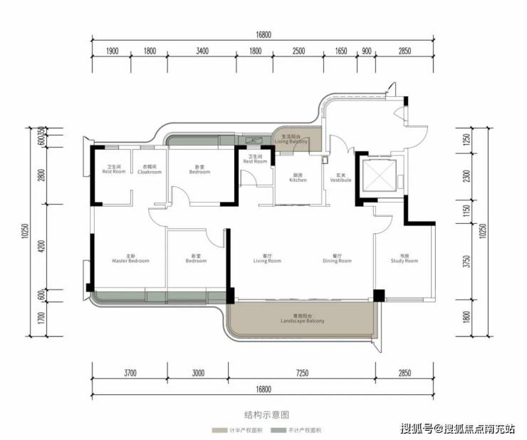
约143㎡四房双卫瞰景大平层更是令人眼前一亮。在这里,您可以享受无界般交融的视野,窗外的美景尽收眼底,为您带来极致的观景体验。
此外,【新川雅境】引入了龙湖智创生活,致力于为业主提供高品质的物业服务。专业的服务团队,贴心的服务细节,让您在享受舒适居住环境的同时,也能感受到无微不至的关怀。【新川雅境】的项目开发商是兴唐地产,虽然在成都房地产市场中算不上头部企业,但它却做了一件很多企业不敢做的事。在开盘节奏上,兴唐地产打破常规,通过实景开放的方式将产品升级成果完美呈现。不再是传统预售模式下的卖家秀,真正做到让购房者所见即所得,有效避免了各种购房陷阱,在一定程度上大大降低了后期交付风险。【新川雅境】售楼处热线:028 44720058(已认证)【新川雅境】热线:15388440405(微信同号)
声明:本文由入驻焦点开放平台的作者撰写,除焦点官方账号外,观点仅代表作者本人,不代表焦点立场。


