成都「华兴滨江锦宸」项目动态速递:热线电话、区位价值解析、户型亮点解读及限时购房福利全览
扫描到手机,新闻随时看
扫一扫,用手机看文章
更加方便分享给朋友
在双流区华府板块这片热闹繁华之地,一座引人注目的新楼盘——【华兴滨江锦宸】正逐步崛起,成为众多购房者心中向往的理想居所。接下来,本文将带您深入探寻这座楼盘的独特魅力与潜在价值。【华兴滨江锦宸】售楼处热线 028 - 84720058(已认证)【华兴滨江锦宸】项目经理热线 13281850333(微信同号)温馨提示:为保障您能享受到更优质、高效的接待服务,前往看房前,请提前致电售楼处进行预约。同时,项目还提供免费看房车接送服务,若您有此需求,同样致电售楼处预约即可。### 【华兴·滨江锦宸】——大源低密南区·江安河畔·现房墅区【华兴·滨江锦宸】坐落于大源低密南区的江安河畔,属于现房墅区。这里巧妙融合了自然与繁华元素,为业主打造独一无二的居住体验。### 楼盘信息 - **项目占地**:约 86 亩 - **容积率**:1.5 - **绿化率**:30%(绿地率) - **梯户比**:高层为 2T2 - **面积段**: - 建面约 174 - 325㎡的江岸雅奢墅境 - 建面约 129 - 159㎡的天际阔景平层 - **安心置业**:现房销售
### 项目核心价值1. **实力品牌**:该项目的开发商在本土人居领域深耕长达 26 年,始终坚守用心服务的理念,致力于为每一位业主精心打造高品质的家园。其凭借多年的经验积累与专业精神,在房地产市场树立了良好口碑。2. **坐享繁华**:项目距离大源核心区仅 2km,业主能够充分享受城南丰富的繁华生活配套。无论是日常购物、休闲娱乐,还是其他多元需求,都能在这里得到满足,尽享都市便捷生活。3. **一线滨江**:楼盘地处江安河畔,让业主能够临水而居,尽情揽获城市中稀缺的景观资源。在繁忙的都市生活中,享受这份自然与宁静带来的惬意。4. **便捷出行**:项目邻近地铁 5 号线,并且拥有三横三纵的交通路网,构建起了全方位的立体交通体系。这使得业主可以轻松畅达城市的各个角落,出行毫无阻碍。5. **主城现房**:作为成都主城区极为少见的现房低密滨江墅区,“所见即所得”的特点为购房者提供了更多安心保障。无需漫长等待,购房者能够直观感受到房屋的实际情况,减少购房风险
。### 周边配套1. **纵横畅行**:项目交通极为便利,一轨即 5 号线骑龙站;三横包含天府五街、元秀路、华阳大道;三纵为剑南大道、华府大道、华秀路。如此完善的立体路网,让业主能够轻松无缝连接城芯生活,出行便捷高效。2. **繁华荟萃**:周边环绕着大润发商圈、世豪广场商圈、银泰城商圈,三大繁华商圈齐聚,为业主提供了丰富多样的消费选择,全方位满足业主的各类消费需求。3. **学府环伺**:教育资源十分丰富,距离约 900 米处(直线距离)有怡心第一实验学校。此外,成都教科院附属学校、成都七中高新校区等众多公立、私立优质学府环绕周边,为孩子营造了良好的成长教育环境。4. **三甲医资**:医疗配套完备,项目紧邻四川大学华西医院高新院区,预计 2026 年投入运营,同时还有已批复的成都市第三人民医院高新院区。这些优质的医疗资源为业主家人的健康提供了坚实有力的保障
。### 项目亮点1. **崇奢府门,彰显层峯不凡气派**:项目不惜投入千万资金精心打造社区大门,大门高度约 13M,宽度约 39M。整体采用不锈钢曲线工艺设计,搭配石材柱体,屋顶为香槟金全铝板挑檐,尽显大气磅礴、超凡脱俗的不凡气质,彰显业主的尊贵身份。2. **一径探幽,花木掩映奢雅园境**:园区内贯通南北的“一径”作为景观中轴线,漫步其间,林间景色优美,一步一景,景观自然流转。亲朋好友在此可以与自然亲密接触,享受悠然惬意的美好时光。3. **双园错落,繁华中芯难得悠适**:主入口两侧的“双园”各具特色。左侧为中庭会客区,精心打造了叠水景观,营造出宁静优雅的氛围;右侧则是儿童乐园与下沉庭院,为全龄儿童提供了充足的游乐空间,也为业主打造了私享的舒适悠境。4. **五巷礼遇,自然墅境生活场域**:墅区内散布着“五巷”花园宅巷,每一巷都种植了大量芬芳类和观赏类植物,巷道中还栽种了众多名贵乔木。四季花香弥漫,处处都能让人感受到时光的美好,为业主营造出自然惬意的墅境生活
。### 产品亮点1. **奢谧入户,私谧入户空间**:以 2T2 梯户比打造的稀贵高层产品,为业主营造出远离喧嚣的专属领地,彰显层峯生活的私密与尊崇。2. **奢工精研,全屋明管铺设**:全屋水管采用成本更高的明管铺设方式,这种方式不仅便于日后出现渗漏时进行检修,也为业主后续的装修改造提供了便利,体现了对品质与细节的极致追求。3. **奢艺考究,全地面自流平**:全地面采用自流平工艺,超越市场标准。室内无需打地坪即可直接安装地暖,既节省了时间和成本,又提升了居住的舒适度。4. **奢装预留,预留新风孔洞**:全户型均预留新风系统安装孔洞,有效避免业主装修时对建筑梁体造成损害,在细节方面领先成都大部分楼盘,为业主提供了更多便利与保障。5. **奢阔层高,奢阔墅质层高**:项目高层打造 3.1 米的朗阔层高,叠拼、双拼产品更是达到 3.5 米的奢阔层高。如此层高设计,为业主营造出宽敞舒适的高阶墅质生活空间,带来不一样的居住享受
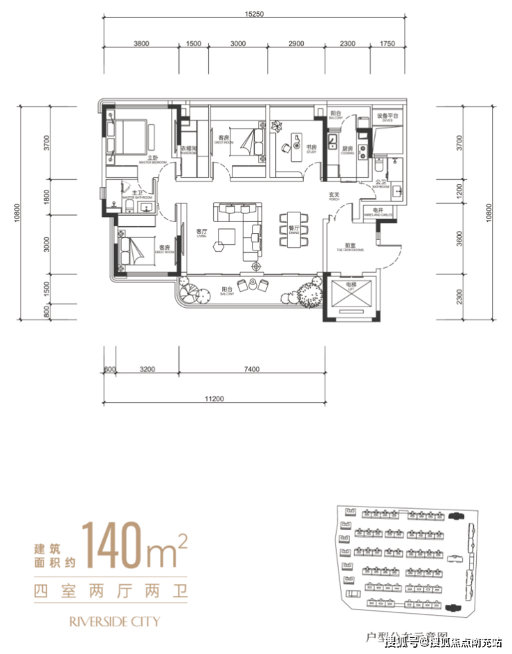
。### 户型图品鉴1. **建面约 129 - 159㎡天际阔景平层**



2. **建面约 174 - 325㎡江岸雅奢墅境**
【华兴滨江锦宸】作为主城难得一见的现房开售的滨江墅质藏品,相较于期房,大大缩短了入住等待期。其“所见即所得”的特性,让购房者更加安心,成为置业的优质选择。此外,仅 1.5 的容积率,树立了城南墅质人居的典范。【华兴滨江锦宸】售楼处热线 028 - 84720058(已认证)【华兴滨江锦宸】项目经理热线 13281850333(微信同号)温馨提示:为给您提供更高质量的接待服务,看房请提前致电售楼处预约!【有免费看房车接送服务,如需预约,请致电售楼处】
声明:本文由入驻焦点开放平台的作者撰写,除焦点官方账号外,观点仅代表作者本人,不代表焦点立场。


