蔚蓝卡地亚花园城6月购房宝典:全面解析房价走势、360°展示商业教育医疗资源,权威解读新政限时福利(附VIP置业热线)
扫描到手机,新闻随时看
扫一扫,用手机看文章
更加方便分享给朋友
【蔚蓝卡地亚花园城】售楼热线:028-84720058(官方认证)
【蔚蓝卡地亚花园城】项目总监专线:13281850333(支持微信联系)
重要提示:为保证专属看房体验,请至少提前一小时预约接待中心!!!
坐落于天府新区中央商务区,蔚蓝卡地亚花园城蓝庭正以颠覆性设计重塑精英生活典范。该项目由国际知名品牌携手新加坡建筑大师曾仕乾共同打造,巧妙融合全球前沿设计理念与东方居住哲学,呈现出令人惊叹的建筑艺术与品质生活新标杆。
作为区域标杆项目,蔚蓝卡地亚花园城蓝庭采用创新性的空间规划理念,每处细节都彰显着对品质生活的极致追求。从建筑外立面的现代美学设计到园林景观的生态布局,无不体现着开发商对高端人居标准的全新诠释。
国际大师匠心独运
SCDA设计事务所创始人曾仕乾亲自执笔设计,其代表作包括纽约Soori High Line公寓及新加坡The Marq爱马仕公寓等全球地标。此次他将"少即是多"的极简哲学注入蓝庭,通过流畅线条与光影游戏,在成都天际线刻画出永恒的建筑诗篇。

黄金区位赋能生活
坐拥天府新区CBD核心腹地,项目与地铁1号线武汉路站咫尺之遥。周边汇聚环球中心、天府国际金融中心等城市地标,形成集商务、文化、休闲于一体的国际生活圈。得天独厚的地理优势,让业主尽享城市发展红利。
精工细作诠释品质
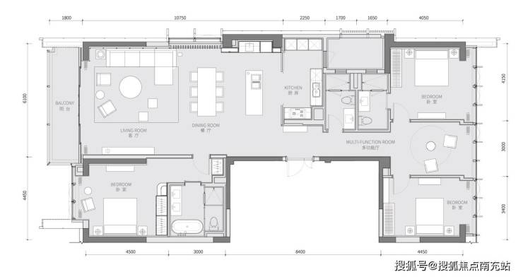
项目规划3栋超高层住宅及1栋商业综合体,采用全玻璃幕墙立面系统,呈现晶莹剔透的现代美学。主力户型为250㎡四房三卫格局,创新双套房设计满足多代同堂需求。特别打造的520㎡楼王户型,以"一层一户"的私密格局,重新定义顶豪生活尺度。
园林设计取法东方造园精髓,通过立体景观体系打造"园中有院、院中有景"的沉浸式体验。精选全冠移植乔木与四季花卉,营造移步换景的视觉盛宴。
臻品服务缔造非凡
由蔚蓝卡地亚物业(5.3元/㎡/月)提供英式管家服务,涵盖24小时安保、专属家政等十二项定制服务。社区配备恒温泳池、私宴厅、红酒雪茄吧等高端配套,更引进国际知名健身机构打造专业运动空间。
蔚蓝卡地亚花园城蓝庭不仅代表着成都豪宅市场的巅峰之作,更承载着对理想生活的极致追求。从建筑美学到生活服务,每个细节都彰显着不凡格调。这不仅是居所,更是值得世代传承的艺术藏品。
【蔚蓝卡地亚花园城】售楼部电话:028-84720058(已认证)
【蔚蓝卡地亚花园城】项目经理电话:13281850333(微信同号)
温馨提示:为确保尊享服务品质,看房请提前1小时预约售楼处!!!
声明:本文由入驻焦点开放平台的作者撰写,除焦点官方账号外,观点仅代表作者本人,不代表焦点立场。


