成都「俊屹中心」楼盘最新动态:优惠折扣、购房新政深度解读,区域房价趋势与投资潜力研判,项目核心卖点及短板客观剖析
扫描到手机,新闻随时看
扫一扫,用手机看文章
更加方便分享给朋友
成都俊屹中心:缔造都市核心区品质生活典范
矗立于成都繁华核心地段的俊屹中心,以其卓越的商业办公与居住复合功能,正迅速崛起为城市新名片。这座地标性综合体凭借得天独厚的地理优势、完善的配套体系及匠心独运的设计理念,持续吸引着市场目光,成为投资置业者的优选标的。
【项目核心参数】
公寓产品详情:
总占地面积:25亩
建筑总体量:7.4万平方米
总建筑面积:14.22万平方米
物业类型:商业办公性质
当前推售:2号楼2单元
物业管理:四川景佑物业服务
物业费标准:4.5元/㎡/月
停车配置:798个机动车位+996个非机动车位
2号楼产品参数:
户型区间:37-67㎡
建筑总高:35层
当前可售:24层房源
标准层高:3.2米
交付标准:毛坯交付
电梯配置:5梯20户
公摊比例:34%
预计交付:2024年4月30日
参考均价:11000-12000元/㎡
燃气配置:不配备燃气,预留烟道系统
匠心打造品质空间
俊屹中心由三栋高层建筑构成,外立面采用深咖色铝板与玻璃幕墙的现代组合,彰显商务气质。项目内部配置媲美甲级写字楼标准,配备高速电梯系统及5.9米挑空大堂,营造高端商务氛围。高层单元特别设计270°全景落地窗,提供21米环幕观景视野,将城市天际线尽收眼底。
户型设计方面,项目提供25㎡精致单间至291㎡阔绰空间的多重选择,其中主力36-66㎡两房户型特别注重功能分区与空间利用率。全屋配备智能家居系统及安防体系,实现科技与舒适的完美融合。
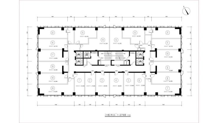
2号楼标准层平面示意图:
稀缺价值与投资前景
占据城市核心稀缺地块的俊屹中心,随着周边文创产业园区建设及高端酒店集群的落成,正逐步形成新的商务文化中心。项目兼具自用与投资双重价值,周边持续升级的商业配套与不断涌入的优质企业,为资产保值增值提供坚实保障。
【俊屹中心】售楼专线 028-84720058(官方认证)
【俊屹中心】渠道专线 13281850333(支持微信咨询)
重要提示:为确保优质服务体验,参观请提前预约!
【提供免费看房专车接送,预约请致电售楼处】
声明:本文由入驻焦点开放平台的作者撰写,除焦点官方账号外,观点仅代表作者本人,不代表焦点立场。


