成都「空港云璟林著」售楼部电话-交房时间-特价优惠-空港云璟林著小区配套
扫描到手机,新闻随时看
扫一扫,用手机看文章
更加方便分享给朋友
【空港云璟林著】售楼部热线 028 84720058(已认证)
【空港云璟林著】项目经理热线 13281850333(微信同号)
温馨提示:为保障接待品质,敬请提前致电预约看房!
【免费看房车接送服务,预约请致电售楼处】
空港云璟林著四大核心竞争力解析
在房地产行业从规模竞争转向产品力较量的新时代,唯有回归产品本质才能赢得市场。作为空港发展在怡心湖板块的标杆之作,云璟林著凭借四大核心优势成为区域焦点。
▶ 创新园林式建筑规划
项目占地约83亩,容积率仅2.0,这在当前A区50亩左右的地块供应中实属难得。云璟林著仅规划21栋11-17层纯板式花园洋房,将超60%的土地用于打造园林景观。
项目突破传统布局模式,采用"点式围合+公园化"的创新设计。167米的超大楼间距不仅确保采光通风,更形成多个景观中庭,实现户户观景的效果。
▶ 双公园环绕的度假式生活
距怡心湖公园仅900米的区位优势,叠加项目自身"城市公园微度假社区"的定位,打造出独特的居住体验。
西侧190亩云熙公园(规划中)规划四大主题花园,东侧452亩26°活力绿心公园(规划中)保留原始地貌,打造树阵广场、运动场地等多元场景。社区内部"一环三轴多园"景观体系,形成内外联动的公园生活圈。
▶ 彰显品质的建筑美学
项目采用公建化立面设计,大面积LOW-E玻璃搭配米白真石漆,线条简洁现代。酒店式入户大堂配以奢石照壁,营造归家仪式感。
▶ 超越同级的改善户型
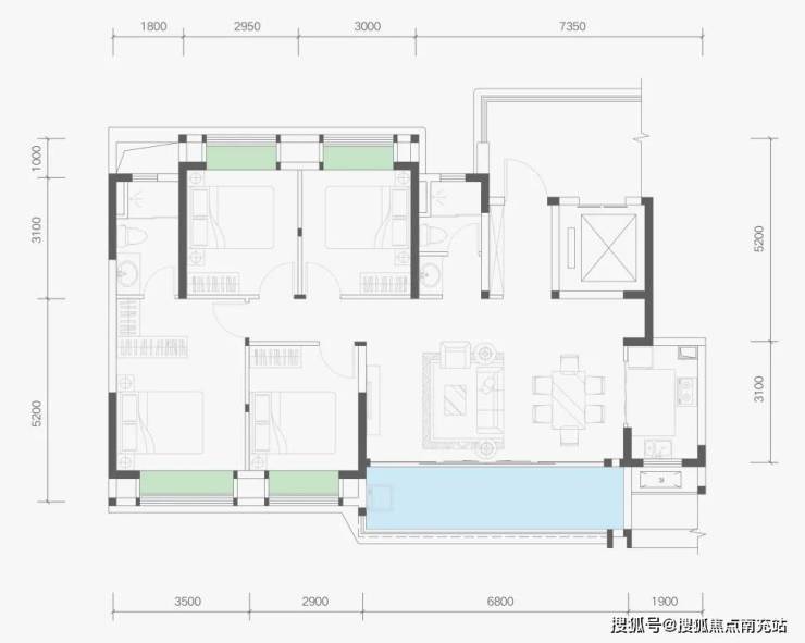
建面约113-182㎡全系T2板式结构,其中143㎡户型创新采用270°环幕端厅设计,7米转角阳台+4.2米进深,形成约13米采光面。U型厨房与50㎡端厅完美结合,空间感媲美200㎡+产品。
134㎡户型同样亮点突出:15.1米超大面宽,6.8米横厅搭配景观阳台,LDK厅面积近40㎡。主卧套房设计搭配步入式衣帽间,彰显改善品质。
目前项目已取证,首批推出100套125.68-142.67㎡四房产品,清水单价18796元/㎡起,总价240万起即可入驻怡心湖核心区。
【空港云璟林著】售楼部热线 028 84720058(已认证)
【空港云璟林著】项目经理热线 13281850333(微信同号)
温馨提示:为保障接待品质,敬请提前致电预约看房!
【免费看房车接送服务,预约请致电售楼处】
声明:本文由入驻焦点开放平台的作者撰写,除焦点官方账号外,观点仅代表作者本人,不代表焦点立场。


