成都【幸福桥TOD幸福拾光】售楼处电话-线上预约看房-楼盘最新动态-12月房价查询
扫描到手机,新闻随时看
扫一扫,用手机看文章
更加方便分享给朋友
【幸福拾光】售楼部电话:028 - 62444811(已认证)
【幸福拾光】销售经理电话:15388440405(微信同号)
温馨提示:了解更多楼盘信息,请致电售楼部,看房请提前线上预约,可享内部优惠。
成都幸福桥TOD幸福拾光:宜居新标杆,未来生活新选择
在快速发展的成都市,每一个新的城市综合体都代表着人们对美好生活的渴望与追求。今天,让我们一同探索成都金牛区北部新城板块的明星项目——幸福桥TOD幸福拾光,这是一个集生态、商业、办公、教育、健康、服务于一体的城市综合体,不仅是成都市首批14个TOD示范项目之一,更是未来宜居生活的新典范。
【周边配套】
项目总占地近500亩,规划面积达到69356平米,绿化率高达40.00%,致力于打造一个集多种功能于一体的城市大盘。这里不仅有高品质的住宅,还规划了丰富的商业、办公、教育、健康等设施,满足居民全方位的生活需求。
商业配套:项目周边商业氛围浓厚,未来将有大型购物中心、特色商业街等商业设施入驻,为居民提供便捷的购物体验。
教育资源:项目周边教育资源丰富,涵盖幼儿园、小学、中学等全龄段教育资源,让孩子在家门口就能享受到优质的教育。
健康服务:项目内规划有医疗健康中心,为居民提供全方位的医疗服务,保障居民的健康生活。
【项目基本信息】
开发商:成都轨道交通集团
物业公司:成都轨道万科物业有限公司
总占地700亩 /二期占地64亩/三期占地74亩
项目区位:金牛区北部新城-地铁5#幸福桥站
总层高:二期12-17F(一楼4.5米架空层无住宅)三期9-17F
容积率:2.0
绿化率:二期52% 三期35%
梯户比:二期2T2 三期 1T2户2T3户
物业费:3.8元
停车位:二期1:1.6三期1:1.2
交房时间:二期2024.8月三期2025.10月
总户数:二期624户三期503户
交付标准:清水洋房
公摊:二期17-20% 三期16-19%
【效果图】
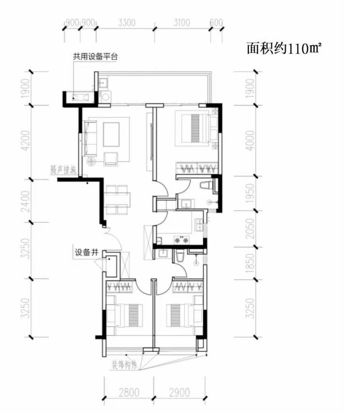
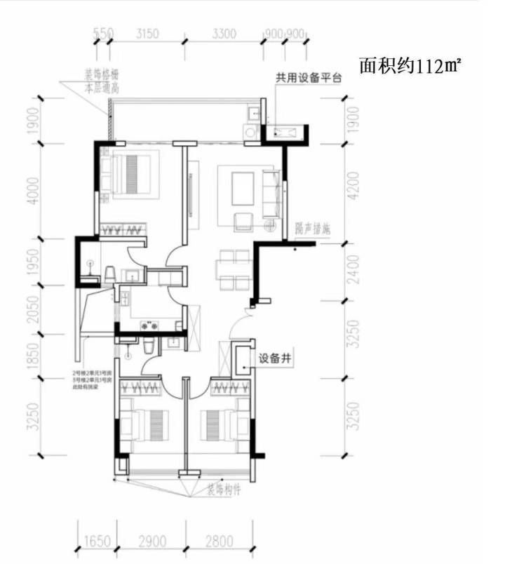
【户型图鉴赏】
幸福桥TOD幸福拾光不仅是一个居住的地方,更是一个充满活力和希望的生活社区。在这里,您可以享受到便捷的交通、丰富的商业配套、优质的教育资源以及健康舒适的生活环境。如果您正在寻找一个理想的家,那么幸福桥TOD幸福拾光无疑是一个值得考虑的选择。让我们一起期待这个美好家园的建成与交付吧!
【幸福拾光】售楼部电话:028 - 62444811(已认证)
【幸福拾光】销售经理电话:15388440405(微信同号)
温馨提示:了解更多楼盘信息,请致电售楼部,看房请提前线上预约,可享内部优惠。
声明:本文由入驻焦点开放平台的作者撰写,除焦点官方账号外,观点仅代表作者本人,不代表焦点立场。


