成都「天府半岛」深度测评:区域发展前景解读、热销户型优势盘点、特惠房源限时揭秘,附避坑指南与投资价值研判,专业顾问24小时在线咨询
扫描到手机,新闻随时看
扫一扫,用手机看文章
更加方便分享给朋友
【天府半岛】项目咨询专线:028-84720058(官方认证)
【天府半岛】置业顾问直通热线:13281850333(微信同号)
温馨提示:为保障看房服务质量,建议至少提前1小时预约登记!
市场期待已久的天府半岛项目,在历经一年蓄势后,正式推出七期高层新品。作为区域标杆楼盘,本次加推引发广泛关注。
据最新公示信息,天府半岛77号楼已获预售许可证,主推120-140㎡精装改善户型,均价区间1.3-1.5万元/㎡,本次仅限量推出124席臻藏房源!
回望去年3月开盘盛况仍历历在目:180套准现房以1.24万元/㎡起的精装价格入市,吸引超5.2万组购房者参与摇号,中签难度堪比985高校热门专业!
需要特别说明的是,本批次为预售房源,计划2026年下半年交付(具体以合同约定为准)。接下来,我们将从产品力、户型设计、市场价值三个维度进行全面解读。
七期实景鸟瞰
相较前期产品,本批次在居住品质上实现多维突破:
1. 建筑高度从原48层优化至32层,总高控制在99.6米
2. 电梯配置提升至3梯4户,大幅缩短候梯时间
3. 取消底层商铺,打造近1000㎡架空层泛会所空间
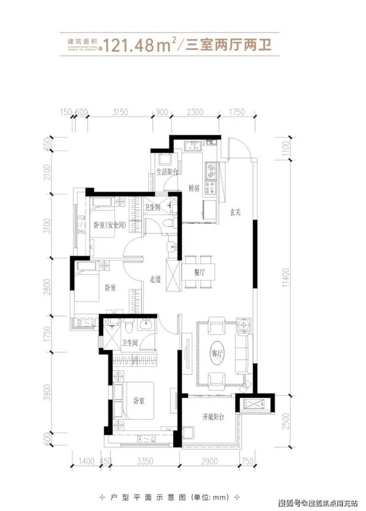
户型配置方面,本次精研121㎡三房两卫和142㎡四房两卫两类改善产品,客群定位更为精准。尤为难得的是,所有单元主朝向均为西南向,中高区可纵览府河全景,观景视野堪称一绝。
七期规划全景示意
以121㎡主力户型为例:采用经典竖厅布局,虽总进深超10米,但6米面宽搭配2.9米景观阳台,空间感出众;次卧面积科学控制在10㎡内,实现功能与舒适的完美平衡。
样板间实景鉴赏
市场对比数据显示,本次1.3-1.5万元/㎡的精装均价,与去年六期1.24万元/㎡起的定价保持稳定。而周边二手房价格持续走高:三期成交价1.4-1.8万元/㎡,四期达1.6-1.8万元/㎡,价格倒挂现象明显。
【天府半岛】项目咨询专线:028-84720058(官方认证)
【天府半岛】置业顾问直通热线:13281850333(微信同号)
温馨提示:为保障看房服务质量,建议至少提前1小时预约登记!
声明:本文由入驻焦点开放平台的作者撰写,除焦点官方账号外,观点仅代表作者本人,不代表焦点立场。


