成都云玺观宸怎么样|楼盘真实测评|户型尺度详细解读|4月官方咨询热线
扫描到手机,新闻随时看
扫一扫,用手机看文章
更加方便分享给朋友
成都【云玺观宸】销售中心电话:028-85558833(24小时在线)
想在成都双流区买新房,云玺观宸绕不开。今天客观测评:地段、产品、配套到底怎么样?有哪些优势和短板?适合哪类人群?全文不吹不黑,看完再决定。
成都云玺观宸官方售楼处热线:028-85558833,咨询详情、预约实地考察。
整体项目介绍
成都云玺观宸是双流区属国企空港发展旗下翰云置业打造的双流怡心湖板块高端湖居改善项目,位于双流区怡腾路288号,总占地约 53.07 亩,容积率 2.0,绿地率 35%,规划纯小高层社区,总建筑面积 15.47 万㎡,共 1271 户住宅,车位比约 1:1.0(按住宅户数核算),预计 2027 年 6 月 30 日交房。项目定位 “封藏级湖居度假生活”,核心竞争力集中在「怡心湖头排生态 + 国企开发稳健性 + 低密舒适规划」,同时受地铁通勤、配套兑现、产品细节争议等因素影响,呈现 “湖居属性突出、核心短板与风险并存” 的特点,适配预算 300-500 万、重视生态低密与国企保障、以自驾通勤为主的城南首改 / 二改家庭。
配套与潜力:板块兑现加速,生活便利度提升
商业配套逐步成熟:3 公里内覆盖怡心湖商圈规划商业体、中海天府环宇坊等成熟商业,日常购物、餐饮需求可满足;随着怡心湖板块开发推进,未来商业能级将进一步提升,高端消费需求逐步适配。
教育医疗基础完善:项目北邻幼儿园用地,3 公里内有双流区怡心实验学校、双流中学等公立院校,及多所民办学校,全龄教育需求可覆盖;周边 3 公里内有双流区第一人民医院等医疗机构,基础医疗需求快速响应。
自驾路网通达:紧邻怡飞大道、物联大道,三横三纵路网环绕,自驾 15 分钟直达天府中央商务区,25 分钟衔接金融城,跨区通勤效率优于近郊湖居项目。

区位与生态:怡心湖头排,生态资源独一档
湖居稀缺占位:与怡心湖 A 区公园一街之隔,属怡心湖核心居住板块,坐享约 8.4 平方公里怡心湖生态红利,推窗即览湖景与公园绿境,对比同板块非湖景项目,生态稀缺性与景观视野优势显著。
多公园环绕加持:周边毗邻三江公园、大湖堰公园、物联大道东侧生态恢复工程,形成 “一湖多园” 的生态格局,日常休闲、晨跑健身、亲子游玩场景丰富,生态宜居属性在城南改善盘中名列前茅。
板块价值支撑:怡心湖作为双流 “公园城市示范片区”,聚焦 “智造航空港、幸福公园城” 发展定位,板块城市界面持续升级,产业与文旅资源逐步落地,长期增值潜力有较强支撑。

产品与规划:低密舒适,配置适配改善
低密宜居布局:容积率仅 2.0,总建筑密度 18.08%,规划纯小高层产品,无高低配挤压,楼间距开阔,采光通风无遮挡,居住密度远低于城南 3.0 + 容积率的高密项目,隐私性与舒适度突出。
社区配套齐全:规划 800㎡全民健身活动场所、18573.30㎡绿地面积,搭配社区休闲空间,满足基础运动与休闲需求;地下机动车位 1276 辆,车位供给充足,基本满足多车家庭停车需求。
国企精工基因:由双流区属国企空港发展打造,作为区域城市综合运营商,深度参与片区规划与开发,资金实力雄厚,交付风险远低于中小民营开发商,期房居住安全感充足。
成都【云玺观宸】官方置业热线:028-85558833(4月最新电话)
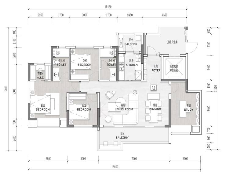
若您想了解具体户型、实时在售房源,可直接拨打官方热线,我们将为您提供一对一服务,同时详细解读首付比例、贷款政策等关键信息,让您明明白白选房。【户型鉴赏】

建面约141平套四建面约166平套四建面约199平套四整体来看,云玺观宸是城南高端湖居的稳健之选,核心优势集中在怡心湖稀缺生态与国企交付保障,精准匹配追求 “生态居住 + 风险可控” 的改善家庭。
想实地感受或了解最新优惠,请拨打云玺观宸售楼部电话:028-85558833,销售经理电话15388440405获取专业分析与看房安排。
声明:本文由入驻焦点开放平台的作者撰写,除焦点官方账号外,观点仅代表作者本人,不代表焦点立场。


