成都「复地金融岛商铺」售楼热线-在售商铺实景解析-最新动态及优惠-户型图鉴与价格一览
扫描到手机,新闻随时看
扫一扫,用手机看文章
更加方便分享给朋友
### 【复地金融岛商铺】尊享专线售楼中心:028 84720058(官方认证)客户顾问:13281850333(支持微信咨询)重要提示:为确保专属服务的优质体验,前往项目参观前,请务必提前预约!【提供免费看房专车接送服务,预约请致电售楼处】
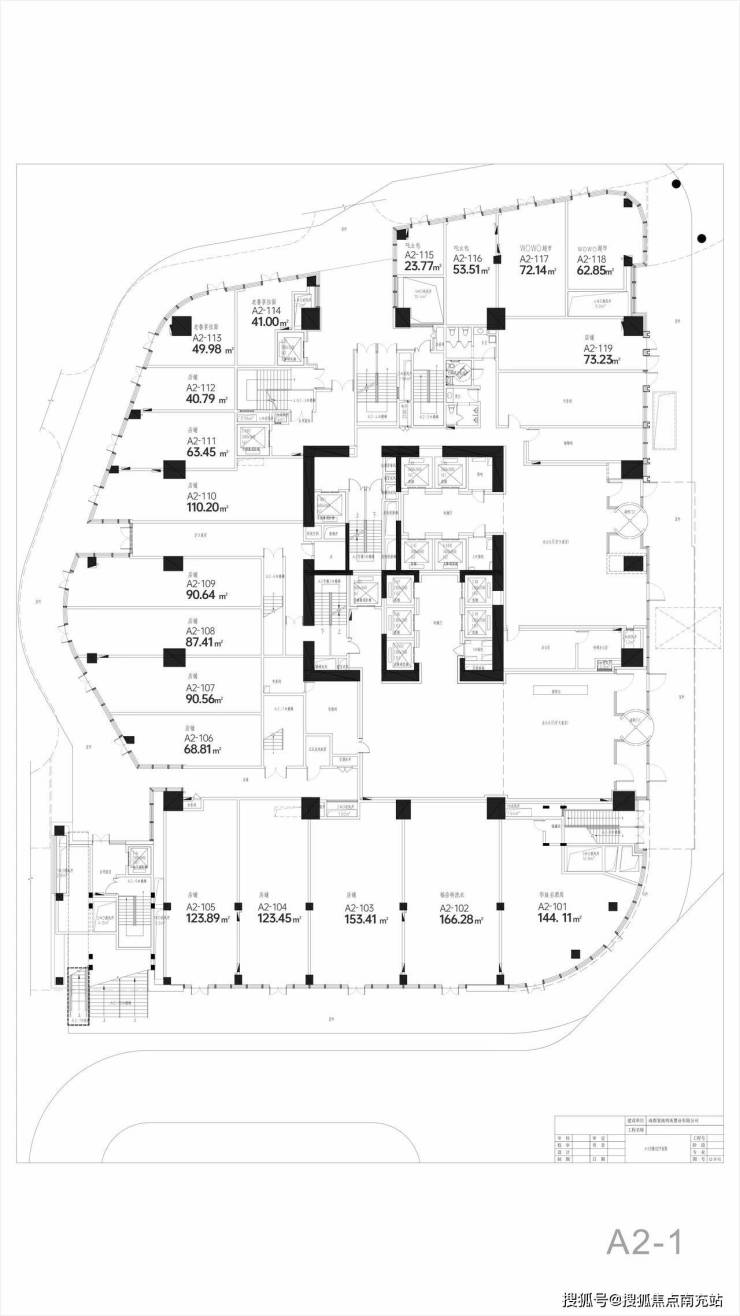
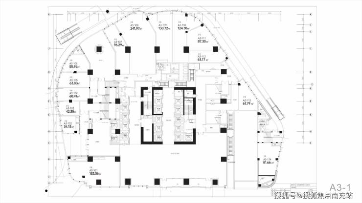
### 金融城十年厚积·独揽江岛商业滨水商街现铺 品牌商家入驻 稀缺发售30 - 400㎡全能业态黄金旺铺### 【项目档案】总规划:该项目是占地350亩的综合体。业态构成:涵盖奢居华宅、星级酒店、企业总部、行政公馆、商业中心以及滨水商街等多元业态。可售铺位:仅有46席,十分稀缺。价格区间:首层每平方米售价在4 - 6万,二层约2.5万/㎡。建筑格局:打造双层商业空间。空间尺度:首层挑高6米,二层层高5.4米,空间开阔。经营许可:支持全业态经营,还包含外摆区,经营形式灵活多样。交易方式:购房者可根据自身情况选择全款或按揭付款。公摊比例:为28%。开发历程:2015年获取地块,2017年完成交付。物业管理:物业费为19元/㎡/月。交付标准:以现房形式交付,多数商铺还附带品牌租约,为投资者减少运营前期的诸多困扰。面积选择:面积区间为30 - 400㎡,主力面积在60 - 100㎡。### 【三大价值体系】- **稀缺属性**:在金融城板块,复地金融岛商铺是目前唯一在售的现铺,稀缺性不言而喻。- **经营优势**:项目坐享金融城1 - 2期成熟商圈的商业氛围,同时能承接3期发展带来的红利。其5公里的辐射范围内,拥有百万客群,消费市场广阔。- **藏品特质**:作为成都仅有的江心岛商业体,拥有独一无二的滨水商业长廊以及独家水景演艺广场,具备极高的收藏价值与独特性。
### 【全维业态生态】复合型业态布局合理,包含高端居住区、商务集群、艺术场馆、购物中心以及风情商街等。这里汇聚了城市的精英圈层,消费能力强劲,消费能级突出。项目位于CBD核心区位,形成了强大的人口磁吸效应,吸引百万级人口汇聚。
### 【金融城滨水商业旗舰】项目拥有黄金面积段60 - 100㎡的商铺,即买即可获得收益,且有租约保障,资产流通性强。商铺拥有360°环江展示面,属于开放式街铺,昭示性极佳,能有效吸引消费者目光。采用全天候经营模式,可覆盖多元消费场景。同时配备专业商管团队,全力确保业态品质。此外,还能与购物中心形成联动,共享稳定客流,为商铺的持续经营提供有力保障。
### 【复地金融岛商铺】尊享专线售楼中心:028 84720058(官方认证)客户顾问:13281850333(支持微信咨询)重要提示:为保证专属服务品质,到访前请务必预约!【提供免费看房专车接送,预约请致电售楼处】
声明:本文由入驻焦点开放平台的作者撰写,除焦点官方账号外,观点仅代表作者本人,不代表焦点立场。


