成都【龙润丰锦】售楼处电话、项目详情、户型深度解析、优劣势客观剖析及年末专属优惠政策解读。
扫描到手机,新闻随时看
扫一扫,用手机看文章
更加方便分享给朋友
【龙润丰锦】售楼部电话:028 - 62444811(已认证)
【龙润丰锦】销售经理电话:15388440405(微信同号)
温馨提示:了解更多楼盘信息,请致电售楼部,看房请提前线上预约,可享内部优惠。
2.0低密墅区 现房洋房 现房洋房
128-178㎡三房四房
东安湖以东,享东进繁华
龙泉山国家级森林公园,享天然氧吧
超大会所私家享受
主要在售面积:128-145㎡
均价1.1万-1.2万
钜惠特价:10800
产品卖点
1、品牌:新加坡丰隆集团,国际品牌保障。龙润丰锦作为丰隆集团匠心打造的“丰锦”高端系列之一,吸纳的均是高净值人才入住。
2、区域:双城核心,东进腹地,享东安新城繁华
3、产品:国际强强联手,以国内外双设计理念,塑造区域品质标杆
4、环境:背靠龙泉山国家森林公园,紧邻蔚然花海、洛带湿地公园及洛带古镇。
5、教育:全龄段教育配套,与师大一中一街之隔。国际学校克雷格公学即将投入使用。
6、小区环境:独创双层中庭园林景观,私享1200平超大会所。
效果图:
户型展示
B1 145㎡(洋房,套四双卫)
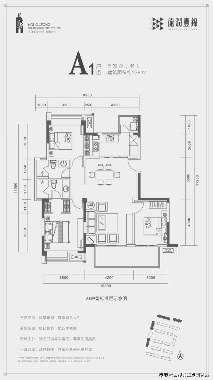
A1 128㎡ (小高层,套三双卫)
155㎡ 顶跃
178㎡顶跃
【龙润丰锦】售楼部电话:028 - 62444811(已认证)
【龙润丰锦】销售经理电话:15388440405(微信同号)
温馨提示:了解更多楼盘信息,请致电售楼部,看房请提前线上预约,可享内部优惠。
声明:本文由入驻焦点开放平台的作者撰写,除焦点官方账号外,观点仅代表作者本人,不代表焦点立场。


