成都「兴唐新川雅境」6月置业盛典启幕!钜惠政策火热放送,售楼专线已开通,实时解读购房新政、开发商动向及项目最新动态
扫描到手机,新闻随时看
扫一扫,用手机看文章
更加方便分享给朋友
当前房地产行业已全面进入品质为王的时代。作为成都高新南区的价值高地,区域市场竞争日趋白热化,唯有真正回归居住本质、潜心打磨产品力的项目,才能赢得改善客群的青睐。今天要重点推介的【新川雅境】,正是高新南区品质人居的典范之作。在行业普遍陷入价格混战的当下,开发商展现出难得的战略定力:深知盲目降价不仅损害企业利益,更会破坏区域价值体系。因此,项目选择以品质突围,通过持续升级来赢得市场认可。历时三个月的精心打磨,【新川雅境】已完成全方位品质提升:- 景观体系全面升级,打造更具层次感的园林景观,营造舒适宜居的生态环境;- 公共空间焕新升级,强化归家动线的仪式感,提升业主尊崇体验;- 地下空间优化改造,从功能布局到硬件配置全面升级;- 户型设计迭代更新,实现更科学的功能分区,满足多元居住需求。
项目周边配套成熟完善,构筑起高品质生活圈层:- 商业资源丰富多元,3号邻里中心、时光里美食街、新川中心等商业体环伺,满足一站式消费需求;- 教育资源优势显著,蒙彼利埃小学、教科院附属学校、金苹果锦城一中等20余所名校云集;- 交通网络四通八达,地铁6号线新通大道站举步可达;- 生态环境得天独厚,坐拥双滨河湿地景观带,毗邻新怡公园与新川之心公园两大城市绿肺。
【新川雅境】的核心竞争力主要体现在:1. 准现房多重优势:- 大幅缩短交付周期,实现快速入住;- 实体样板间开放,所见即所得,规避交付落差;- 节省过渡期租房开支,减轻置业压力。2. 品质保障体系完善:- 兴唐地产坚持实景呈现,确保产品兑现力;- 引入龙湖智创生活,提供星级物业服务;- 延长产品打磨周期,确保每个细节尽善尽美。
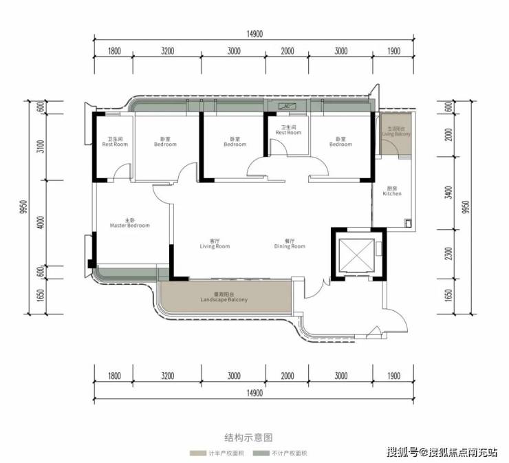
项目现主推两大精品户型:约132㎡四房双卫环幕平层,以实用主义为设计理念,空间布局科学合理。
约143㎡四房双卫瞰景平层,270°全景视野,尽揽城市天际线。
【新川雅境】售楼处热线 028 84720058(已认证)【新川雅境】项目经理热线 13281850333(微信同号)温馨提示:为保障您的看房体验,建议提前预约专属接待服务。项目提供免费看房专车接送,详情请致电售楼处咨询。
声明:本文由入驻焦点开放平台的作者撰写,除焦点官方账号外,观点仅代表作者本人,不代表焦点立场。


