都江堰「人居未来城」6月房价深度解读:热销户型亮点剖析,限时钜惠重磅来袭,即刻致电享一对一置业方案
扫描到手机,新闻随时看
扫一扫,用手机看文章
更加方便分享给朋友
中国·成都 | 兴城人居·未来城

### 城市人居新标杆由成都兴城人居地产投资集团匠心打造的兴城人居·未来城,坐落于一环路江安河畔黄金地段。项目总占地69亩,规划总建面11.5万方,由640套精品住宅组成。1.8的低容积率与35%的高绿化率相得益彰,营造出低密舒适的生态居住环境,为都市精英打造理想栖居地。### 项目核心价值解读- **建筑形态**:匠心打造8-10层精装电梯洋房,诠释品质生活新高度- **户型设计**:112-142㎡三至四房多元布局,满足不同家庭结构需求- **价格优势**:10000-13000元/㎡的均价区间,凸显区域性价比- **出行配置**:1梯2户/1梯3户的梯户比,确保出行高效便捷- **停车规划**:843个车位实现1:1.3配比,有效解决停车难题- **物业服务**:2.5元/㎡/月的物业标准,提供贴心管家式服务
### 区位价值深度剖析作为主城一环稀缺住宅项目,兴城人居·未来城具备三大核心价值:1. **生态宜居**:毗邻江安河生态走廊,坐享10-22℃宜人气候与充沛负氧离子,打造城市中的天然氧吧2. **商业配套**:自建滨河商业街,5分钟直达成熟商圈,满足全龄段生活需求3. **教育资源**:周边3-18岁全龄教育体系完善,优质医疗资源环伺,护航家人健康

### 产品核心竞争力1. **国企品质保障**:成都本土国企兴城人居以九大精品项目奠定市场口碑,从选材到施工严格把控2. **智慧生活体验**:引入浙江未来社区理念,智能家居系统实现远程管控,开启科技人居新时代3. **地段稀缺价值**:主城核心区土地资源稀缺,坐享成熟配套与城市发展红利4. **立体交通网络**:多维路网交织,快速通达全城,提升出行效率
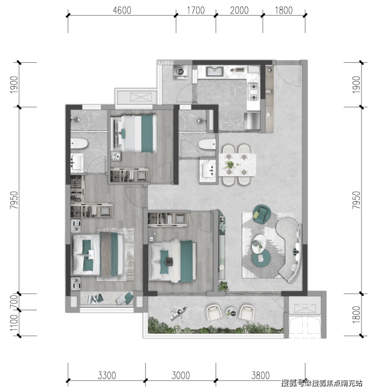
### 户型臻品鉴赏#### 112㎡三居南北通透全明设计,6.8米景观阳台揽景入室。L型科学厨房动线流畅,主卧套房设计保障私密性,演绎品质生活真谛。

#### 120㎡三居16.6米全景采光面,7.1米阔绰客厅彰显气度。6.6米观景阳台连接自然,明厨搭配生活阳台,提升居家舒适体验。


#### 140㎡四居5.8米横厅衔接观景台,中式宴会级餐厅尽显尊贵。全屋飘窗设计拓展空间,主卧步入式衣帽间满足收纳需求。

### 预约看房指南售楼部热线:028-84720058(官方认证)专属顾问热线:13281850333(微信同号)温馨提示:为提供优质服务,看房需提前预约。项目提供专属看房车接送,让您的置业之旅更加便捷舒心。
声明:本文由入驻焦点开放平台的作者撰写,除焦点官方账号外,观点仅代表作者本人,不代表焦点立场。


