人居麓湖林语营销中心盛惠启幕:限时特享钜惠折扣、VIP专属预约礼遇、到访即赠品质好礼,恭迎品鉴,助您悦享安家之旅
扫描到手机,新闻随时看
扫一扫,用手机看文章
更加方便分享给朋友
### 人居麓湖林语——现房精装叠墅,品质之选人居麓湖林语,现房精装叠墅,为您打造高品质居住体验。预约专线:028 - 84720058置业顾问直线:13281850333(微信同步)温馨提示:为保障服务质量,项目采用预约制看房,请您提前致电登记。【免费看房专车服务需提前预约】
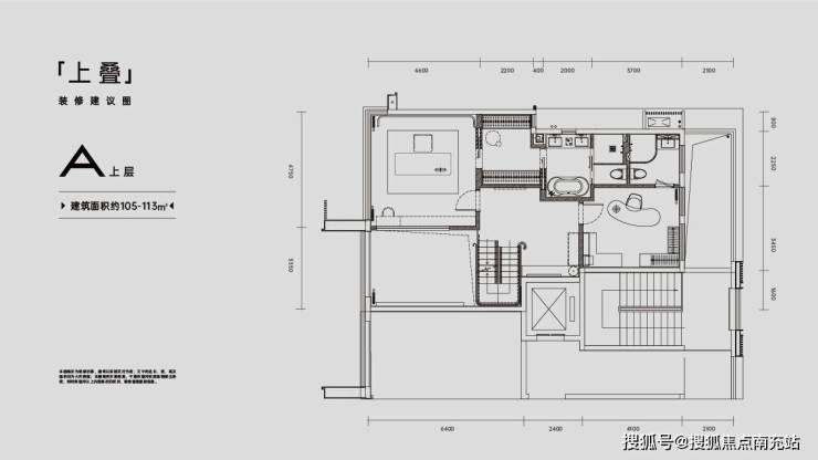
### 核心产品参数人居麓湖林语提供多种叠墅户型,满足不同需求:- 上叠户型:建筑面积处于 105 - 113㎡之间,实际可获得面积达 270㎡,总价 450 万起。在有限的建筑面积内,为您拓展出宽敞舒适的生活空间。- 中叠户型:建筑面积为 103 - 115㎡,实际可得面积 200㎡,总价 350 万起。合理的面积规划,为家庭居住提供温馨环境。- 下叠户型:建筑面积在 157 - 227㎡范围,实际可得面积 400㎡以上,总价 650 万起。奢阔的空间,带来极致的居住享受。

### 战略区位解析人居麓湖林语雄踞天府新区麓湖生态城核心地段,地理位置得天独厚。它被锦江千年水脉与 8300 亩麓湖双水系环绕,宛如一颗明珠镶嵌在这片风水宝地之上。同时,项目地处天津路豪宅走廊的黄金地段,周边汇聚众多高端住宅项目。作为麓湖板块首批精装现房产品,它以卓越品质重新定义高端叠墅生活标准,为业主带来与众不同的居住感受。
### 麓湖价值解码麓湖这片规划面积达 8300 亩的生态示范区,历经多年精心打造,已发展成为集高端居住、产业集群与休闲配套于一体的城市标杆区域。区域内,2100 亩生态湖区与 3450 亩天府公园共同构筑起天然氧吧,让人们时刻能呼吸到清新宜人的空气,享受大自然的馈赠。商业配套方面,5 万㎡麓坊中心与规划中的 50 万㎡水上太古里(麓湖水镇)形成强大的商业矩阵,无论是日常购物还是高端消费,都能满足业主多样化的需求。在教育资源上,天府七中、元音书院等优质学府分布在项目周边,构建起全龄段精英教育体系,为孩子的成长和发展提供坚实的教育保障。### 精装户型详解上叠产品在设计上独具创新,采用垂直空间设计理念。5.4 米挑高的客厅,大气磅礴,搭配星空露台,不仅巧妙实现约 270㎡的实用空间,更为居住者营造出开阔、通透且富有诗意的生活氛围,让您在繁忙生活中拥有一片惬意的私人天地。
中叠户型着重打造双主卧套房体系,约 200㎡的实得面积,充分考虑多代同堂的居住需求。每个卧室都配备独立的卫浴设施,保障家庭成员的隐私与舒适,为家庭生活增添更多温馨与便利。
下叠产品则配备私家花园及双车位,400㎡以上的阔绰空间,全方位打造墅级生活体验。私家花园可根据业主喜好打造个性化景观,闲暇时光在这里品茶赏花,享受惬意生活;双车位设计,满足家庭停车需求,让生活更加从容自在。
### 产品核心优势人居麓湖林语以 2998 元/㎡的高品质精装交付,彰显项目的卓越品质。在卫浴系统、厨房设备等关键部位,均选用国际一线品牌,从源头保证产品质量。与同级产品相比,这不仅为业主提供了高品质的居住环境,还极大地降低了后期的改造成本。对于追求现房品质与地段价值的改善型客户而言,人居麓湖林语无疑是天府新区叠拼产品中的上乘之选。人居麓湖林语营销中心:028 - 84720058项目总监专线:13281850333(微信同号)重要提示:为保障接待品质,本项目实行预约参观制度。【看房专车服务需提前 1 天预约】
声明:本文由入驻焦点开放平台的作者撰写,除焦点官方账号外,观点仅代表作者本人,不代表焦点立场。


