都江堰「人居未来城」售楼部(营销中心)电话丨地理位置丨楼盘详情丨价格涨幅丨十一月房价多少
扫描到手机,新闻随时看
扫一扫,用手机看文章
更加方便分享给朋友
【人居未来城】售楼部电话:028 - 62444811(已认证)
【人居未来城】销售经理电话:15388440405(微信同号)
温馨提示:为了提供更高更好的接待服务质量,看房请提前1小时致电预约!
中国 · 成都 I 兴城人居 · 未来城
【基本信息】
开发商:成都兴城人居地产投资集团股份有限公司
占地面积:约69亩
建筑面积:约11.5万平米
交付标准:精装
物业费:2.5元/㎡/月
容积率:约1.8
绿化率:约35%
总户数:640
机动车位:843
梯户比:1T2丶1T3
楼层总高:8-10
产品面积:112-120-140-142
产品均价:1-1.3万
项目价值
主城一环高光大作、江安河畔
尽享绿道临近三遗、主城生态中心
全覆盖式商圈、自带河景商业????
5分钟生活圈、教育医疗资源广泛、3-18岁一站式教育服务

最宜居
风水宝地、河边晨跑、平均温度10-22℃、清新氧离子、慢生活
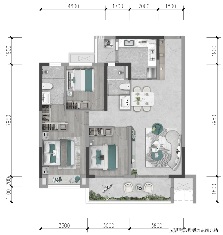
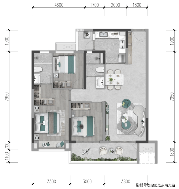
户型图
112㎡

120㎡


140㎡

【人居未来城】售楼部电话:028 - 62444811(已认证)
【人居未来城】销售经理电话:15388440405(微信同号)
温馨提示:为了提供更高更好的接待服务质量,看房请提前1小时致电预约!
声明:本文由入驻焦点开放平台的作者撰写,除焦点官方账号外,观点仅代表作者本人,不代表焦点立场。


