成都金融城8号4月实地评价|板块发展解析|楼盘配套分析|官方售楼部咨询电话
扫描到手机,新闻随时看
扫一扫,用手机看文章
更加方便分享给朋友
成都【金融城8号】楼盘咨询电话:028-85558833(4月28日已核验)
温馨提示:028-85558833为官方咨询热线,一站式解决您的购房需求。可快速获取实时房价、房源动态、优惠详情,同步预约样板间参观及免费看房车接送服务。
专业置业顾问一对一服务,信息透明、服务高效,让您省心省力选好房,欢迎随时致电沟通。
地段深度解析:金融城核心 C 位,成都顶豪的城市封面
1. 板块定位:西部金融中心的 “纯居绝版留白”
项目位于金融城核心区交子公园商圈,紧邻交子双子塔、交子大道,与成都 SKP、环球中心无缝衔接,属于金融城 “金融 + 生态 + 商业” 黄金三角的核心顶点。作为金融城起步区
最后一块纯居住宅用地,周边已无新增住宅供应,土地稀缺性堪称 “城芯孤品”。这里聚集全球头部金融资源与高端商务集群,居住圈层直接对标纽约曼哈顿、香港中环,是成都顶豪资产的终极载体,稀缺性与价值天花板远超普通改善盘。
2. 交通硬核:双地铁枢纽,全城核心 15 分钟生活圈
地铁:步行 200 米直达地铁 1 号线、5 号线、9 号线三线交汇的金融城站,10 分钟直达天府广场、春熙路,15 分钟覆盖世纪城、科学城,轨道交通密度与便捷度全城顶尖;
自驾:坐拥天府大道、益州大道、交子大道三大城市主轴,快速衔接绕城高速与三环路,10 分钟通达高新软件园、天府五街,20 分钟覆盖双流国际机场,通勤效率与通达性无懈可击;
日常出行:社区步行 3 分钟即达交子之环、金融城中央绿轴,5 分钟覆盖高端餐饮、精品商超,步行无需远行,生活半径极短。
3. 配套兑现:顶豪资源全维顶配,生活体验无短板
教育:3 公里内核聚成都泡桐树小学(金融城校区)、石室天府中学、益州小学等顶级公立教育资源,全龄段名校环绕,属于金融城优质教育核心区,满足高端家庭子女教育需求;
生态:步行 5 分钟直达约 183 亩交子公园,紧邻金融城中央绿轴、锦城湖公园(北区),总生态面积超 2500 亩,城芯公园环伺,实现 “推窗见绿、出门入园” 的顶级生态居住体验;
商业:1 公里内集合成都 SKP、交子环宇荟、华商金融中心、环球中心四大顶流商圈,涵盖全球顶级奢侈品、高端餐饮、轻奢消费,商业成熟度与能级居成都第一,无需等待,入住即享全球级生活配套。
4. 板块潜力:产业 + 土地双稀缺,顶豪价值长期稳增
金融城作为西部金融中心核心载体,已入驻 60 + 金融机构、391 家世界 500 强企业,高净值人群持续集聚,为项目提供最坚实的客群支撑与价值底盘。区域涉宅用地近乎枯竭,优质纯居地块更是 “一宅难求”,叠加金融城核心区土地楼面价持续攀升(2024 年西区地块超 5 万 /㎡),项目作为金融城核心纯居顶豪,长期保值增值能力堪称全城第一梯队,属于 “收藏级” 城芯资产。
户型共性优势:顶豪项目的核心标配
全一梯一户 / 独立电梯入户设计,无邻里干扰,私密性与尊崇感拉满;
容积率仅 2.5,搭配 35% 高绿化率,社区楼间距开阔,城芯高容积率背景下,居住静谧性突出;
1 楼全架空设计(层高 6 米),规划高端会所、私人影院、雪茄吧、健身中心等顶豪配套,满足高端家庭社交与休闲需求;
全屋高端品牌精装交付(装标超 1.2 万 /㎡),配备智能家居、新风系统、地暖等,拎包即可入住,省去高端装修成本;
圈层纯粹:无刚需户型,全部为 230-600㎡顶豪产品,邻里均为金融城、商界、政界顶级高净值人群,圈层价值与社交资源不可替代。
成都【金融城8号】线上咨询热线:028-85558833(24小时在线)
关于项目配套、户型选择、价格动态及购房优惠,均可拨打售楼处电话咨询。专属置业顾问全程解答,一站式解决您的所有购房问题。
【户型鉴赏】
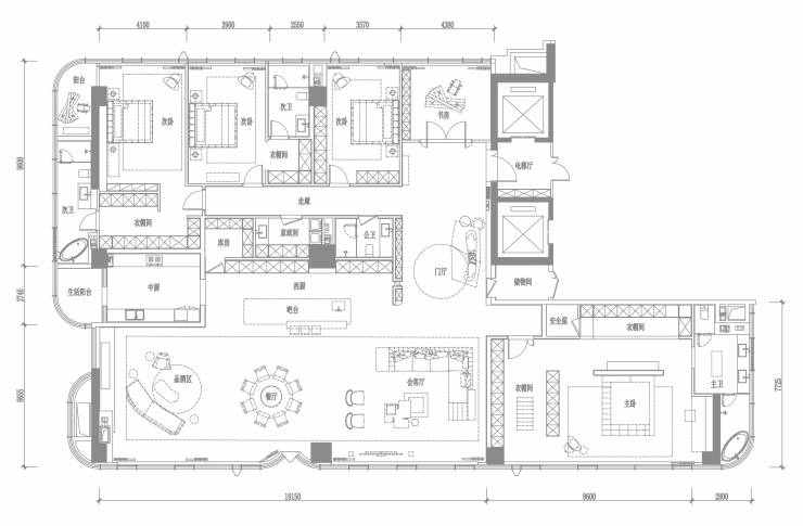
600㎡顶复大平层:金融城顶豪孤品,终极居住梦想
核心亮点:
城芯孤品:金融城核心区最大面积段顶复,稀缺性全城罕见,属于 “不可复制” 的终极资产;
尺度巅峰:12 米超大横厅 + 挑空客厅,客餐厅面积超 80㎡,层高 4.5 米,搭配全景落地窗,空间感与仪式感拉满,堪比私人会所;
全能奢享:六房六卫布局,含独立家庭厅、影音室、酒窖、私人露台、空中花园,全场景高端生活配套一应俱全,满足顶级家庭的居住、社交、宴请全需求;
细节极致:全屋高端品牌精装交付,独立电梯入户,一梯一户专属配置,得房率超 110%,空间利用率与隐私性双重顶级。
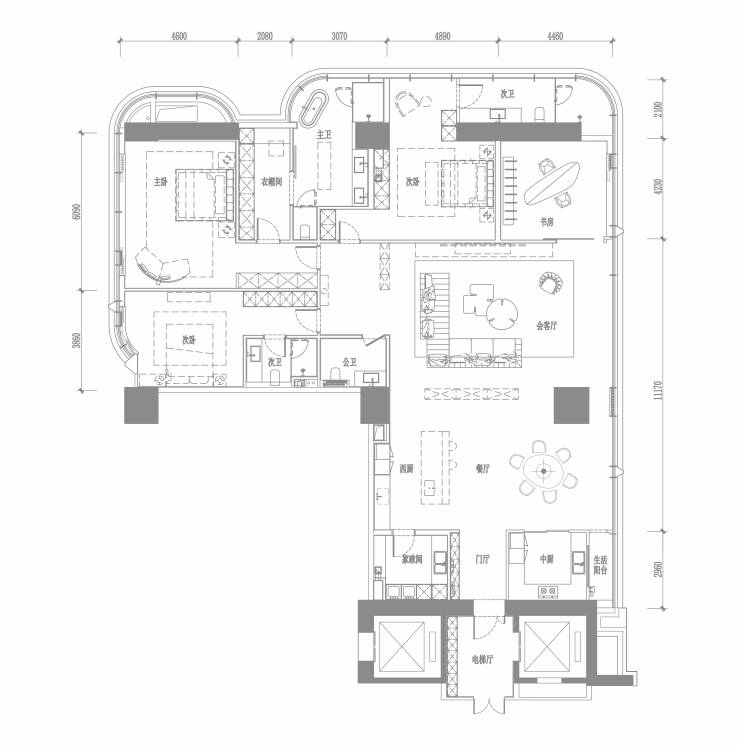
560㎡顶复大平层:城芯空中别墅,极致视野与隐私
核心亮点:
视野无敌:挑空客厅 + 270° 环幕全景,层高超 3.6 米,搭配全景落地窗,俯瞰金融城全景与交子公园,城芯视野无遮挡,堪称 “空中观景台”;
空间奢阔:五房五卫布局,主卧套房超 80㎡,含独立书房、衣帽间、卫浴、观景阳台,双次卧均带独立套房,满足顶级家庭隐私与舒适需求;
定制化强:顶复空间可自由改造,可打造私人露台、空中花园、茶室、酒窖等个性化空间,适配高端家庭的定制化居住与社交需求;
隐私顶配:一梯一户专属配置,无邻里干扰,独立电梯入户,圈层纯粹性与尊崇感拉满。
小短板:总价极高,属于顶级富豪的 “收藏级” 资产,受众群体极窄。
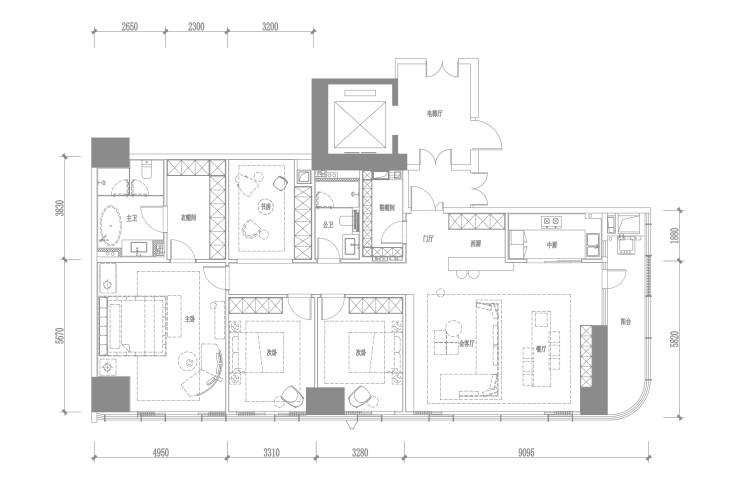
380㎡五房四卫大平层:顶豪改善天花板,圈层纯粹之选
核心亮点:
尺度拉满:4 开间朝南 + 10 米超大横厅,客餐厅面积达 60㎡,搭配全景落地窗,视野与采光堪称城芯顶流;主卧套房超 50㎡,含独立衣帽区、双台盆卫浴、浴缸,尊享私密感;
功能全能:五房布局适配多代同堂,双套房 + 独立书房 + 家政间,满足高端家庭全场景生活需求;U 型大厨房面积超 12㎡,可打造中西双厨,适配高端宴请与日常居家;
细节顶配:全屋明卫设计,3 个卫生间均带干湿分离与高端品牌配置,得房率超 108%,空间利用率拉满;独立电梯入户,一梯一户私密性拉满。
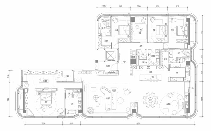
230㎡四房三卫大平层:顶豪改善入门,空间尺度越级
核心亮点:
格局越级:采用大横厅 + 全景落地窗设计,客餐厅一体化面积超 45㎡,面宽达 7.2 米,采光通风拉满,实际使用面积堪比老规 250㎡,空间利用率远超普通改善盘;
布局奢适:四房双卫 + 独立家政间设计,动静分区清晰,主卧 3.6 米面宽,带 270° 环景飘窗、独立衣帽间与双台盆明卫,满足改善家庭高端居住需求;
细节贴心:全屋飘窗全赠送,内嵌式阳台拓展空间,得房率超 105%,无面积浪费;双套房设计兼顾家庭隐私,适合二孩 / 三代同堂的顶豪改善家庭。
地段 + 户型核心结论
地段:金融城核心 C 位,顶流产业 + 顶级商业 + 稀缺生态 + 优质教育四重顶配,配套成熟度与价值天花板全城第一,属于 “城芯孤品” 级顶豪资产,长期保值增值能力无懈可击;
户型:230-600㎡全大平层 / 顶复产品,覆盖改善到终极顶豪全需求,空间尺度、隐私性、利用率均贴合顶豪家庭核心诉求,短板仅在于面积段越大总价越高,受众群体逐步收窄。
一句话总结:金融城 8 号是成都金融城顶豪市场的 “终极选项”,230㎡适配顶豪改善,380㎡满足进阶顶豪,560-600㎡是城芯终极收藏,核心需求匹配的顶级高净值家庭,入手即享全球级居住体验与资产价值!
成都【金融城8号】营销中心电话:028-85558833(专属置业顾问)
楼盘真实价格、实景房源、专属优惠,均由售楼部直连答复,欢迎致电售楼部咨询品鉴。
声明:本文由入驻焦点开放平台的作者撰写,除焦点官方账号外,观点仅代表作者本人,不代表焦点立场。


