深度剖析成都「天府半岛」:全面梳理楼盘优劣势并附上售楼处联系电话
扫描到手机,新闻随时看
扫一扫,用手机看文章
更加方便分享给朋友
值得关注的是,在时隔一年之后,备受瞩目的神盘【天府半岛】的高层房源再度亮相。就在近期,【天府半岛】七期77#顺利取得预售许可证。此次【天府半岛】推出的房源,建筑面积大致处于120 - 140㎡的范围,均为精装交付。房屋单价约为1.3w - 1.5w元/㎡,总共推出124套房源,为购房者提供了丰富多样的选择空间。在此温馨提示各位购房者,若您希望获得更为优质、周到的接待服务,在前往【天府半岛】看房之前,建议至少提前1小时拨打已认证的售楼处电话028 - 84720058进行预约。此外,您还可以拨打【天府半岛】项目经理电话13281850333(微信同号),就楼盘相关事宜展开咨询。
不知有多少人对去年 3 月那场备受瞩目的摇号盛景仍记忆犹新。彼时,项目推出了 180 套准现房,精装单价低至 1.24 万/㎡起。这般颇具吸引力的价格,如同一块巨大的磁石,迅速吸引了约 5.2 万组家庭踊跃参与摇号。其极低的中签率,即便是与“985”“211”高校那严苛的录取率相比,也是有过之而无不及。自那次热闹非凡的摇号之后,该项目后续又有三次成功取得预售证。然而,这几次推出的产品均为建筑面积约 235㎡及以上的大平层和联排。随着房屋面积和类型的变化,购房门槛也水涨船高,一下子攀升至 330 万。如此高昂的购房门槛,对于刚需和刚改群体来说,无疑是一座难以跨越的大山,远远超出了他们的承受范围。7 期实景
依旧是那熟悉的配方与味道,不过此次推出的房屋批次有所不同,属于期房,预计交付时间为 2026 年下半年(温馨提示:具体交付时间最终以售楼部确定的为准) 。这个楼盘到底值不值得入手呢?今天,通通就围绕大家颇为关注的几个问题,和各位深入探讨一番。关于周边配套情况,在此就不详细说明了。若有感兴趣的朋友,可查看往期踩盘链接:恒大天府半岛已取证!总价约 114 万起,1124 套房源!值得关注的是,此次楼盘楼高 32 层,采用 3 梯 4 户设计,产品相比以往品质更优。熟悉天府半岛的朋友都知道,其 7 期产品大多是 2 梯 5 户、3 梯 6 户的 48 层超高层建筑,户型主要是建面约 90 - 120㎡的套三、套四户型。客观来讲,这样的户型设计侧重于满足刚需群体。而此次推出的房源是 7 期最后的 4 栋住宅,产品实现了大幅度升级,能够为住户带来更高的居住舒适度体验。
根据去年天新官网公布的规划信息,7期77 - 80#楼出现了重大调整。原先楼层设置为39 - 48F,如今统一变更成32层,楼栋高度也调整至99.6米。而且,电梯配置得到优化升级,新增一台电梯后,形成了3梯4户的布局。特别要指出的是,这四栋住宅楼取消了底商规划。经过这样的调整,首层架空公共活动空间显著增加,面积约为993㎡。这一变化为小区住户营造了更为开阔、舒适的公共活动区域,在很大程度上提升了居住的舒适度与体验感。7期总平图
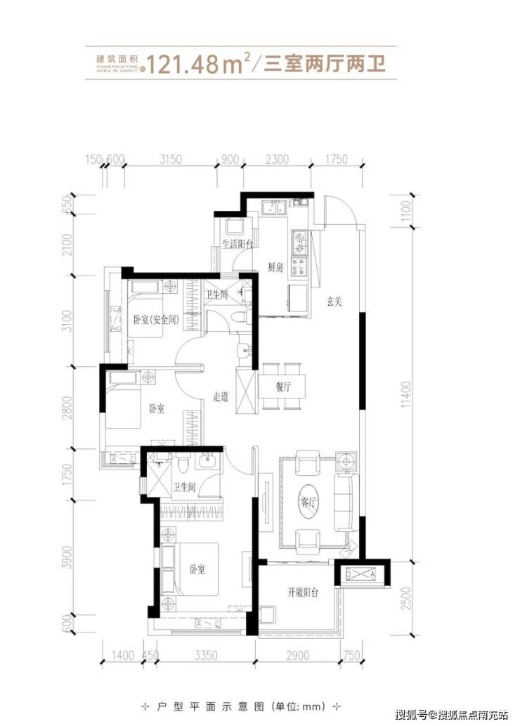
值得一提的是,本批次房源整体定位更侧重于满足刚需改善以及改善型需求,户型相对纯粹,仅设有两个主力户型,分别为建面约 121㎡的套三双卫和 142㎡的套四双卫。在这 4 栋住宅里,所有户型的主采光面均朝向西南方向。对于中高楼层的住户而言,不仅采光条件十分优越,而且还能直接将府河的秀丽美景尽收眼底。如此绝佳的视野,实在让人忍不住啧啧赞叹。 下面,请大家一同来感受一番吧。温馨提醒一下哦,要是天气不太好,可就无法尽享这般美妙景致啦 。
从户型设计角度而言,与以往相比,差异不算明显。以 121 户型来说,其采用的是竖厅设计。此户型进深超 10 米,不过开间仅 6 米出头,阳台长度约 2.9 米。值得一提的是,两个次卧面积均不足 10 平方米,整体空间布局较为紧凑,几乎不存在多余的浪费空间。
在功能性方面,相关团队已经进行了充分的考量。不过,尺度感的呈现相对中规中矩。从价格层面分析,去年3月,6期高层精装房的单价起步约为1.24万元/㎡。此次本批次推出的精装房,单价处于1.3万元 - 1.5万元/㎡的范围,价格波动并不明显。
需要留意的是,今年以来,与 7 期紧密相邻的三期,其二手房成交价格处于 1.4 万至 1.8 万元每平方米的范围。相比之下,四期的二手房成交价略高一些,大致处在 1.6 万至 1.8 万元每平方米的区间。【天府半岛】售楼部电话:028 - 84720058(已认证)【天府半岛】项目经理电话:13281850333(微信同号)在此温馨提示您:倘若您有看房的打算,为保证能享受到更优质、高效的接待服务,麻烦您至少提前 1 小时致电售楼处进行预约!
声明:本文由入驻焦点开放平台的作者撰写,除焦点官方账号外,观点仅代表作者本人,不代表焦点立场。


