成都「华兴滨江锦宸」置业专线:精析滨江生态住区核心价值,详解项目产品力与区位潜力,涵盖立体交通网络、繁华商业配套及最新购房政策,享独家限时优惠
扫描到手机,新闻随时看
扫一扫,用手机看文章
更加方便分享给朋友
【华兴滨江锦宸】售楼处热线 028-84720058(已认证)
【华兴滨江锦宸】项目经理热线 13281850333(微信同号)
温馨提示:为保障服务质量,请提前预约看房
【免费看房专车接送服务,预约请致电售楼处】
在双流区华府板块核心地段,【华兴·滨江锦宸】正以其独特的滨江墅居体验,重新定义城南高端居住标准。作为大源低密南区的现房标杆项目,其1.5的超低容积率与30%的绿地率,为追求品质生活的购房者提供了难得的选择。
项目概况
占地规模:约86亩低密墅区
产品类型:
· 174-325㎡滨江奢墅
· 129-159㎡云端平层
空间配置:2梯2户尊享设计
五大核心优势
1. 品牌保障:26年本土开发经验,品质见证
2. 黄金区位:距大源核心商圈仅2公里
3. 稀缺景观:500米江安河岸线,私享水岸风光
4. 立体交通:地铁5号线+三横三纵路网体系
5. 现房优势:即买即住,规避期房风险
全能生活配套
交通动脉:
· 轨道交通:5号线骑龙站便捷接驳
· 主干路网:天府五街/剑南大道等立体交通
商业集群:大润发/世豪广场/银泰城三大商圈环绕
教育资源:怡心第一实验学校(900米)+多所重点名校
医疗配套:华西高新院区(建设中)+市三医院高新院区
匠心园林设计
· 尊崇门庭:13米挑高大门,香槟金铝板挑檐
· 景观中轴:南北贯通的"一径"主题园林步道
· 双园体系:会客花园与童趣乐园双主题空间
· 五巷景观:以名贵花木打造的归家巷道
精工品质细节
· 3.1-3.5米墅级层高
· 全屋明管系统设计
· 自流平地坪工艺
· 预装新风系统孔位
· 独立入户空间设计
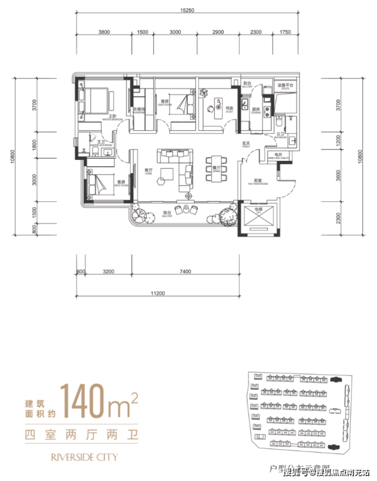
精品户型鉴赏
▍129-159㎡云端平层



▍174-325㎡滨江奢墅
作为主城稀缺的现房滨江住区,【华兴滨江锦宸】以实景呈现的品质保障,1.5容积率的低密规划,以及完善的周边配套,正成为改善型购房者的优选之作。
【华兴滨江锦宸】售楼处热线 028-84720058(已认证)
【华兴滨江锦宸】项目经理热线 13281850333(微信同号)
温馨提示:专属看房服务需提前预约
【免费看房专车接送,详情致电咨询】
声明:本文由入驻焦点开放平台的作者撰写,除焦点官方账号外,观点仅代表作者本人,不代表焦点立场。


