成都【黄龙溪谷枫林岸】售楼处电话丨首页网站丨项目优劣势解析丨实时报价丨10月价格动态丨户型及配套信息一览
扫描到手机,新闻随时看
扫一扫,用手机看文章
更加方便分享给朋友
【黄龙溪谷枫林岸】售楼部电话 028-62444811(已认证)
【黄龙溪谷枫林岸】销售经理电话 15388440405(微信同号)
温馨提示:了解更多楼盘信息,可直接拨打售楼部电话。
【超四代空中院】黄龙溪谷•枫林岸组团新品迭代亮相
成都三大高端住区之一,5000亩湖山大境,国际城南核心圈
生物城板块南侧,剑南大道直达,紧邻4A级景区黄龙溪古镇
西南奢养首选地,天府墅居第一谷
超四代空中院,一户四花园,面积超56㎡?私享的生态院落
更大的得房率,更舒适的梯户比,更高保护的居住私密性
枫林岸组团新品基础信息
组团占地:约134亩
总建筑面积:约27万方
容积率:2.161(整盘约1.38)
主力户型:建面约95-128㎡
得房率:123%~140%(实得118-176㎡)
梯户比:2梯4户、3梯4户、3梯5户
层高:3m(阳台挑高6m)
产权:70年
开发商:优品道置地
物业服务:优品道物业(中国百强物业)
枫林岸组团位于溪谷的西区,与清峯岸、沁云湾、天空屿、林溪屿等组团共同组成了活力水岸住区;
它南瞰溪谷自然大境,东接约6万㎡的优品道商业广场和星级度假酒店,繁华万象下楼即享;西邻岷东大道约70米宽的生态绿廊;
明星户型赏鉴
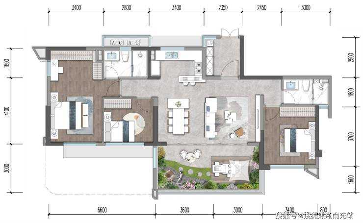
A1户型建面约123㎡,实得约176㎡(得房率140%),四室两厅两卫;
· 处于组团中心位置,直瞰中庭景观,享百米视野;
· 19.7米超大面宽,以尺度鉴峯层
· 无界端厅,270°全景舱式观景与采光;
· 入户花园+空中花园双系统,墅级居住体验;
C2户型建面约128㎡,实得约176㎡(得房率138%),四室两厅两卫;
· 四面宽奢阔开间设计,板式楼型布局,采光通风优;
· 南向13.5m长的跑道级空中花园,面积40余平米;
· LDKB一体化设计,满足更舒适的家庭互动关系;
· 三梯四户配置高,星级入户大堂;
H3户型建面约103㎡,实得约141㎡(得房率137%),三室两厅两卫;
· 南向17.4米的奢阔面宽设计,全明采光;
· 超大横厅直连+空中花园,尊享墅级舒居尺度;
· 超20㎡星级主卧套房配步入式衣帽间,奢想拉满;
· 户型可塑性强,可灵动改造为豪华双主卧套房;
J1户型建面约95㎡,实得约131㎡(得房率138%),三室两厅两卫;
· 经典竖厅布局,空间高效利用;
· 入户花园+空中花园等多系统,面积约33㎡ 得房率高;
· 7.1m宽 L型花园,超大观景视角;
· 三梯五户配置高,星级入户大堂;
【黄龙溪谷枫林岸】售楼部电话 028-62444811(已认证)
【黄龙溪谷枫林岸】销售经理电话 15388440405(微信同号)
温馨提示:了解更多楼盘信息,可直接拨打售楼部电话。
声明:本文由入驻焦点开放平台的作者撰写,除焦点官方账号外,观点仅代表作者本人,不代表焦点立场。


