成都【广都鑫中心】6月购房宝典:解码热销户型设计精髓,细品双地铁TOD精装华宅的匠心工艺与升值潜力,尊享VIP一对一专属看房礼遇
扫描到手机,新闻随时看
扫一扫,用手机看文章
更加方便分享给朋友
【项目咨询】广都鑫中心置业专线:028-84720058(官方认证)专属客户经理:13281850333(微信同号)温馨提示:为保障看房体验,建议提前预约。项目提供专属接驳服务,需提前与销售中心确认。【项目概况】这座位于天府新区的城市地标——广都鑫中心,总规划面积28.35亩,建筑体量达24.15万方。目前在售的双发天禧中心2号楼包含两个单元,主打43-91㎡灵动空间,其中57㎡户型最为抢手。项目采用3.25-3.3米舒适层高,25层立体规划:- B1-4F:商业综合体- B2-4F:智能停车场- 5-25F:精品公寓首批推出13层及22层优质房源。项目配备商业标准水电系统,公摊约30%。电梯配置科学,一单元6梯33户,二单元6梯37户,物业费4.9元/㎡/月。原定2025年底交付,现已提前至同年9月,交付标准为毛坯。【价值解析】当前售价6600-7500元/㎡,总价30-68万。支持全款支付(整层购置可洽谈分期),具体报价:- 整层(15-20F)约4100㎡:3000万- 一单元约1930㎡:1400万- 二单元约2170㎡:1600万【开发信息】开发商:成都双发君地置业物业公司:四川博蕙京通物业【区位价值】坐落天府大道1888号核心区位,打造智慧生态商务集群,集高端酒店、文化会所、品质商业于一体。
【核心优势】1. 黄金地段:雄踞天府大道中轴,坐享高新区与天府新区双区红利2. 产品稀缺:区域内唯一小户型、低总价且水电气全通的在售项目3. 立体交通:双地铁覆盖(1号线华阳站300米/18号线海昌路站400米)4. 政商资源:毗邻天府新区政务中心,享政策利好5. 建筑地标:新现代主义风格塑造城市名片6. 产业支撑:金融城、新川科技园、中央商务区三核汇聚7. 品质生活:2万方景观园林、星级物管、B1层生活超市8. 品牌加持:锦江国际旗下"欧暇地中海"酒店运营9. 收益保障:装修后享保底30元/㎡+五五分成,月均收益3800-4000元10. 升值潜力:对标周边20700元/㎡地价,投资价值凸显【交通网络】五纵四横立体路网:五纵:剑南大道/益州大道/天府大道/梓州大道/成自泸高速四横:三环路/绕城高速/华阳大道/麓山大道20余条公交线路通达全城
【生活配套】商业:3万方协星星光商业体/盒马鲜生/家乐福/三利广场(在建)/金地70万方商业综合体医疗:天府新区人民医院/四川石油总医院等6所医疗机构教育:金苹果幼儿园/天府四小/天府实验中学等优质学府生态:海昌极地海洋公园/南湖湿地公园等休闲胜地
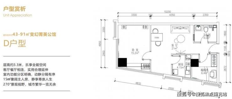
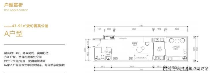
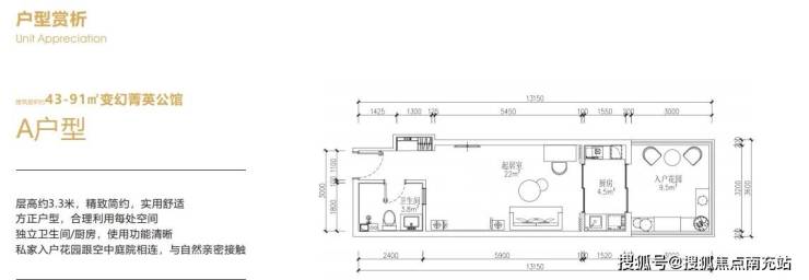
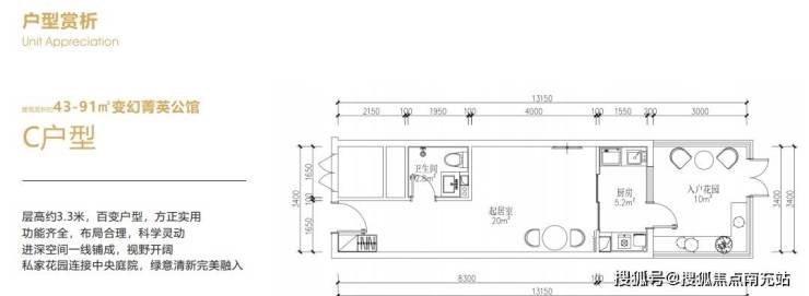
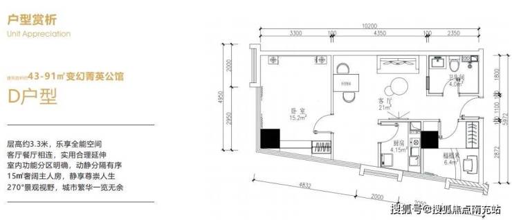
【空间展示】多样化户型设计满足不同需求
【预约看房】销售热线:028-84720058客户经理:13281850333(微信同号)温馨提示:看房请提前预约,可安排专车接送
声明:本文由入驻焦点开放平台的作者撰写,除焦点官方账号外,观点仅代表作者本人,不代表焦点立场。


