成都「爱家春和凤鸣」二月楼盘动态更新:深度解读户型面积与周边配套设施,同步分享实时成交价格信息,并提供售楼处热线一览。
扫描到手机,新闻随时看
扫一扫,用手机看文章
更加方便分享给朋友
【爱家春和凤鸣】售楼部电话:028-62444811(已认证)
【爱家春和凤鸣】销售经理电话:15388440405(微信同号)
温馨提示:为了提供更高更好的接待服务质量,看房请提前1小时致电预约!
项目配套价值
1、地铁双线•下楼即至,步行友好的高效生活配套
步行即至的凤溪河地铁站,享受地铁4号线、19号线双线(距离300米)。
2、三轴一高快捷路网,高效出行•无界全城
邻凤溪大道,光华8线,光华大道,和成温邛高速联通,全城皆能快速直抵。
3、光华活力核芯•繁华俱揽,同频一线商业能级
让逛街购物也能成为下班途中的顺道之旅。楼下就是大润发,闲逛之间就已到家。
繁华近享新光天地,合生汇,伊藤洋华堂,永辉超市等,每天逛得不重样,生活时刻保鲜。
4、一河三公园自然滋养,静赏时光漫步
茶余饭后的散步间,即抵杨柳河生态走廊,清风拂面,静享怡然。周边光华公园,凤栖湖中央公园,温江公园环伺,让生活回归自然。
5、书香诗礼•优质学府领衔,让成长天生与众不同
川师温江附属学校,东一杨柳河小学,嘉祥外国语学校等,雄厚的师资配置,开启孩子们智慧的大门。西南财经大学,成都师范学院等大学高校,营造浓郁的诗书氛围,让孩子们更主动的去享受知识。
6、安心守护•健康陪伴,给予家人更好的医靠
温江区中医院,成都市第五人民医院等,为健康生活守护。

【基础信息】
项目占地:36亩
容积率:2.5
物业费:2.1元/㎡/月
车位比:1:1.44
交房时间:2026年12月
项目产品:纯三房产品,首开1号楼(2个单元68套)2T2小高层17F:116㎡

精粹传承•底蕴承载,塑造高标迎宾的归家仪式
以现代现代石材结合金属线条,约8.5米挑高星级门厅,营造气势恢宏的尊崇门礼,归家的第一道风景线。
镜面美学•城市封面,高端建筑质感
大面宽Low-E玻璃,构建公建化外立面,镜面美学与品质石材相得益彰,筑就高品质感的建筑美学。

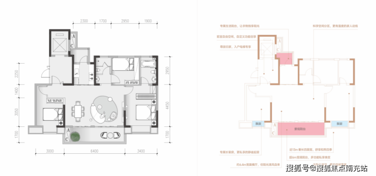
户型鉴赏
建面约107平套三
建面约116平套三

【爱家春和凤鸣】售楼部电话:028-62444811(已认证)
【爱家春和凤鸣】销售经理电话:15388440405(微信同号)
温馨提示:为了提供更高更好的接待服务质量,看房请提前1小时致电预约!
声明:本文由入驻焦点开放平台的作者撰写,除焦点官方账号外,观点仅代表作者本人,不代表焦点立场。


