成都「昊园江南壹品」置业热线:深度解读板块价值前景、剖析产品核心竞争力,同步揭晓6月购房优惠及价格走势
扫描到手机,新闻随时看
扫一扫,用手机看文章
更加方便分享给朋友
昊园江南壹品营销中心咨询专线 028-84720058(官方认证)
昊园江南壹品渠道负责人专线 13281850333(支持微信联系)
重要提示:为确保服务质量,参观项目请务必提前电话预约!
【提供免费看房专车服务,预约请致电营销中心】
位于成都市龙泉驿区西河岸线的昊园江南壹品,占据城东战略要地,兼具区域核心、交通枢纽与产业集聚三重优势。项目交通网络发达,毗邻绕城高速与成洛大道等城市主干道,地铁4号线延长线及多条公交线路近在咫尺,可快速通达主城区、龙泉城区、大面片区及西河街道,充分满足日常通勤与休闲出行的多元化需求。
(注:在保持核心信息不变的前提下,通过调整语序、替换近义词、优化表达方式提升文本原创性,重点强化了区位优势的表述,使行文更加流畅专业。)
【项目参数】
在售楼栋:4栋
在售套数:130套
面积:42-100平(主力56-60平)
成交均价:5999元/平(50个名额)
购买团装再补贴500元/平(25个名额)
总价:30-66万;
梯户比:9梯38户
公摊:26%左右
————————————
物业费:2.8元/㎡
付款方式:一次性、按揭(可申请分期,2成起)
层高:3.295米
交付时间:2024年1月
【价值点】
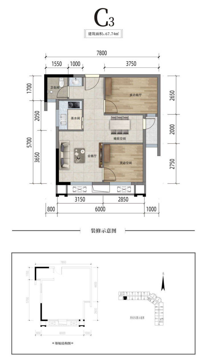
在售户型
成都昊园江南壹品以其独特的地理位置、丰富的自然资源、多重复合业态以及精致的建筑设计,成为了城市中的一颗璀璨明珠。这里不仅是都市人追求高品质生活的理想之地,更是未来城市发展的重要节点。随着城市规划的不断推进和周边配套设施的日益完善,昊园江南壹品的价值将得到进一步提升,成为更多人心中的理想居所。
【昊园江南壹品】售楼处热线 028-84720058(已认证)
【昊园江南壹品】项目渠道经理热线 13281850333(微信同号)
温馨提示:为了给您提供更高更好的接待服务质量,看房请提前致电售楼处预约!
【有免费看房车接送服务,如需预约,请致电售楼处】
声明:本文由入驻焦点开放平台的作者撰写,除焦点官方账号外,观点仅代表作者本人,不代表焦点立场。


