深度揭秘成都「空港云璟林著」!售楼处联系电话、楼盘最新动态尽在首页网站,项目的优缺点也将为您细致解读 。
扫描到手机,新闻随时看
扫一扫,用手机看文章
更加方便分享给朋友
在房地产市场竞争从以往的“拼规模”逐渐迈向“拼产品”的当下,“产品力”对于房地产企业的重要性愈发显著。在全新的市场需求与激烈竞争的双重驱动下,房企若想在众多项目中突出重围,将注意力回归到产品自身已然成为当务之急。 在此背景下,作为空港发展在怡心湖的1号作品——TOP级项目云璟林著 ,自亮相便吸引了众多目光,成为A区关注度居高不下的项目,它究竟有哪些独到之处呢? 【空港云璟林著】售楼部热线 028 84720058(已认证) 【空港云璟林著】项目经理热线 13281850333(微信同号) 温馨提示:为确保您能享受到高品质的接待服务,如有看房需求,请提前致电售楼处进行预约! 【有免费看房车接送服务,如需预约,请致电售楼处】 ### 空港发展云璟林著的四大“王牌” - **「公园化点式灵动布局」**:云璟林著项目占地面积约83亩,容积率为2.0,这样的土地规模和指标条件在当下十分难得。今年A区供应的地块大多在50亩左右,较大的地块为打造优质的景观以及完善的公区配套提供了更为有利的条件。 整个项目在近百亩的土地上精心规划了21栋11 - 17F的纯板式花园洋房,最大限度地将空间留给了绿化和景观区域。更为突出的是,该项目打破了传统的阵列式和大围合式布局形式,创新性地采用了 “公园化点式 + 围合” 的灵动布局。 错落有致的建筑分布有效放大了视野范围,拓宽了景观视角,项目最大楼间距约达167米 ,不仅很好地避免了楼栋之间的对视问题,还营造出多个中庭空间,让阳光和清风能够自然穿透,为业主打造出更为舒适、惬意的居住环境。
- **「公园微度假型景观」**:云璟林著虽位于A区,但与怡心湖公园距离仅900余米,具备鲜明的湖居特质。 项目定位为“城市公园微度假社区”,其优势并非仅依赖B区的湖景。实际上,从功能性和丰富程度来看,A区的公园配套更具优势。 项目西侧紧邻约190亩的云熙公园(规划中),这是一个沿物联大道展开的带状景观长廊,规划设有四个各具特色的景观组团,分别为乐活花园、秘境花园、运动花园以及养健花园,而云璟林著恰恰毗邻秘境花园组团。 在项目东侧,是约452亩的26°活力绿心公园(规划中),此公园依托原有地块的峡谷浅丘地貌和原始河道,精心规划了丰富多样的场景,包含树阵广场、运动场地、智慧设施、城市风廊以及碧水清波等,勾勒出一幅充满诗意的共享水岸画卷。 在社区内部,云璟林著规划了 “一环三轴多园景观体系”,打造出十个不同主题的景观组团。这些景观不仅可供观赏,更注重互动体验,为不同年龄段的业主提供了充足的活动空间。 尤为关键的是,项目内外双重公园景观均由空港发展精心打造,这也是云璟林著作为“城市公园微度假型社区”难以被超越的独特亮点。
- **「高颜值的立面与公区」**:在如今这个注重颜值的时代,云璟林著的公建化立面极具视觉吸引力。大面积采用LOW - E玻璃,搭配米白色和灰色的真石漆,再以硬朗的线条进行勾勒,整体风格简洁而富有现代感,辨识度极高。 走进小区,酒店式入户门厅搭配奢石照壁,在暖色调灯光的烘托下,将归家的温馨氛围展现得淋漓尽致,满满的仪式感扑面而来。
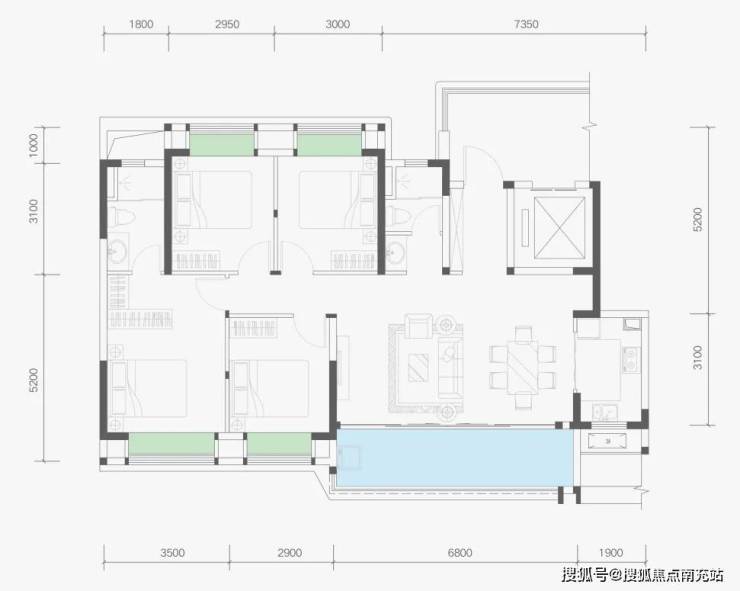
- **「最“内卷”的改善户型」**:户型一直是当下房地产市场竞争最为激烈的部分。 云璟林著的建筑面积涵盖约113 - 182㎡,全部为T2的板式结构。其中,建筑面积约143㎡的四房户型更是在众多产品中脱颖而出,将“内卷”程度提升到了新的高度。 该户型配备270°环幕端厅,这一配置即便是许多建筑面积在200㎡以上的大平层产品都未必具备,云璟林著却应用在了建面约143㎡的改善四房上,可谓十分奢华。 此外,约7米的转角景观阳台,搭配约4.2米的进深,使得整个端厅拥有约13米的采光面。更为惊喜的是,所有建面约143㎡户型的主景观面,要么正对中庭,要么面向公园,真正实现了户户有景。再加上U型厨房,端厅建面约50㎡,极大地提升了室内空间的整体感、功能性以及社交属性。 建面约143㎡户型的空间布局巧妙借鉴了大平层和别墅的设计理念,入户后的动线进行了合理区分,一侧设置为客餐厅和主卧,另一侧安排三间次卧,如此设计既保证了居住的私密性,又凸显了主人的尊崇地位。 不仅如此,该户型还拥有超10㎡私享的全明电梯前厅,约25㎡的主卧套房,次卧最小面积也约10㎡的空间 ,近100%的得房率,这些优势使得云璟林著建面约143㎡户型在市场上具备极大的吸引力。
再看项目建面约134㎡四房户型,同样是2T2结构,整体面宽约15.1米,充分保证了室内的明亮通透。 私享的全明电梯前厅,约6.8米的横厅,算上景观阳台面积,整个LDK厅面积近40㎡,进一步强化了改善型住宅应有的尺度感。 奢适的主卧套房,配备步入式衣帽间,客卧兼顾功能性与舒适性,建面约134㎡户型在功能性与舒适度之间达到了完美的平衡。
其实,买房的根本在于价值选择,尤其在楼市整体处于低迷状态的大环境下,更需要重点关注物业的可持续性以及长远利益。紧跟城市发展方向,想置业城南的购房者必定会关注怡心湖区域。而在怡心湖买房,空港发展·云璟林著无疑是首选项目。 目前,空港发展·云璟林著已于12月26日取得相关证件,首批推出100套125.68 - 142.67㎡的4房产品,清水售价仅18796元/㎡起。最低不到240W/套的总价,为购房者提供了进驻怡心湖核心区的绝佳机会。
【空港云璟林著】售楼部热线 028 84720058(已认证) 【空港云璟林著】项目经理热线 13281850333(微信同号) 温馨提示:为了给您提供更高质量的接待服务,看房请提前致电售楼处预约! 【有免费看房车接送服务,如需预约,请致电售楼处】
声明:本文由入驻焦点开放平台的作者撰写,除焦点官方账号外,观点仅代表作者本人,不代表焦点立场。


