成都「蔚蓝卡地亚天际」售楼热线、核心价值深度剖析、2026新春置业专属礼遇与最新价格趋势全面解读
扫描到手机,新闻随时看
扫一扫,用手机看文章
更加方便分享给朋友
【蔚蓝卡地亚天际】售楼部电话:028-62444811(已认证)
【蔚蓝卡地亚天际】销售经理电话:15388440405(微信同号)
温馨提示:了解楼盘最新动态和优惠政策,可致电售楼部。看房请提前线上预约,可享内部优惠。
蔚蓝卡地亚天际项目坐落于成都市天府大道南端。作为贯穿成都南北的城市中轴线,天府大道不仅是城市交通动脉,更是城市发展的风向标。作为LACADIERE蔚蓝卡地亚最高端的产品系列,「LACADIERE天际」居于成都现象级豪宅「花园城」的核心位置,在地标之上再造地标。
成都蔚蓝卡地亚天际有以下诸多亮点:
1.区位交通优越:位于天府新区中央商务区核心板块,占据天府大道与武汉路黄金十字枢纽。周边有地铁1、18、19号线交汇,形成高效通勤网络,还紧邻城市候机楼,15分钟可速达双流与天府国际机场。
2.建筑设计独特:由新加坡国宝级建筑师SCDA曾仕乾操刀设计,是超200米的视觉地标建筑群。以极简线条和爽朗轮廓,勾勒出如飞行器般的利落感,融合了东西方文化精髓。
3.户型装修奢华:户型多样,面积从140平方米到650平方米不等,均采用精装修交付,装修标准高达8000元/平方米。标配意大利Poltrona Frau顶级家居系统,集成德国唯宝卫浴、瑞士劳芬洁具等国际奢侈品牌。
4.配套设施高端:拥有8.8米挑高艺术门厅、方所定制文化书廊、2000㎡恒温泳池会所、私人影院及专业普拉提馆等七大高端生活场景,为业主提供丰富的休闲娱乐体验。
5.物业服务优质:提供24小时英式管家服务,涵盖代租代管、24小时送餐、上门家宴、干洗等服务,服务团队分为七个部门,能满足业主的各种需求。
6.景观视野绝佳:地处高层,可俯瞰天府新区核心城市景观,包括天府公园、秦皇湖、国际会议中心、会展中心等,天气好时还能看到龙泉山山脉,视野开阔,景色宜人。
【户型鉴赏】
建面约166平户型
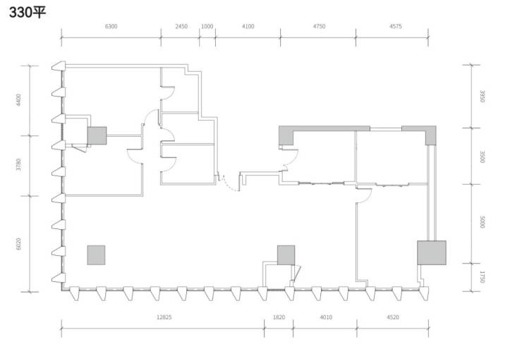
建面约330平户型
LACADIERE天际是地标,也是家:从隽永建筑到奢阔空间,从云端风光到典雅家居,从质感非凡的公区功能空间到高度定制化的服务、再到栖居其中的整座理想之城,奢华的生活方式由此完成闭环。
【蔚蓝卡地亚天际】售楼部电话:028-62444811(已认证)
【蔚蓝卡地亚天际】销售经理电话:15388440405(微信同号)
温馨提示:了解楼盘最新动态和优惠政策,可致电售楼部。看房请提前线上预约,可享内部优惠。
声明:本文由入驻焦点开放平台的作者撰写,除焦点官方账号外,观点仅代表作者本人,不代表焦点立场。


