成都「蜀道宽境」售楼处电话-户型解析-优缺点分析-购房优惠
扫描到手机,新闻随时看
扫一扫,用手机看文章
更加方便分享给朋友
【蜀道·宽境】售楼部电话:028-84720058(已认证)
【蜀道·宽境】项目经理电话:13281850333(微信同号)
温馨提示:为了给您提供更高更好的接待服务质量,看房请至少提前1小时致电售楼处预约!!!
总价240万起买新川精装房,家门口地铁+学校+商业、内外双公园……诸多关键词集于一身,让Ta瞬间在一众新盘中脱颖而出。
细看本批次房源的细节,更是让人不禁感叹其强劲的产品力——低容低密、纯板式小高层、阔尺楼间距,可谓是将“宽”之一字,运用得淋漓尽致。
无论是从区域占位,还是产品表现来看,蜀道·宽境,都高度诠释出了“1+1>2”的效果,是当下高新改善项目中,难得的高品价比优选。
今天,我们就从区域配套、产品亮点、价格优势等三个维度,来逐一解析蜀道·宽境的购买逻辑。
【区域配套】
十年新川,大局初成。
蜀道·宽境位于近年高新乃至整个城南大力发展的区域——新川,出道即“顶流”。
首先,以十年为界,新川早已迎来实景时代。
高新区一直是成都城市发展的领头羊,其地产发展起点亦天然高于其它区域,只不过,目前整体可供开发的区域已屈指可数。
金融城、大源等区块已高饱和,金融城三期虽有大量土地供应,但整体仍以商业用地居多,反观新川,住宅土地供应集中,且将科创、生态与人文高度融合,职住平衡是它的“主基调”。
产业为先,构筑城市基底,新川的实际呈现已十分具有说服力。
目前,新川已有多个高量级产业载体投入运营、重大产业项目遍布、国内外知名企业入驻……如今的新川,已然成为极具影响力和引擎效应的科创和产业高地。
5G互联网科创园、5G智慧科技城、生物医药创新孵化园等扛起了新川前期的产业大旗,加之天府软件园二期落子、AI创新中心二期修建完成,其产业规模和能级还将再次进阶,吸引更多的高精尖人才与企业进场。
如果说,前十年是新川的探索期,那么未来十年,将是它的价值爆发期。
其次,住宅土地集中供应开发,发展潜力更大。
如果以新川之心为原点来看,早期开发的北侧区域已接近尾声,界面也基本固有化,但受限于产住混合的规划布局,居住氛围并不是特别浓厚纯粹。
而蜀道·宽境所处的位置,是近年新川连片重点开发的“低容高端居住区”,有着更充足的住宅用地储备,打造空间更大,未来居住品质将更高。
就此前公布的《2023年高新读地手册》来看,今年新川还将迎来红星路车辆段102亩/331亩,万安TOD75亩/66亩等多宗涉宅地块出让,均集中在项目周边。
蜀道·宽境,作为总规模约870亩万安TOD的上盖项目,天然占据新川发展“轴心”的重要地位。
家门口就是新川中轴——地铁6号线,上接软件园、金融城,下连天新中央商务区、秦皇寺,且与约10000㎡的浮岛商业街无缝连通,既可为通勤、生活带来极高的便捷性,又能提升房子的生命周期。
同时,万安TOD横向可串联海昌路TOD(规划中)、红星路车辆基底TOD,纵向又可连接陆肖TOD、昌公堰TOD,再叠加地铁6、15号线(规划中)双轨交,未来将高度聚焦城市优质资源,驱动区域生活缤纷生长。
此外还有天府大道、梓州大道、锦翰路、利州大道、新川大道、新通大道、新程大道、麓山大道等“四纵四横”城市干线环伺,可通达各大核芯商圈,支撑区域发展提速。
最后,全维生活配套齐聚,重塑城市形态。
项目所在的新川核心居住区,各项生活配套也已展现出惊人的兑现力。
商业方面,除了万安TOD商业,项目还自带10000㎡浮岛商业,与地铁无缝接驳。
此外,项目距离邻里中心约900米,直线2公里范围内,还有约25万㎡的天府和悦广场、山姆会员店、迪卡侬等,构建起“15分钟城市生活圈”,日常休闲购物需求基本可以满足。
教育方面,目前新川区域内已有24所学校规划,覆盖全龄段。项目直线约2公里内有新川科技园小学、银都紫藤小学等优质校区,紧邻的万安TOD北侧,是规划待建的新川二中,或将由知名教育集团领办(具体请以官方最终公示为准)。
生态方面,项目外侧沿路即为市政绿地,且整个新川板块本就是以新加坡“花园城市”的理念来规划打造,公园属性十分明显。
总的来看,蜀道·宽境所处的新川板块,是一个具有价值成长空间的板块,无论是配套兑现力,还是产业能级、生态环境,都为品质生活奠定了坚实基础,令人期待。
【产品优势】
1、楼宽:低容低密纯板式小高层,开阔无遮挡视野。
项目总占地约75亩,容积率约2.0,由商业和住宅组成。
其中,住宅打造为13栋10-17F的纯板式小高层,商业半围合+住宅阵列式布局,不仅规避了商业或产生的嘈杂,同时形成南北通透、双面观景的楼栋格局,给到业主一个纯粹舒适的居住环境。
得益于低密土地+巧妙布局,整个项目最大程度的拉开建筑间的距离,形成高达约45-175米的奢阔楼间距,将超75%的空间用于公区和园林景观打造,真正做到了将居住尺度留给业主。
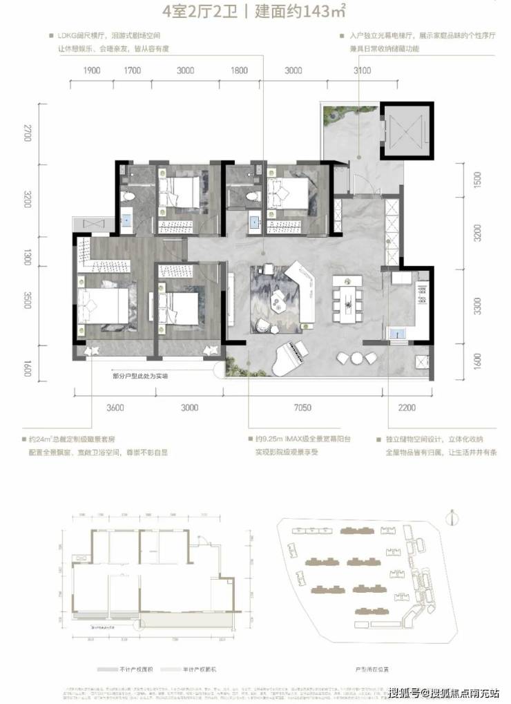
2、室宽:阔尺宽居,极致纯粹的居住圈层。
本批次推出的9、10号楼,产品为建面约134㎡和建面约143㎡的四房。
整体以“宽”为核心,2T2户梯控双入户、纯板式、全横厅、多面朝南,造就了超9米宽的广角阔景阳台和270°采光面,给到业主最大化的宽居感受。
【价格优势】
“总价240万起,低门槛买入新川精装房。”这是蜀道·宽境,给予成都改善置业者的一份惊喜。
从土拍层面看。
新川板块的限价,已经起来了。2023年至今共成交6宗地,清水限价全面突破3.0w元/㎡,限价记录也是一次次被刷新,目前最高清水限价已来到3.4w元/㎡。
从一二手房源价格层面看。
金融城、大源等板块已高度饱和,新房鲜少有供应,房屋买卖多集中在二手房市场,且买入门槛较高。据好好选房数据显示,近期金融城板块二手均价约41778元/m²,大源板块二手房均价约35861元/m²。
再翻看新川近期供应的新房,套均总价500万以内的项目大概有6个,至于同等面积段(建面130㎡以上)改善房源,总价门槛则普遍在450万级。
反观蜀道·宽境(本批次房源),建面约134-143㎡的精装四房,总价240万元起,堪称整个新川乃至高新的“价格王者”。
可见,无论是在土地端还是住宅端,新川板块价格上限的变化都已是肉眼可见,蜀道·宽境,是不可多得的机会。
【蜀道·宽境】售楼部电话:028-84720058(已认证)
【蜀道·宽境】项目经理电话:13281850333(微信同号)
温馨提示:为了给您提供更高更好的接待服务质量,看房请至少提前1小时致电售楼处预约!!!
声明:本文由入驻焦点开放平台的作者撰写,除焦点官方账号外,观点仅代表作者本人,不代表焦点立场。


