成都【金融广场JFC】售楼处电话丨楼盘区位交通丨最新户型解析丨十月成交均价丨在售价格丨项目配套详情介绍
扫描到手机,新闻随时看
扫一扫,用手机看文章
更加方便分享给朋友
【金融广场JFC】售楼部电话:028-62444811(已认证)
【金融广场JFC】销售经理电话:15388440405(微信同号)
温馨提示:为了提供更高更好的接待服务质量,看房请提前1小时致电预约!
成都金融广场JFC:金融城的新宠,未来的地标
在这热闹的城市成都,每个新项目的出现都牵动着众多人的心。坐落在高新区天府大道北段的成都金融广场JFC(以下简称JFC),凭借其独特地理位置、多样的业态规划和卓越品质,已成为市场关注的焦点。今天,就让我们来深入探索一下这备受瞩目的项目。

【项目基础信息】
JFC项目规划为成都城市级地标综合体,涵盖了高端住宅、高端服务式公寓、丽思卡尔顿酒店、高端商业和甲级写字楼五种业态。这种多元化的业态规划,不仅满足了不同人群的需求,更形成了一个集居住、办公、购物、娱乐于一体的一站式生活体验中心。
在住宅方面,JFC的住宅部分以高端大平层为主,户型面积从235㎡到660㎡不等,满足不同家庭的居住需求。尤其是其住宅部分与交子公园无缝相连,使得住户能够享受到绝佳的视野和生态环境。

首批次产品信息【项目已经取证】
1、 推出产品:首批次预计推出两栋住宅,户型面积234-654㎡
2、 梯户比:4#3T2户、5#3T3户
3、 层高:3.2-3.6米,跃层局部最高达7.2米;
三、户型鉴赏
356㎡【3T2户,全户型270度转角布局,极致的开间面和空间布局设计】

278㎡【3T2户,南北通透,俯瞰公园湖区】

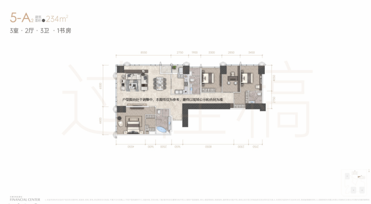
234㎡【3T3户, 270度转角设计,极致的开间视野】

246㎡【3T3户,南北通透,俯瞰公园湖区】

324㎡【云端跃墅,城市顶端视野】

338㎡【云端跃墅,城市顶端视野】

343㎡【云端跃墅,城市顶端视野】

445㎡【云端跃墅,城市顶端视野】

652㎡
【云端顶复,仅此两席】

【金融广场JFC】售楼部电话:028-62444811(已认证)
【金融广场JFC】销售经理电话:15388440405(微信同号)
温馨提示:为了提供更高更好的接待服务质量,看房请提前1小时致电预约!
声明:本文由入驻焦点开放平台的作者撰写,除焦点官方账号外,观点仅代表作者本人,不代表焦点立场。


