成都蔚蓝卡地亚湖售楼部电话-开盘优惠-楼栋布局-蔚蓝卡地亚湖滨城值不值得买
扫描到手机,新闻随时看
扫一扫,用手机看文章
更加方便分享给朋友
【蔚蓝卡地亚湖滨城】售楼处热线 028 - 84720058(已认证)【蔚蓝卡地亚湖滨城】项目渠道经理热线 13281850333(微信同号)温馨提示:为确保为您提供更优质、高效的接待服务,若您有看房计划,请提前致电售楼处进行预约!同时,项目提供免费看房车接送服务,如需预约,请致电售楼处。坐落于成都市南部黄金地段的蔚蓝湖滨1号,无疑是一处令人心驰神往的高端住宅项目。该项目由新加坡国宝级设计大师曾仕乾精心操刀设计,汇聚了全球顶尖的建筑理念,巧妙地将自然与艺术元素相融合,于城市之中绽放独特光芒。【项目参数】- 占地:怡心湖占地规模达1400亩,其中湖面占地500亩。- 面积:涵盖148 - 169平、305平多种户型。- 价格:每平米2 - 3万,总价区间在350 - 420万。- 物管费:6元/平米。- 公摊:26%。- 梯户比:3T4户。- 付款方式:支持按揭5成以及全款支付。- 交付标准:精装交付。- 交房时间:预计2024年底交房。此次推出的A区2、3栋产品备受关注,首批次房源如今仅剩余50套。2、3栋均采用3梯4户布局,使得每个户型都能享受270度采光,充分保证了室内的采光与通风效果。【区域价值】成都向南发展的战略方向已深入人心。在这一进程中,干道经济格局尤为显著,沿着天府大道的高新南区与国家级新区天府新区均取得了斐然成绩。然而,随着城市的持续发展以及人口的不断增长,城市中轴逐渐饱和,土地资源愈发稀缺,这些问题成为城市发展的瓶颈。在此背景下,作为大天府新区重要组成部分的怡心湖,其崛起成为必然趋势,这也是成都作为国家级中心城市发展所赋予的使命。怡心湖区域整体规划呈7字形分布,处于“四横三纵”的交通网络之中,是成都向南发展最为热门的片区之一。从区位来看,怡心湖优势尽显:东接天府新区直管区,西侧连接空港高新技术产业功能区,南临成都天府国际生物城,北靠五环路,周边汇聚了成都最优质的资源。从华府板块出发,经双流航空自贸区南下,怡心湖、牧马山、天府国际生物城等重要板块依次串联,展现出强大的城市发展导向。并且,怡心湖恰好处于核心枢纽湖区的关键位置。沿剑南大道往北驾车15公里,可直达高新区金融城;沿五环路往东驾车8公里,便能抵达天府新区总部商务区。
【产品价值】整体规划上,该项目亮点颇多,每个组团都具备很强的均好性,各有独特优势。国际化生活方式的打造,不仅要有优美宜人的景观环境,更要营造出友善、健康的观念与社群意识。首批次推出的湖滨1号位于东区A区,地理位置得天独厚。楼下就是地铁5号线、19号线站点,出行极为便捷;北侧100米处便是文化艺术中心,为居民提供丰富的文化艺术享受;东北紧邻6.5万平米叠水公园,与公园湖景直线距离仅200米,让居民能随时亲近自然。「蔚蓝湖滨1号」业主可享受三重配套:第一重:公共配套。怡心湖片区自身具备完善的交通、购物、酒店等配套设施,而且驱车10分钟,即可畅享高新区或天府总部商务区的购物、休闲、商务等优质配套。第二重:湖滨城市配套。下楼即可享受蔚蓝湖滨城精心打造的文化艺术中心、双五星级酒店、南岸商业和地铁商业。A组团紧邻文化艺术中心,到湖面北侧直线距离仅200米;东北侧紧邻叠水公园,私享6.5万平米的城市绿洲;南侧紧邻地铁5号线、19号线出口,实现与地铁的无缝对接。下楼即可拥有公园、文化艺术、商业、地铁轨道交通等全方位丰富配套。第三重:专属配套。这是蔚蓝湖滨1号业主独有的配套,包括3万平米中庭景观,长达25米的独立泳池会所,极具仪式感的五星级入户大堂,还配备健身房、咖啡区、阅读空间等,为业主提供高品质生活体验。
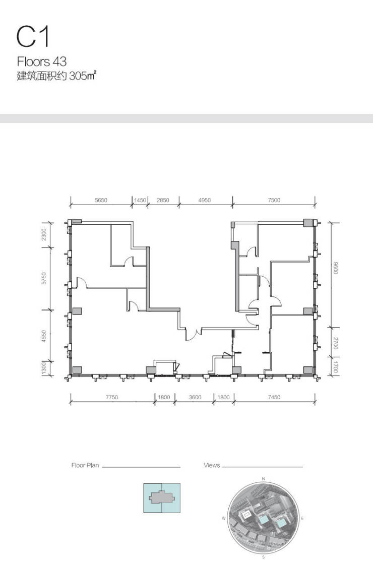
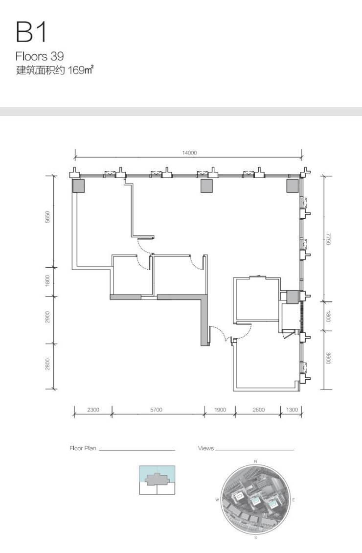
【户型图品鉴】
蔚蓝湖滨1号不仅仅是一座建筑,更代表着一种全新的生活方式。它以独特的艺术理念、卓越的建筑设计以及完善的生活配套,成为城市中一道亮丽的风景线。在这里,居住者能够尽情享受自然与艺术的双重滋养,深切感受生活的美好与惬意。倘若您也向往这般美好的生活方式,不妨亲自前往蔚蓝湖滨1号,亲身探寻其中的魅力!【蔚蓝卡地亚湖滨城】售楼处热线 028 - 84720058(已认证)【蔚蓝卡地亚湖滨城】项目渠道经理热线 13281850333(微信同号)
声明:本文由入驻焦点开放平台的作者撰写,除焦点官方账号外,观点仅代表作者本人,不代表焦点立场。


