人居麓湖林语售楼热线丨最新房源动态丨限时购房折扣丨一房一价实时查询丨品质人居钜惠
扫描到手机,新闻随时看
扫一扫,用手机看文章
更加方便分享给朋友
【人居麓湖林语】售楼处热线 028 84720058(已认证)
【人居麓湖林语】项目经理热线 13281850333(微信同号)
温馨提示:为了给您提供更高更好的接待服务质量,看房请提前致电售楼处预约!
【有免费看房车接送服务,如需预约,请致电售楼处】
【人居麓湖林语】
稀缺现房精装交付‼
【项目基本参数】
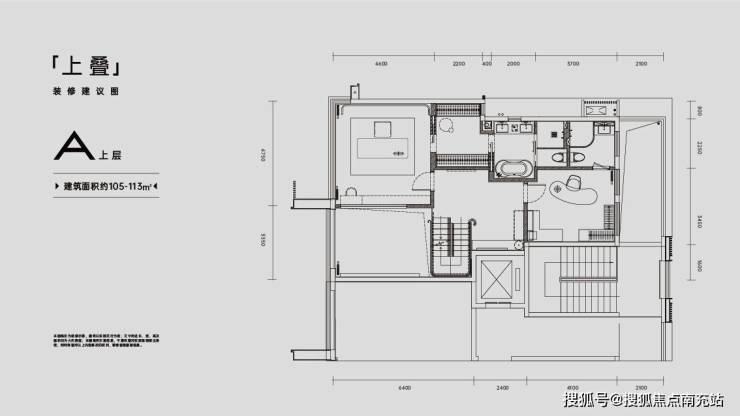
上叠面积105—113平
实得260平,价格450万
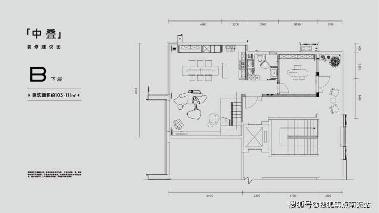
中叠面积103—115平
实得180平,价格350万
下叠面积157—227平
实得400+平,价格650万

项目定位:
项目位天府新区于麓湖生态区,作为天府新区的生态宜居最佳地点,我们占据了麓湖湖区与千年锦江的绝佳C位,站在了麓湖豪宅第一梯队天津路上。
【麓湖板块】
麓湖是一座以生态资源为基地,集居住、产业、休闲娱乐配套为一体的生态示范区。“麓湖”现在不仅代表一个区域,更是生态名词。拥有8300亩的麓湖生态区、2100亩清水生态人工湖、200亩红石公园和3450亩天府公园环绕周围,所以麓湖版块已成为居住属性绝佳的高端居住区。在商业上有5万㎡麓坊中心(A馆2.3万m²,B馆2.7万m²),约50万㎡的水上太古里——麓湖水镇。在教育上享C区教育资源,目前已投入使用天府七小,天府七中,乐盟国际学校、元音书院、麓湖哈密尔顿幼儿园等优质教育资源。
【户型图品鉴】
上叠丨建筑面积105-113m²,实得面积:270m²+ 装修效果示意图
中叠丨建筑面积103-111m²,实得面积:200m²+ 装修效果示意图
下叠丨建筑面积157-227m²,实得面积:400m²+ 装修效果示意图
总结:麓湖林语叠拼采用精装交付,装标2998元/㎡。相比很多叠拼成品房级的2998装标,麓湖林语内装可以用扎实形容,后期针对性做局部升级即可满足居住,不必全部砸掉重来,降低置业隐形成本。如果计划在天府新区核心板块购置叠拼产品且预算匹配,麓湖林语值得重点考察。
【人居麓湖林语】售楼处热线 028 84720058(已认证)
【人居麓湖林语】项目经理热线 13281850333(微信同号)
温馨提示:为了给您提供更高更好的接待服务质量,看房请提前致电售楼处预约!
【有免费看房车接送服务,如需预约,请致电售楼处】
声明:本文由入驻焦点开放平台的作者撰写,除焦点官方账号外,观点仅代表作者本人,不代表焦点立场。


