成都「人居麓湖林语」楼盘价值分析-户型测评-6月房价走势
扫描到手机,新闻随时看
扫一扫,用手机看文章
更加方便分享给朋友
【人居麓湖林语】售楼处热线 028 84720058(已认证)
【人居麓湖林语】项目经理热线 13281850333(微信同号)
温馨提示:为了给您提供更高更好的接待服务质量,看房请提前致电售楼处预约!
【有免费看房车接送服务,如需预约,请致电售楼处】
【人居麓湖林语】
稀缺现房精装交付‼
【项目基本参数】
上叠面积105—113平
实得260平,价格450万
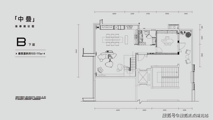
中叠面积103—115平
实得180平,价格350万
下叠面积157—227平
实得400+平,价格650万

项目定位:
项目位天府新区于麓湖生态区,作为天府新区的生态宜居最佳地点,我们占据了麓湖湖区与千年锦江的绝佳C位,站在了麓湖豪宅第一梯队天津路上。
【麓湖板块】
麓湖是一座以生态资源为基地,集居住、产业、休闲娱乐配套为一体的生态示范区。“麓湖”现在不仅代表一个区域,更是生态名词。拥有8300亩的麓湖生态区、2100亩清水生态人工湖、200亩红石公园和3450亩天府公园环绕周围,所以麓湖版块已成为居住属性绝佳的高端居住区。在商业上有5万㎡麓坊中心(A馆2.3万m²,B馆2.7万m²),约50万㎡的水上太古里——麓湖水镇。在教育上享C区教育资源,目前已投入使用天府七小,天府七中,乐盟国际学校、元音书院、麓湖哈密尔顿幼儿园等优质教育资源。
【户型图品鉴】
上叠丨建筑面积105-113m²,实得面积:270m²+ 装修效果示意图
中叠丨建筑面积103-111m²,实得面积:200m²+ 装修效果示意图
下叠丨建筑面积157-227m²,实得面积:400m²+ 装修效果示意图
总结:麓湖林语叠拼采用精装交付,装标2998元/㎡。相比很多叠拼成品房级的2998装标,麓湖林语内装可以用扎实形容,后期针对性做局部升级即可满足居住,不必全部砸掉重来,降低置业隐形成本。如果计划在天府新区核心板块购置叠拼产品且预算匹配,麓湖林语值得重点考察。
【人居麓湖林语】售楼处热线 028 84720058(已认证)
【人居麓湖林语】项目经理热线 13281850333(微信同号)
温馨提示:为了给您提供更高更好的接待服务质量,看房请提前致电售楼处预约!
【有免费看房车接送服务,如需预约,请致电售楼处】
声明:本文由入驻焦点开放平台的作者撰写,除焦点官方账号外,观点仅代表作者本人,不代表焦点立场。


