成都「天府菁萃里」楼盘深度解析:售楼热线/核心优劣势对比/6月房价动态及未来趋势预测
扫描到手机,新闻随时看
扫一扫,用手机看文章
更加方便分享给朋友
【天府菁萃里】售楼部热线 028 84720058(已认证)
【天府菁萃里】客户经理热线 13281850333(微信同号)
温馨提示:为了给您提供更高更好的接待服务质量,看房请提前致电售楼部预约!
【有看房车接送服务,如需预约,请致电售楼部】
160万买七中旁精装三房四房
万亿级产业园区,国企开发,近5、6号线地铁、临华西医院
?【项目概括】:
总占地:84.5亩
住宅总楼栋数:8栋
面积:108、134、137、142、144、218㎡
梯户比:2T2、2T3、2T4
层高:1、8栋31层,2栋28层,3、5栋25层,4栋21层,6、7栋29层
单层高:218平3.15米,其余户型3米
容积率:2.0
公摊:20-21%
总户数:736户
车位数:1304个,1:1.7
物业:中海物业,3.2元/平/月
交付:精装带三大件,2900元装标
交房时间:合同约定2025年12月,有可能提前到2024年12月
项目外销证

【成都最具潜力生物医药园区 全国排名前三】
根据《2022中国生物医药产业园区发展竞争力评价及分析报告》中,仅次于中关村国家自主创新示范区和苏州工业园区,稳居国内“第一梯队”

【城市级商圈配置】
约23万方商圈 荟萃繁华
周边大型商业配套加持:
中海环宇坊、天府环宇坊、
银泰城、世豪广场、天府大悦城
毛家湾社区综合体
生物城凯悦嘉轩酒店
菁萃商业街
邻里中心
【开启锦江生态带2.0时代】
建面约108-218m² 江畔公园舒居
占地84.5亩,小区总共736户,超配中庭约 1.5 万方
超大楼间距 最大超200米楼间距
低密理想生活 2.0容积率,绿地率 30%
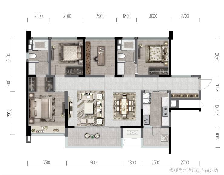
【户型鉴赏】
套三:108、134m²
A户型 建面约108㎡ 三室两厅两卫(东南朝向)
D户型 建面约134㎡ 三室两厅两卫(朝东)
套四:137、142、144、218m²
B户型 建面约137㎡ 四室两厅两卫(朝西)
C户型 建面约142㎡ 四室两厅两卫(西北朝向)
E户型 建面约144㎡ 四室两厅两卫(朝东)
F户型 建面约218㎡ 四室两厅三卫(朝东)
【首付30万起,低门槛入住城南品质舒居】

【天府菁萃里】售楼部热线 028 84720058(已认证)
【天府菁萃里】客户经理热线 13281850333(微信同号)
温馨提示:为了给您提供更高更好的接待服务质量,看房请提前致电售楼部预约!
【有看房车接送服务,如需预约,请致电售楼部】
声明:本文由入驻焦点开放平台的作者撰写,除焦点官方账号外,观点仅代表作者本人,不代表焦点立场。


