成都蔚蓝卡地亚湖滨城售楼部电话|区域位置解读|楼盘核心优势与不足分析|9月最新优惠价格及置业指南
扫描到手机,新闻随时看
扫一扫,用手机看文章
更加方便分享给朋友
【卡地亚湖滨城】售楼部电话:028 - 62444811(已认证)
【卡地亚湖滨城】销售经理电话:15388440405(微信同号)
温馨提示:为了提供更高更好的接待服务质量,看房请提前1小时致电预约!
坐落于成都市南部黄金地段,蔚蓝湖滨1号是一处备受向往的所在。这座高端住宅项目由新加坡国宝级设计大师曾仕乾亲自设计,汇集了全球顶尖的建筑理念,巧妙地融合了自然和艺术元素,熠熠生辉于城市中。
【项目参数】
占地:怡心湖占地1400亩 湖面占地500亩
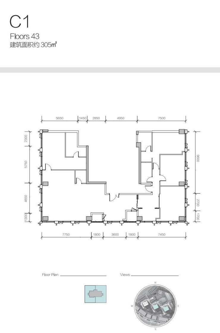
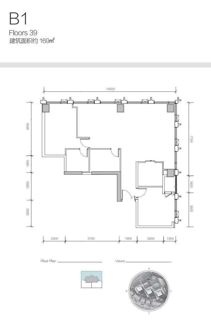
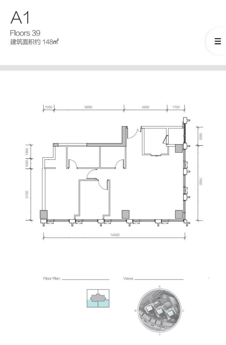
面积:148-169 平、305平
价格:2-3万 总价区间 350-420万
物管费:6元
公摊:26%
梯户比:3T4户
付款方式:按揭5成、全款
交付标准:精装
交房时间:2024年底
本次推出 A 区 2、3 栋产品,首批次仅剩余50套房源。2、3 栋都是 3 梯 4 户布局,每个户型均享受 270 度采光。
【产品价值】
由于整体规划亮点,每个组团的均好性非常强,各具优势。国际化生活方式的构建不仅要有优雅宜人的景观环境,还需营造出友善、健康的观念和社群意识。
首批次推出的湖滨 1 号,位于东区 A 区,楼下就是地铁 5 号线、19 号线站点,北侧 100米处是文化艺术中心,东北紧邻 6.5 万平米叠水公园,与公园湖景仅 200 米直线距离。是非常绝佳的位置。
「蔚蓝湖滨 1 号」可享受三重配套:
第一重:公共配套——怡心湖片区的交通、购物、酒店配套,以及驱车 10 分钟即可享受到高新区或天府总部商务区的购物、休闲、商务配套。
第二重:湖滨城市配套——下楼即可享受蔚蓝湖滨城打造的文化艺术中心、双五星级酒店、南岸商业和地铁商业,A 组团紧邻文化艺术中心,到达湖面北侧直线距离仅 200 米。东北侧紧邻跌水公园私享 6.5 万平米的城市绿洲;南侧紧邻地铁 5 号线、19 号线出口,与地铁无缝接驳。下楼即拥有公园、文化艺术、商业、地铁轨道交通等丰富配套。
第三重:专属配套——蔚蓝湖滨 1 号业主的专属配套:3 万平米中庭景观,长达 25 米独立泳池会所、极具仪式感的五星级入户大堂,并配以健身房、咖啡区、阅读空间等。
【户型图品鉴】
蔚蓝湖滨1号不仅是一座建筑,更是一种生活方式的体现。它以独特的艺术理念、卓越的建筑设计和完善的生活配套,成为了城市中的一道亮丽风景线。在这里,居住者可以尽情享受自然与艺术的双重滋养,感受生活的美好与惬意。
【卡地亚湖滨城】售楼部电话:028 - 62444811(已认证)
【卡地亚湖滨城】销售经理电话:15388440405(微信同号)
温馨提示:为了提供更高更好的接待服务质量,看房请提前1小时致电预约!
声明:本文由入驻焦点开放平台的作者撰写,除焦点官方账号外,观点仅代表作者本人,不代表焦点立场。


