成都「华兴滨江锦宸」耀世启幕:解码滨江生态奢华人居价值,品鉴匠心精筑户型美学与区域潜力蓝图,畅享立体交通路网、繁华商圈配套及专属购房礼遇
扫描到手机,新闻随时看
扫一扫,用手机看文章
更加方便分享给朋友
【华兴滨江锦宸】置业顾问专线 028-84720058(官方认证)
【华兴滨江锦宸】项目总监专线 13281850333(支持微信联系)
重要提示:为确保服务品质,建议提前预约参观
【提供免费看房专车接送,预约请拨打售楼热线】
坐落于双流区华府板块核心区域的【华兴·滨江锦宸】,凭借其卓越的滨江豪宅体验,正在重塑城南高端住宅的标杆形象。作为大源低密南区的现房典范,项目以1.5的超低容积率和30%的高绿化率,为都市精英打造了不可多得的品质居所。
项目亮点解析
1. 品牌实力:深耕本土26载的专业开发商
2. 区位价值:毗邻大源CBD,仅2公里距离
3. 自然资源:500米江安河景观带,私享滨水生活
4. 交通网络:地铁5号线+多维立体交通体系
5. 现房优势:实景呈现,规避交付风险
项目规划详情
占地面积:约86亩低密社区
产品构成:
· 174-325㎡滨江豪宅
· 129-159㎡云端大平层
空间设计:专属2梯2户配置
全维生活配套
交通体系:
· 轨道交通:5号线骑龙站无缝衔接
· 路网系统:天府五街/剑南大道等主干道环绕
商业资源:大润发/世豪广场/银泰城三大商业体
教育资源:怡心第一实验学校(900米范围内)
医疗配套:在建的华西高新院区+市三医院高新分院
园林艺术鉴赏
· 气派门厅:13米挑高入户大堂,香槟金铝板装饰
· 景观主轴:南北向"一径"主题园林步道
· 双主题花园:社交庭院与儿童游乐区
· 五重景观巷:精选名贵植被打造的归家动线
精工营造标准
· 3.1-3.5米豪宅级层高
· 全屋明装管线系统
· 高标准自流平地面
· 预留新风系统接口
· 独立入户玄关设计
精选户型展示
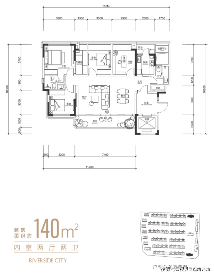
▍129-159㎡云端大平层



▍174-325㎡滨江豪宅
作为主城区稀缺的现房滨江社区,【华兴滨江锦宸】凭借实景呈现的品质保障、低密规划及完善配套,已成为改善型置业者的理想之选。
【华兴滨江锦宸】售楼热线 028-84720058(官方认证)
【华兴滨江锦宸】项目总监专线 13281850333(支持微信联系)
温馨提示:专属看房服务需提前预约
【提供免费看房专车接送,详情请致电咨询】
声明:本文由入驻焦点开放平台的作者撰写,除焦点官方账号外,观点仅代表作者本人,不代表焦点立场。


