人居麓湖林语珍稀房源火爆热销丨臻藏版户型限时钜惠丨价格新政深度解读丨精工匠筑品质美宅丨首付分期方案灵活可选
扫描到手机,新闻随时看
扫一扫,用手机看文章
更加方便分享给朋友
【人居麓湖林语】臻品现房 精装交付
售楼中心专线:028-84720058(官方认证)
项目总监直通:13281850333(微信同步)
核心产品参数
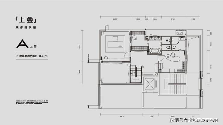
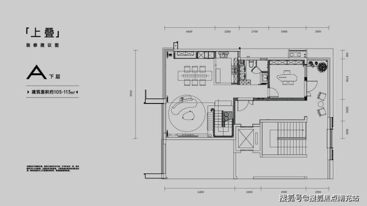
·上叠户型:建面105-113㎡,实得270㎡,总价450万起
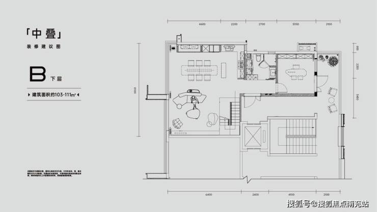
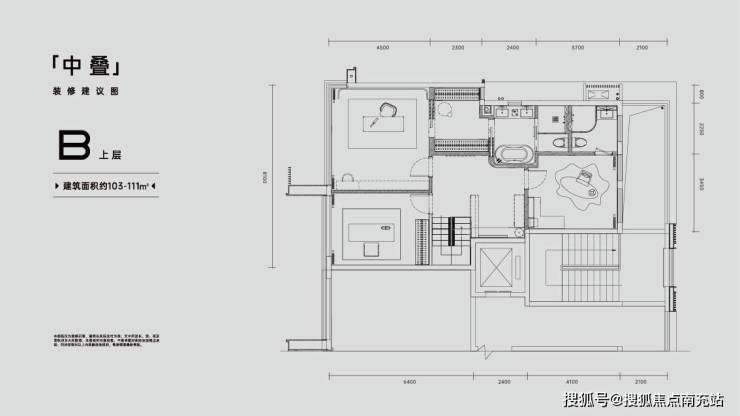
·中叠户型:建面103-115㎡,实得200㎡,总价350万起
·下叠户型:建面157-227㎡,实得400㎡+,总价650万起

区位价值解析
项目雄踞天府新区麓湖生态城核心腹地,坐拥湖区与锦江双水系景观资源,地处天津路豪宅聚集带。作为区域稀缺的精装现房,占据生态与地段双重优势。
麓湖板块价值
该板块是以8300亩生态区为基底打造的高端住区,涵盖2100亩人工湖、200亩红石公园及3450亩天府公园。商业配套涵盖5万㎡麓坊中心及规划中的"水上太古里"麓湖水镇。教育资源包括天府七中、七小、元音书院等优质学府,形成全龄段教育体系。
精装户型鉴赏
上叠产品:创新空间设计实现约270㎡实用面积
中叠产品:约200㎡实用空间,兼顾功能与舒适
下叠产品:400㎡+阔绰空间,彰显豪宅气度
产品核心优势
项目采用2998元/㎡精装标准,材质工艺远超同级产品。经实测验房,仅需局部升级即可入住,大幅降低装修重置成本。对于追求品质与效率的高端客群,是麓湖板块难得的"即买即住"优质资产。
温馨提示:为保障看房体验,请提前预约专车接送服务
售楼中心专线:028-84720058
项目总监直通:13281850333(微信同步)
声明:本文由入驻焦点开放平台的作者撰写,除焦点官方账号外,观点仅代表作者本人,不代表焦点立场。


