成都【高投启鸣宸序】营销部电话-最新项目介绍-楼盘优惠活动-高投启鸣宸序本月房价走势
扫描到手机,新闻随时看
扫一扫,用手机看文章
更加方便分享给朋友
【高投启鸣宸序】售楼处电话:028 - 62444811(已认证)
【高投启鸣宸序】销售经理电话:15388440405(微信同号)
温馨提示:若想获得更优质的接待服务,看房请至少提前1小时致电售楼处预约!
2025成都高投,闪耀金融城双塔
高投置业新规战略力作
启鸣宸序 震撼登场
约120 - 143㎡新规越级四房,?2025年置业成都不可错过的热门红盘?。作为2025年高新区域的必看项目,启鸣宸序乃是新川的全新作品。
【项目核心价值】
★ 【高新3.0 全城改善聚焦新川】这里是高新3.0时代的焦点区域,对于追求品质改善的购房者而言,新川板块无疑是必看之地。★ 【产城融合·全球未来城市典范】项目所处区域实现了产业与城市的深度交融,堪称全球未来城市的样板间。★ 【865亩新川之心·黄金一公里核心区】占据865亩新川之心的核心位置,位于黄金一公里的极核区域,地段优势尽显。★ 【高投启鸣系·全T2板式四房 | 全系互动架空层 | 超高得房率 】高投启鸣系产品,全系采用T2板式四房设计,搭配全系互动架空层,更有着超高的得房率。项目建面约120㎡户型,为超配四房,拥有光厅双厅双卫;建面约143㎡户型,则是高奢四房,配备光厅双厅三卫。 项目交通极为便捷,呈现出立体交通格局。? “两横三纵”交通网络,涵盖新通大道、新程大道、天府大道、蓉遵高速以及梓州大道;? 地铁出行也十分便利,500米内可搭乘6号线,实现全城通达。此外,还有☆ 三大TOD :红星路车辆基地TOD(在建中)、新川路站TOD(在建中)、陆肖TOD(在建中)。 周边配套丰富多样。教育资源方面,?名校环绕:与上海师范大学成都海川学校·K12仅一街之隔,此外还有高新区实验小学、新川科技园小学等。生态环境优越,?1公里内即可享受千亩公园生态,包括约865亩新川之心公园、约210亩兰花博览园、约250亩新川南北环伺公园、约174亩新川湿地公园。商业氛围浓厚,?商业环绕周边:距离西南首个万象天地(在建)仅2km,还有2km远达购物中心、伊藤洋华堂(蓝润店)、4km山姆会员店以及2/4/8号邻里中心。这里还是低密全四房纯粹住区,能让住户享受全新居住体验。
【启鸣宸序】
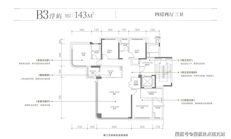
占地面积:30.2亩,绿地率达35%,总户数为383户。建筑类型为小高层,梯户比是2T2,装修情况为臻装大平层。建面约120㎡为超配四房,光厅双厅双卫;建面约143㎡是高奢四房,光厅双厅三卫。
【户型鉴赏】
【配套篇】
?交通圈——立体交通,畅行全城项目交通网络完善,呈现“两横三纵”格局,「新通大道 | 新程大道 | 天府大道|蓉遵高速 | 梓州大道」贯穿其中。公共交通同样便捷,地铁6号线新通大道站(距离17亩项目约300米)、新川站(距离30亩项目约500米),并且周边还有三大TOD 「红星路车辆基地TOD(在建中) | 新川路站TOD(在建中) | 陆肖TOD(在建中)」,为出行提供更多选择。?名校圈——优质教育资源汇聚,城南精英培育之地周边教育资源丰富,?上海师范大学成都海川学校备受瞩目。该校作为沪蓉教育合作的里程碑式项目,是一所十二年制公办学校(含择机开设的高中部),将于2025年9月正式开学。此外,还有高新区实验小学、新川科技园小学以及金苹果锦城第一中学等优质学校。?生态圈——千亩公园环绕,畅享自然生活新川之心中央公园、新川湿地公园、新川环城公园等构成了项目周边的生态体系,让住户仿佛置身于自然之中,尽情享受惬意生活。?商业圈——繁华商圈林立,品质消费目的地周边商业配套完善,(2km)西南首个万象天地(建设中)、(2km)蓝润置地广场(伊藤洋华堂)、(2km)远大购物中心、(4km)山姆会员店以及2/4/8号邻里中心,满足各类消费需求。?医疗圈——权威医疗保障,为健康保驾护航附近医疗资源充足,(1.7km)四川省中西医结合医院高新院区(三甲医院)、(3.8km)四川大学华西第二医院高新区妇女儿童医院,为居民的健康提供坚实保障。
❀启鸣宸序——【新派假日花园】①、融入安缦酒店式度假基因设计理念,打造独特居住氛围。②、精心规划13座假日剧场花园,增添生活情趣。③、设置8大全系互动架空层,丰富社区空间功能。④、打造原野系亲子互动场,为亲子活动提供良好场所。
【高投启鸣宸序】售楼处电话:028 - 62444811(已认证)
【高投启鸣宸序】销售经理电话:15388440405(微信同号)
温馨提示:若想获得更优质的接待服务,看房请至少提前1小时致电售楼处预约!
声明:本文由入驻焦点开放平台的作者撰写,除焦点官方账号外,观点仅代表作者本人,不代表焦点立场。


