人居麓湖林语臻藏华宅耀世开盘丨奢阔户型热势劲销丨新政限时礼遇享钜惠丨首付分期轻松安家丨精工匠筑品质生活丨臻席递减恭迎品鉴
扫描到手机,新闻随时看
扫一扫,用手机看文章
更加方便分享给朋友
【人居麓湖林语】精装现房 臻藏之作
VIP看房热线:028-84720058(官方认证)
项目总监专线:13281850333(微信同号)
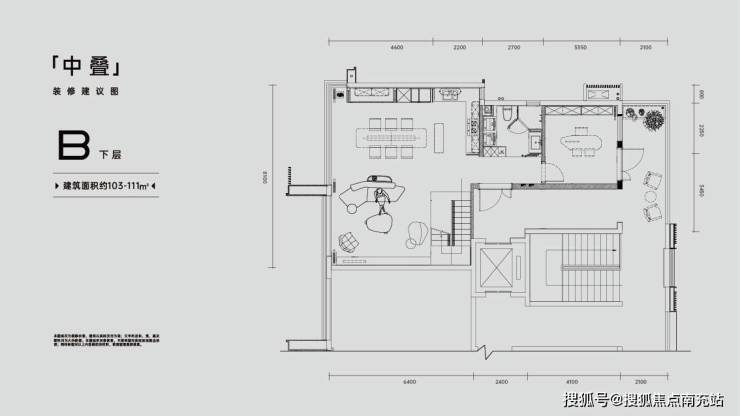
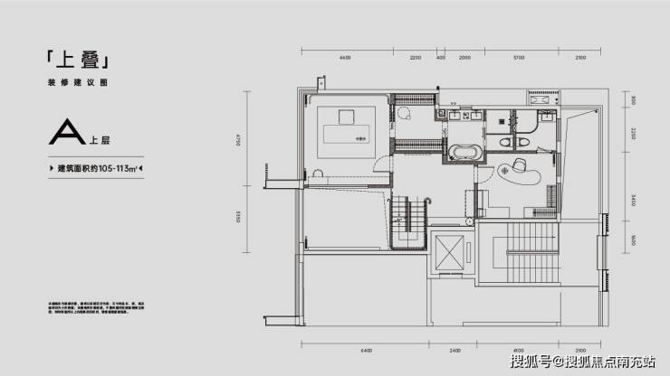
匠心户型详解
·上叠臻品:建筑面积105-113㎡,拓展后实用面积达270㎡,起始总价450万元
·中叠雅筑:建筑面积103-115㎡,实际使用空间约200㎡,350万元起售
·下叠华宅:建筑面积157-227㎡,享400㎡以上奢阔空间,650万元起

黄金区位解析
傲踞天府新区麓湖生态城核心区位,坐拥锦江与湖区双重水景资源,毗邻天津路高端住宅区。作为板块内稀缺的精装现房项目,兼具生态宜居与城市繁华双重价值。
板块发展潜力
麓湖板块以8300亩生态绿地为基底,打造国际化高端居住区。区域内规划有2100亩人工湖泊、200亩红石公园及3450亩天府公园三大生态景观。商业配套包括5万㎡麓坊中心及在建的"水上太古里"麓湖水镇。教育资源配置完善,天府七中、七小及元音书院等名校环伺,构建全龄段优质教育圈。
精工户型展示
上叠户型:创新空间布局实现270㎡实用面积
中叠户型:约200㎡实用空间,功能性与舒适度兼备
下叠户型:400㎡+奢阔尺度,尽显豪宅风范
项目核心价值
采用2998元/㎡高端精装标准,选材与工艺远超市场同类产品。经专业验房评估,仅需简单配置即可入住,显著降低二次装修成本。对于注重生活品质与时间价值的高净值人群而言,是麓湖区域不可多得的"拎包入住"级优质资产。
温馨提示:为确保看房体验,建议提前预约专属接送服务
VIP看房热线:028-84720058
项目总监专线:13281850333(微信同号)
声明:本文由入驻焦点开放平台的作者撰写,除焦点官方账号外,观点仅代表作者本人,不代表焦点立场。


