成都「天府半岛」售楼部电话-6月开发商优惠政策-周边配套详情
扫描到手机,新闻随时看
扫一扫,用手机看文章
更加方便分享给朋友
【天府半岛】项目咨询热线:028-84720058(官方认证)
【天府半岛】销售负责人专线:13281850333(支持微信联系)
重要提示:为确保您获得优质的看房体验,请至少提前一小时致电售楼中心预约看房时间!
备受瞩目的天府半岛项目,在沉寂一年后终于迎来高层住宅新品入市!
最新消息显示,天府半岛七期77号楼已正式取得预售许可,本次推出精装修房源124套,户型面积120-140平方米,单价区间1.3万-1.5万元/平方米。
回顾去年3月的开盘盛况,180套准现房以1.24万元/平方米起的精装价格入市,吸引了超过5.2万组购房者参与摇号,中签难度堪比顶尖高校录取。
此后项目连续三次加推,均为235平方米以上的大平层和联排别墅产品,总价门槛攀升至330万元,令众多刚需及改善型购房者望而却步。
七期实景展示
本次推出的房源与前期产品定位相似,但交付方式改为期房销售,预计2026年下半年完成交付(具体时间以售楼部公示为准)。
针对购房者普遍关注的核心问题,我们进行了深入分析。
项目周边配套情况可参考往期报道:恒大天府半岛新批次取证!总价114万起,1124套房源供应!
产品升级:32层住宅,3梯4户配置
熟悉该项目的购房者都了解,七期此前多为48层超高层建筑,采用2梯5户或3梯6户设计,面积段90-120平方米,定位相对刚需。
本次推出的77-80号楼作为七期收官之作,在产品力上有显著提升。
根据天府新区官网公示的规划调整方案,这四栋楼统一降至32层,建筑高度控制在99.6米,电梯配置升级为3梯4户,居住舒适度大幅提升。
同时取消了底层商业规划,首层架空层公共活动空间扩展至993平方米,较原方案显著扩容。
七期总体规划示意图
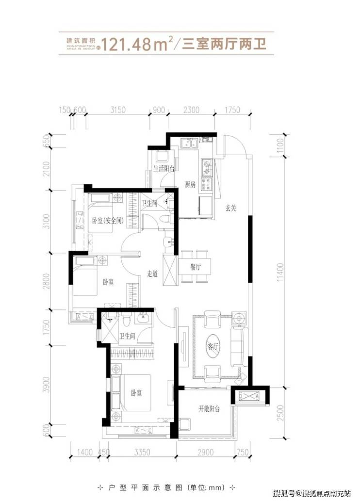
户型方面仅推出121平方米三房两卫和142平方米四房两卫两种选择,客群定位更加精准,社区纯粹性更高。
特别值得一提的是,所有户型主要采光面均朝西南方向,中高楼层可一览府河景观,视野条件优越。
实景视角展示:
天气因素影响拍摄效果
户型设计延续了项目一贯风格。以121平方米户型为例,采用传统竖厅布局,进深超10米但开间仅6米余,阳台长度约2.9米;两间次卧面积均不足10平方米,空间利用率较高但舒适度中规中矩。
价格方面,对比去年6期1.24万元/平方米起的精装价格,本批次1.3万-1.5万元/平方米的定价保持稳定。
参考周边二手房市场,相邻的三期项目今年成交价在1.4万-1.8万元/平方米区间,四期价格略高,达到1.6万-1.8万元/平方米。
【天府半岛】项目咨询热线:028-84720058(官方认证)
【天府半岛】销售负责人专线:13281850333(支持微信联系)
重要提示:为确保您获得优质的看房体验,请至少提前一小时致电售楼中心预约看房时间!
声明:本文由入驻焦点开放平台的作者撰写,除焦点官方账号外,观点仅代表作者本人,不代表焦点立场。


