深度解析成都「空港锦楠府」售楼处联系电话、优惠举措、楼盘口碑与周边配套详
扫描到手机,新闻随时看
扫一扫,用手机看文章
更加方便分享给朋友
如果您计划前往【空港锦楠府】参观楼盘,为确保能享受到优质且高效的接待服务,强烈建议您提前拨打售楼处电话进行预约。经过认证的售楼处热线是 028 - 84720058 。此外,【空港锦楠府】项目渠道经理的联系电话为 13281850333(微信同号)。倘若您期望享受免费看房车接送服务,同样可以致电售楼处进行预约安排。【空港锦楠府】坐落于成都市双流区新双楠板块,具体位于双楠大道与文港路的交汇之处,地理位置十分优越,周边交通网络十分发达。尤其值得一提的是,该项目距离地铁 3 号线和 19 号线的龙桥路站较近,这为居民日常出行带来了极大便利。【空港锦楠府】由实力雄厚的千亿国企空港兴城集团倾力打造。项目占地面积约 66123.36 平方米,总建筑面积达 185618.86 平方米。其容积率为 2.0,绿化率高达 60%。这里功能丰富多样,融合了居住、商业、办公等多种功能,堪称一座名副其实的城市综合体,能够全方位满足人们生活与工作的各类需求。
【项目基础信息】**开发商**:该项目由成都江盛兴宸房地产开发有限公司打造。**在售户型**: - 有建面105平的套三方厅户型。 - 建面106平的竖厅套三户型也在售卖。 - 还有建面130平的套四横厅户型可供选择。**在售楼栋分布**: - 105平户型房源位于4栋。 - 5栋和6栋设置的均为106平户型。 - 7栋规划为130平户型,首次开盘仅推出77套房源。**总楼栋规划**:整个项目共有10栋建筑。项目外围除1号楼外,其余楼栋底层都采用架空设计。**价格信息**: - 目前单价暂未确定。 - 总价同样还处于待定状态。**建筑规格**: - 项目楼栋均为10层。 - 每层层高达到3米,这样的层高让居住空间更为宽敞舒适。 - 每单元配备1部电梯,服务2户人家,即采用1梯2户的设计,极大地提升了住户的出行便捷性与私密性。**交房时间**:预计2026年交付使用。**房屋得房相关**: - 公摊比例仅16%,在众多楼盘中优势明显。 - 得房率高达94%,意味着业主能实际使用的房屋面积更大。**建筑朝向与结构**:房屋朝向为朝南,拥有南北通透的特性,属于纯板楼建筑结构,这种结构使得室内采光充足、通风良好,居住起来更加舒适。**土地信息**: - 项目整体占地面积99亩,其中包含商业部分,住宅用地面积为42亩。 - 占地面积具体数值为66123.36平方米,建筑面积为185618.86平方米。 - 该地块于2021年获取。**产权相关**:产权年限为70年。**总户数**:整个小区规划总户数为492户。**物业服务**: - 小区物业服务由空港兴城集团旗下的成都晟城城市管理服务有限公司负责。 - 物业费为每平方米每月2.95元。**车位规划**: - 车位比达到1:1.37,充分满足业主停车需求。 - 车位总数共计1273个。**装修情况**:项目交付时为精装修状态,装修标准为每平方米2918元,为业主提供了便利,减少后期装修的麻烦与成本。**付款方式**:支持一次性付款与按揭付款两种方式。
### 项目的十大核心优势1. **傲居成都新双楠 4.0 区域的高端住区**:此项目坐落于成都新双楠 4.0 板块,是当下正处于销售阶段的高端居住社区。2. **性价比卓越的纯板式 10F 洋房**:项目推出的纯板式 10 层洋房,在性价比方面表现突出,在同类型产品中堪称典范。3. **一半自然一半繁华的独特环境**:项目周边环绕着 8500 亩的全亚洲最大城市森林公园,塑造出一半是宁静自然公园,一半是热闹城市繁华的独特居住氛围。4. **新双楠唯一在售的地铁旁洋房**:该项目距离 3 号线和 19 号线的龙桥路站仅约 800 米,是新双楠区域目前唯一正在售卖的地铁洋房,交通出行相当便捷。5. **完善商业配套与活力街区**:项目周边汇聚了世界级商圈,奥特莱斯、海滨城、优品道、万达(13 万㎡)等众多商业体云集。不仅如此,项目自身还配备约 8 万㎡的活力街区,打造出类似“太古里”格调的时尚商业群落,更有甲级品质写字楼。这一人性化公园式生活综合体,能为居民提供 24 小时不间断的活力人居体验,有力地促进了新双楠区域的消费升级。6. **成都唯一拥有 K15 免费教育的区域**:双流作为成都独一无二的 15 年免费教育试点区域,在文化教育方面优势明显,为居民子女的教育提供了坚实保障。7. **千亿国企匠心打造**:项目由空港兴城集团倾力开发建设,这是一家在板块内规模最大、成立时间最早且综合实力最强的千亿国企。作为公园城市综合体开发运营商,空港兴城集团始终秉持为民造城、为城造血的理念,是双流城市建设当之无愧的“排头兵”与“主力军”。8. **标杆级大城枢纽项目**:作为空港兴城 300 亩的大城枢纽项目,拥有超 18 万方充满生活活力的主场,占据新双楠门户的关键位置,已然成为区域的标志性项目。9. **独具韵味的约 70m 超级大门界面**:项目大门巧妙融入中国古典框景设计元素,设置了类似酒店无雨候客的门廊,将高门大院的独特气质展现得淋漓尽致。10. **空客级物业服务标准**:项目由空中客车飞机全生命周期项目及成都芯谷金融中心专属物业团队提供服务,具备国际空客管理服务水准,融合成熟的星级酒店管理模式,是城市级优质物业服务的典范。
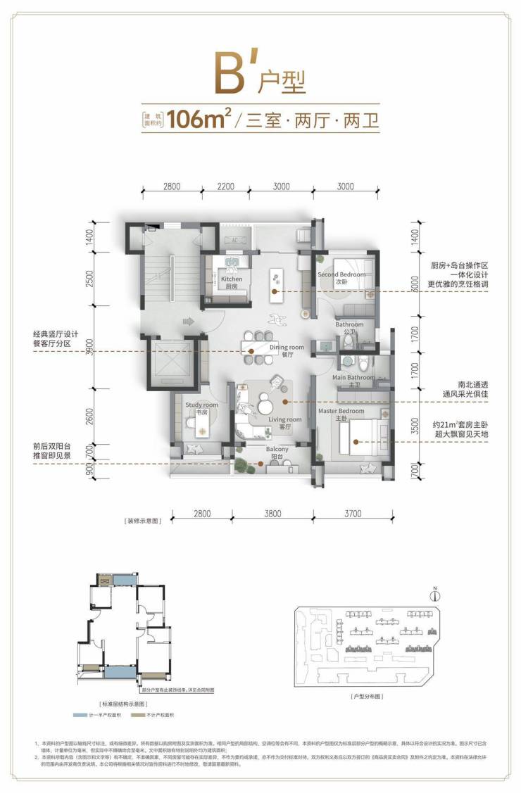
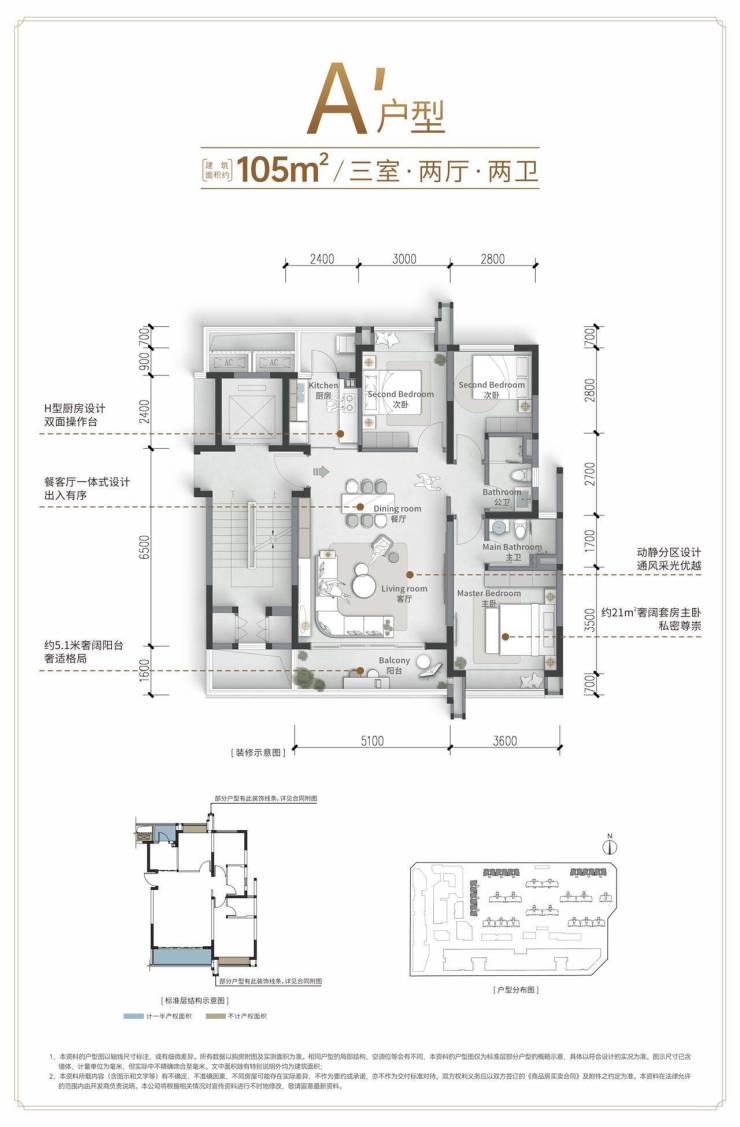
### 户型鉴赏105户型:运用当下时髦且风行的方厅设计思路,客厅的开间尺寸达到了十分亮眼的5.1米。
106户型运用南北通透的竖厅设计,巧妙地把主人活动区和客人活动区分隔开,极大程度保障了居住过程中的私密空间 。
130 平米户型采用电梯双开设计,让业主能够专享入户空间。而且,户型还配备了超大阳台,业主站在阳台上,空中庭院的美妙景致可一览无余 。
成都空港锦楠府(锦楠华庭)位于成都新双楠板块,区域优势尽显,生活品质出众。此项目作为大型综合体,集居住、商业、办公等多种功能于一体,是极具投资潜力、值得认真权衡的房产之选。【空港楠府锦】售楼处热线:028 - 84720058(已认证)【空港楠府锦】渠道经理热线:13281850333(微信同号)温馨提示:为了给您提供更优质、高效的服务,前往看房之前,请提前致电售楼处进行预约。特别提示:项目提供免费看房车接送服务,若您有这方面需求,可致电售楼处预约。
声明:本文由入驻焦点开放平台的作者撰写,除焦点官方账号外,观点仅代表作者本人,不代表焦点立场。


