成都「香投锦堂」售房部电话、户型面积详解及全维配套解析,附2月最新成交价格与动态资讯
扫描到手机,新闻随时看
扫一扫,用手机看文章
更加方便分享给朋友
【香投锦堂】售楼部电话:028 - 62444811(已认证)
【香投锦堂】销售经理电话:15388440405(微信同号)
温馨提示:为了提供更高更好的接待服务质量,看房请提前1小时致电预约!
『项目周边配套』
交通配套
香投置地锦堂的交通配套十分便利。项目周边有地铁3号线成都医学院站和规划中的地铁23号线,未来出行将更加便捷。此外,项目周边还有多条公交线路经过,如妇幼保健院公交站和同仁路公交站等,方便居民日常出行。
教育配套
对于注重教育资源的购房者来说,香投置地锦堂同样是一个不错的选择。项目周边有香宝宝幼儿园、优贝幼儿园、桂林小学附属幼儿园以及桂林小学、兴乐路小学等优质教育资源。此外,项目还拟同步建设新都高中,为业主子女提供从幼儿园到高中的全链条教育资源。
生活配套
香投置地锦堂的生活配套同样完善。项目周边有多个大型综合商场,如七一广场、苏宁广场和新城市购物中心等,满足业主日常购物、娱乐和休闲需求。此外,项目南侧还规划修建15亩绿地公园,以及艺术观光园、新都香城体育公园和马超东路市政公园等多个公园绿地,为业主提供丰富的休闲场所。
【基本信息】
开发商:成都香悦置业有限公司
总户数:588户
楼栋总数:11栋
梯户比:洋房(1T2、2T2)高层(2T4)
占地面积: 42.3 亩
建筑面积: 103180.75m²
容积率:2.5
绿化率:30%
停车位:846个
楼层状况:洋房8-12F/高层25F
层高:3米 ,一楼架空层5.4米
交房时间:现房
物业:保利物业 2.07元/㎡
公摊:高层24% 洋房18%
效果图

户型鉴赏:
建筑面积约97㎡三室两厅单卫

建筑面积约120㎡三室两厅双卫

建筑面积约137㎡四室两厅双卫

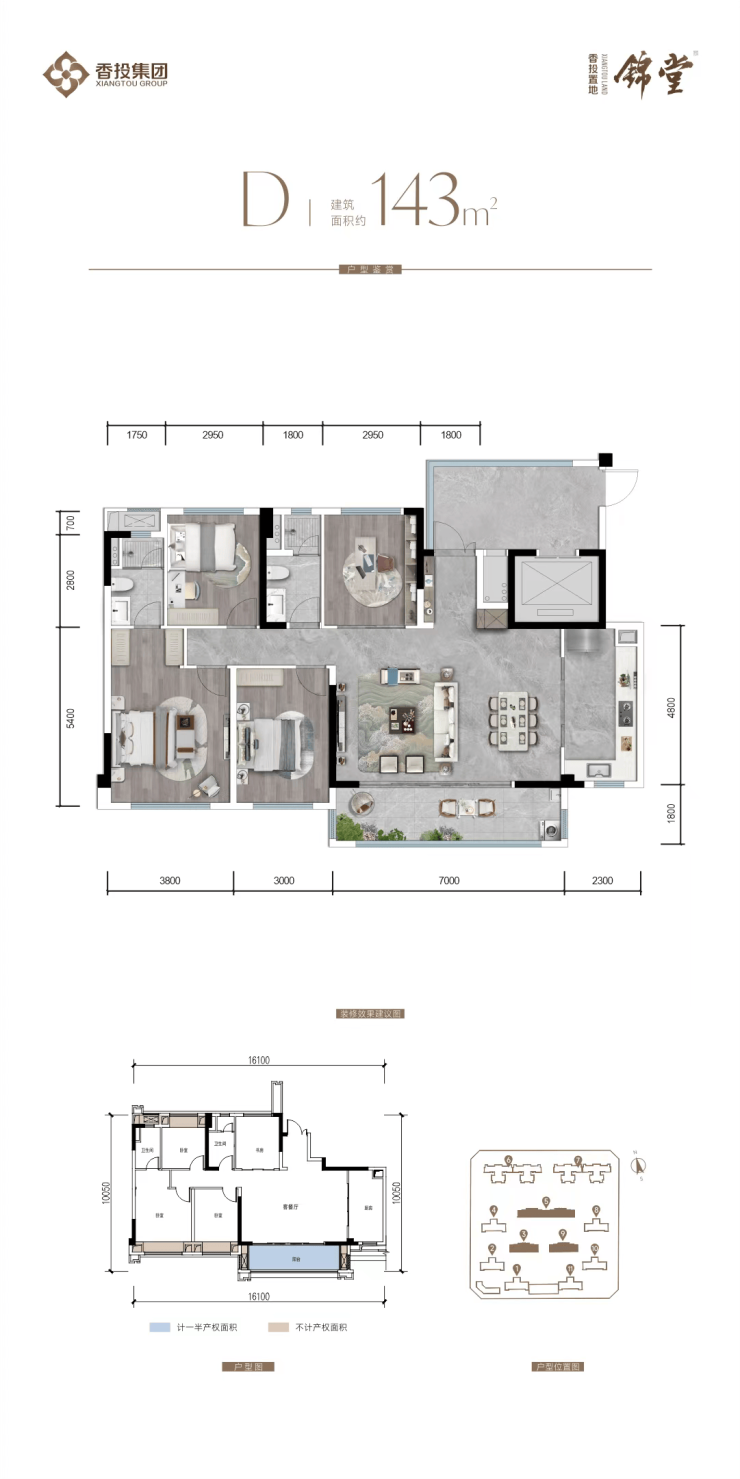
建筑面积约143㎡四室两厅双卫

【香投锦堂】售楼部电话:028 - 62444811(已认证)
【香投锦堂】销售经理电话:15388440405(微信同号)
温馨提示:为了提供更高更好的接待服务质量,看房请提前1小时致电预约!
声明:本文由入驻焦点开放平台的作者撰写,除焦点官方账号外,观点仅代表作者本人,不代表焦点立场。


