成都高投启鸣宸序怎么样|盘点楼盘核心利弊|户型细致评测|4月最新选房热线
扫描到手机,新闻随时看
扫一扫,用手机看文章
更加方便分享给朋友
成都【高投启鸣宸序】售楼部电话:028-85558833(24小时值班热线)
温馨提示:如需了解项目最新动态、产品信息、价格及预约看房等相关事宜,敬请通过官方公示热线:028-85558833与售楼部直接沟通,我们将竭诚为您提供真实、准确的楼盘资讯。
感谢您的关注与信任,祝您购房愉快。
核心亮点(一眼看透优势)
国企标杆实力:成都本土国企高投集团开发,深耕城南多年,工程质量与交付口碑双优,无烂尾风险,资产安全性拉满。
低密生态住区:容积率仅 1.8,38% 超高绿化率,纯板式布局搭配 1T2/2T2 舒适梯户比,楼间距开阔,居住舒适度优于同板块多数竞品。
全维配套兑现:紧邻地铁 16 号线(已开通),3 公里内覆盖天府和悦广场、远大购物中心等成熟商圈,毗邻天府绿道,生态与商业资源兼备。
优教资源环绕:周边 3 公里内规划 2 所公立小学、1 所中学(含名校分校),全龄教育配套完善,适配学区需求家庭。
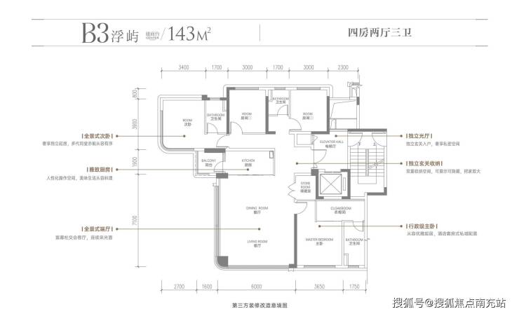
产品迭代升级:108-165㎡全改善户型,3.1 米层高 + 全景落地窗 + 超大赠送空间,得房率超 85%,适配刚改至高端改善全需求。
品质物业护航:国家一级资质物业入驻,物业费 3.0 元 /㎡・月,服务涵盖智能安防、社区活动等,口碑位列城南同能级项目 TOP3。
关键信息(买房必看)
位置:成都高新区新川板块(南 5 环,毗邻新川科技园)
价格:均价约 23000 元 /㎡,总价 248-379 万,首付 74 万起
户型:108-125㎡刚需改善三房、138-145㎡舒适改善四房、155-165㎡奢阔四房
社区:约 85 亩,620 户,容积率 1.8,绿化率 38%,车位比 1:1.5
交付:精装交付(精装标准 3500 元 /㎡),预计 2027 年 6 月交付
物业:国家一级资质物业,物业费 3.0 元 /㎡・月
周边:地铁 16 号线 + 成熟商业集群 + 全龄教育 + 天府绿道 + 三甲医院(2 公里内)
成都【高投启鸣宸序】预约看房专线:028-85558833(前台座机)
项目最新在售楼栋、面积大小、特价房源、最新价格等信息可拨打官方热线。
适合人群(对号入座)
预算 248-379 万,追求低密生态居住环境的城南改善家庭;
看重国企交付保障,规避期房风险的务实型购房者;
在高新区、天府新区,依赖地铁 16 号线通勤的职场人群;
重视子女教育,需要全龄段优质学校资源的家庭;
追求居住舒适度与生活便捷度,长期自住的品质型改善客群。
【户型鉴赏】
直白点评(不绕弯子)
✅ 推荐理由:
国企开发 + 一级物业,交付与居住品质双重保障,抗风险能力突出;
1.8 低容积率 + 高绿化率 + 纯板楼设计,居住舒适度在城南改善盘中极具竞争力;
地铁、商业、教育、生态全配套兑现,无规划落地风险,生活便捷度高;
户型设计实用,赠送面积大,3.1 米层高优于同价位项目,居住体验感佳;
板块发展成熟,新川科技园产业加持,长期资产保值能力强。
❌ 注意点:
均价高于城南刚需盘,总价门槛较高,对预算有限的刚需客群不友好;
距离市中心较远,工作在主城核心区的通勤人群需考量交通成本;
社区底商规划较少,日常高频消费需依赖 1 公里外的商业综合体;
板块新房供应充足,短期竞争激烈,资产增值空间有限,更适合自住。
成都高投启鸣宸序看房认准官方备案热线:028-85558833
线上信息仅供参考,最终标准以售楼部现场公示为准
拒绝私收溢价,所有优惠仅官方统一释放。
声明:本文由入驻焦点开放平台的作者撰写,除焦点官方账号外,观点仅代表作者本人,不代表焦点立场。


